本案是一套72㎡带着文艺气息的宜家风房子,设计师将简约、清新、素雅、自然的风格特质表现得淋漓尽致,给人萦绕一个舒适自然、又带着淡淡的文艺气息的家。
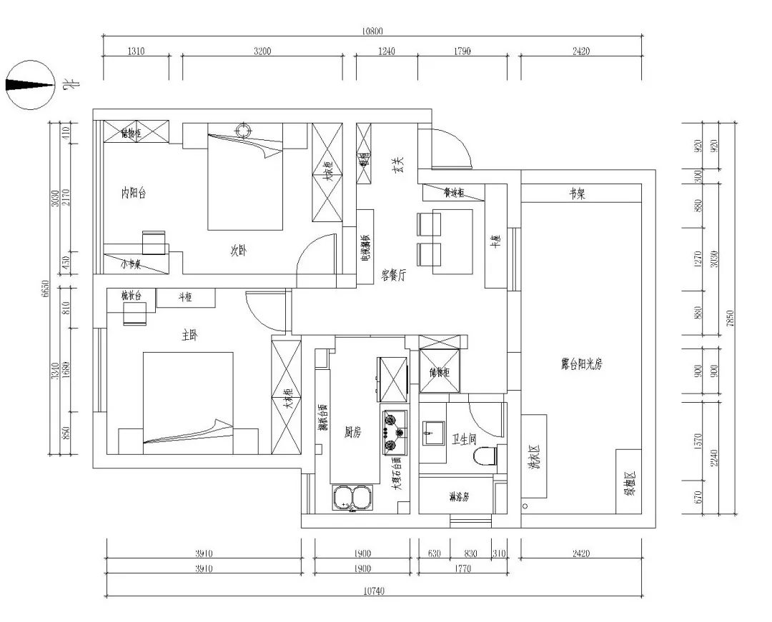
平面布置图

玄关

▲白色调为主的玄关墙面,搭配浅灰色质感的木地板,白色的定制鞋柜,三角形图案的浅彩色地毯,打造出一个干净整洁、简约舒适的玄关。
客厅&餐厅

▲客餐厅区域同样以白色为主基调,加入原木的元素的餐桌,将整个空间打造成一个温馨、文艺的待客兼具用餐的区域。客厅与餐厅连在一起的设计方式,节省了较多的空间。

▲简单时尚的家居摆设,实木的用餐桌搭配白色的餐椅、卡座式座椅搭配浅色系列的靠垫,简约而又舒适。一旁的餐边柜,还有墙上的挂画、布艺卷帘、浅蓝色的置物架上摆着绿色的小盆栽,简单巧妙的设计方式,带着一股淡淡的清新文艺气息。

▲墙面定制的入墙式书架,用来搁置各类书籍、家庭医药箱、绿色盆栽、小饰物等,美观又实用。
厨房

▲白色的墙面融入原木的元素,浑然天成的色彩搭配,给人一种清新自然的舒适感,带着点淡淡的原木清香。原木质感的橱柜,墙面挂钩杆上方还有一个网格收纳架,让厨房充满文艺小资范的气息。

▲墙上以磁力刀架作为收纳刀具、餐具的工具,不仅节省了空间,也便于取放,还很有特色。

▲用黑色的挂钩用来收纳厨房里的各种杂物,搭配上白色墙面,保证了操作台的整洁度的同时又显得文艺十足。

▲可移动的白色的操作台架,方便放置平时食用的蔬菜食材,便于烹饪时的取放,为女主人的烹饪提供了极大的方便。

▲铁艺网格置物架既可用来挂置厨具,也可搁置一两盆绿色的小盆栽,点缀厨房的生机。

▲双开门模式的大冰箱,足以装下了主人大大的美食梦,冰箱门上面贴着童趣的字母,结合黑色框架的推拉门,让厨房充满小清新的文艺气息。
主卧

▲夜晚灯光下的主卧,散发着一种迷离的朦胧美,像是主人的美梦,温柔极致的美。结合上简约灰白调的床单与窗帘,整个空间都给人以轻松惬意的气息。

▲白色的主调卧室,床头背景墙搭配上的植物挂画,带着淡淡小文艺的清新感。

▲床尾位置将电视挂置在墙上的方式为下白色的储物柜节省了占地空间,左侧白色小书桌上的白色台灯,当主人夜晚阅读书写时,默默地守在身边,点亮一盏明灯。

▲移动百叶门的衣柜设计,不仅收纳空间大,装下了主人满满的衣物,也便于主人翻找衣物。
次卧

▲原木元素的地板、床,同时把阳台打通纳入到卧室里,以隐藏式的白色衣柜设计,在蓝白相间的波浪纹枕头搭配白色几何图案的蓝灰色被褥,打造了一个清新自然的极简卧室。

▲电视以挂置的方式安置在墙上,节省了占地空间。下方利用一字隔板的方式设计了简单的小小储物柜,摆上一小盆盆栽,整个区域看起来给人一种简约整洁的画面感。而插座下方的路由器等设备,则以一个白色收纳盒装饰起来,避免杂乱的出现。
工作区

▲木制的电脑桌与白色的伊姆斯木脚椅,简单而又舒适的工作区。墙上用一字隔板设计的储物架,摆上相框和书籍,搭配绿色的小植物,整个小小的工作区瞬间生意盎然。
阳台

▲整个阳台的顶装上了玻璃封起来,并布置了一些绿植的点缀,装成了一个舒适惬意的阳光房,给人一种明亮开阔,生机勃勃的清新感。

▲盥洗池不仅具有储物作用,还容下了洗衣机,上方多处利用隔板的设计方式,用来收纳各种杂物。搭配上绿色各种小盆栽,增添了一笔色彩。

▲阳台还安放了一台跑步机,晨起的时候来点运动,提高了主人的生活质量,为主人的健康起架护航。运动过后,也可从橱窗里取一书,安静地窝在摇椅里细细品读。

▲墙上用洞洞板的设计方式,用来挂置拖把、吸尘器等打扫工具,节省了大量的占地空间。

▲清晨,为白色植物架上的植物浇浇水,沐浴着柔和的晨光,窝在白色的懒人摇椅里,慵懒而又自在。
卫浴室
▲椭圆形盥洗池半悬挂的设计方式,而错落有致的收纳与小饰品,也是让小卫生间更加自然轻松,独特且不失美观。
买了房找装修灵感,欢迎加微信公众号:shejiguan_cn