
本案项目:香港顶级别墅区
类型:独栋别墅 地上三层,前三后四 坡地别墅,加上花园和扩建近2.5千平米。
项目预算:6千万(RMB)

房子外观建筑效果

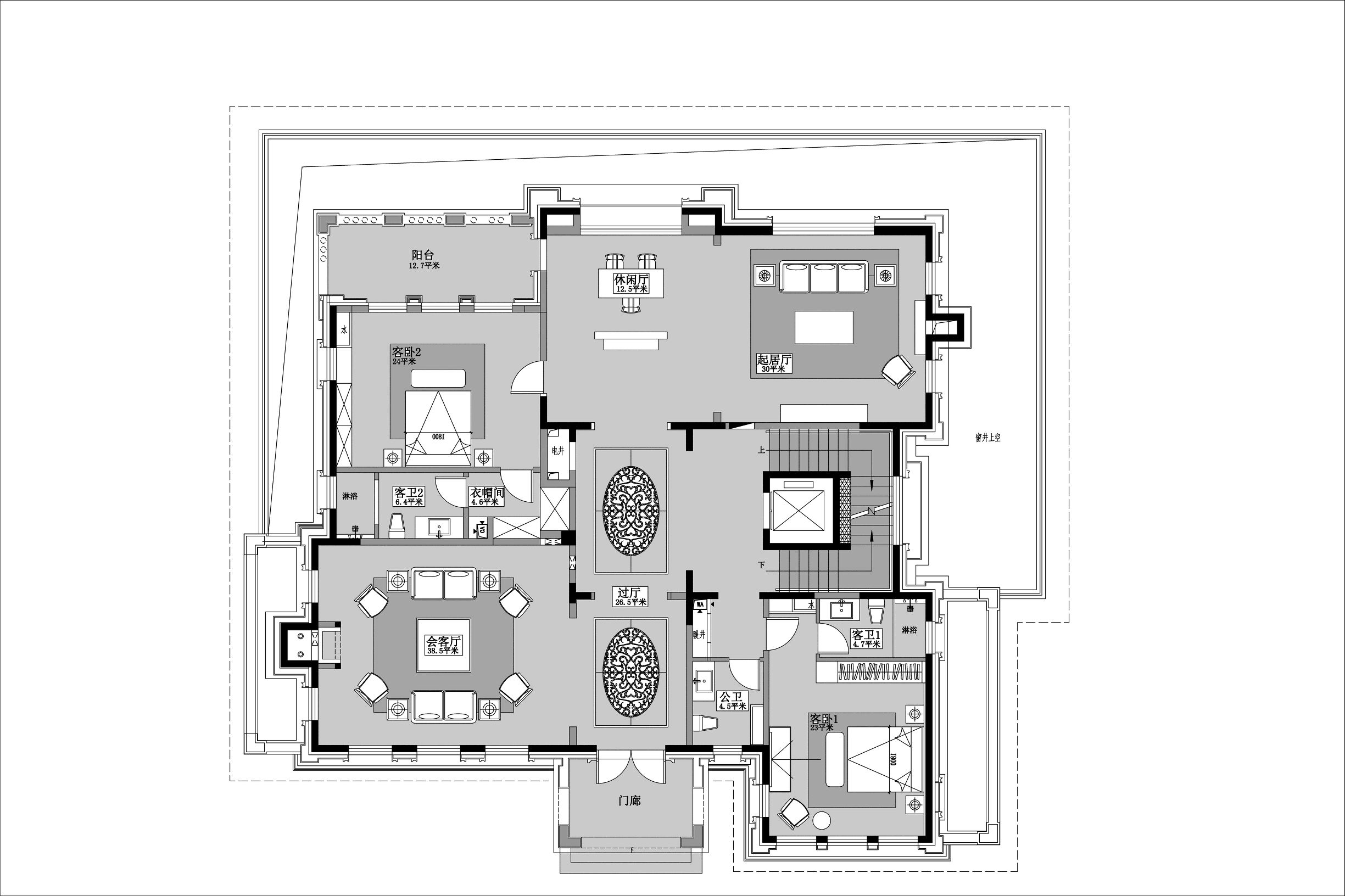
一层平面布局图

入户门厅

一层-会客厅

起居室-效果展示一

起居室效果展示二

一层-老人房

女儿房

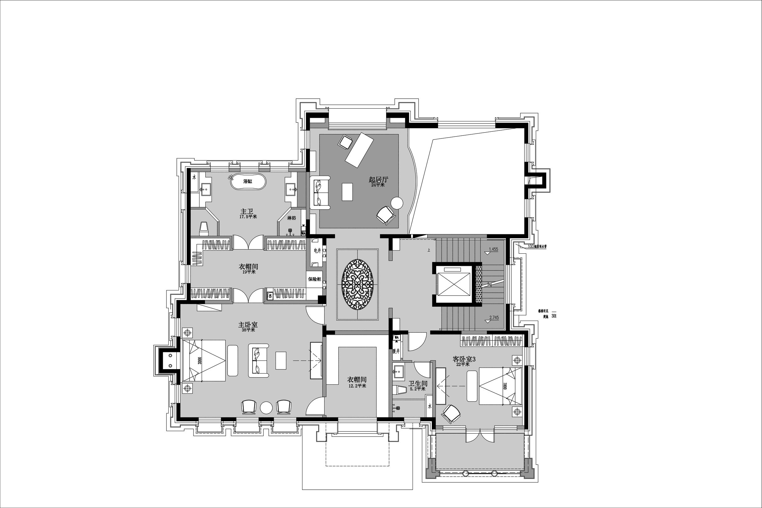
二层平面布局图

二层-起居室

主卧

主卫

书房

休闲阳光区

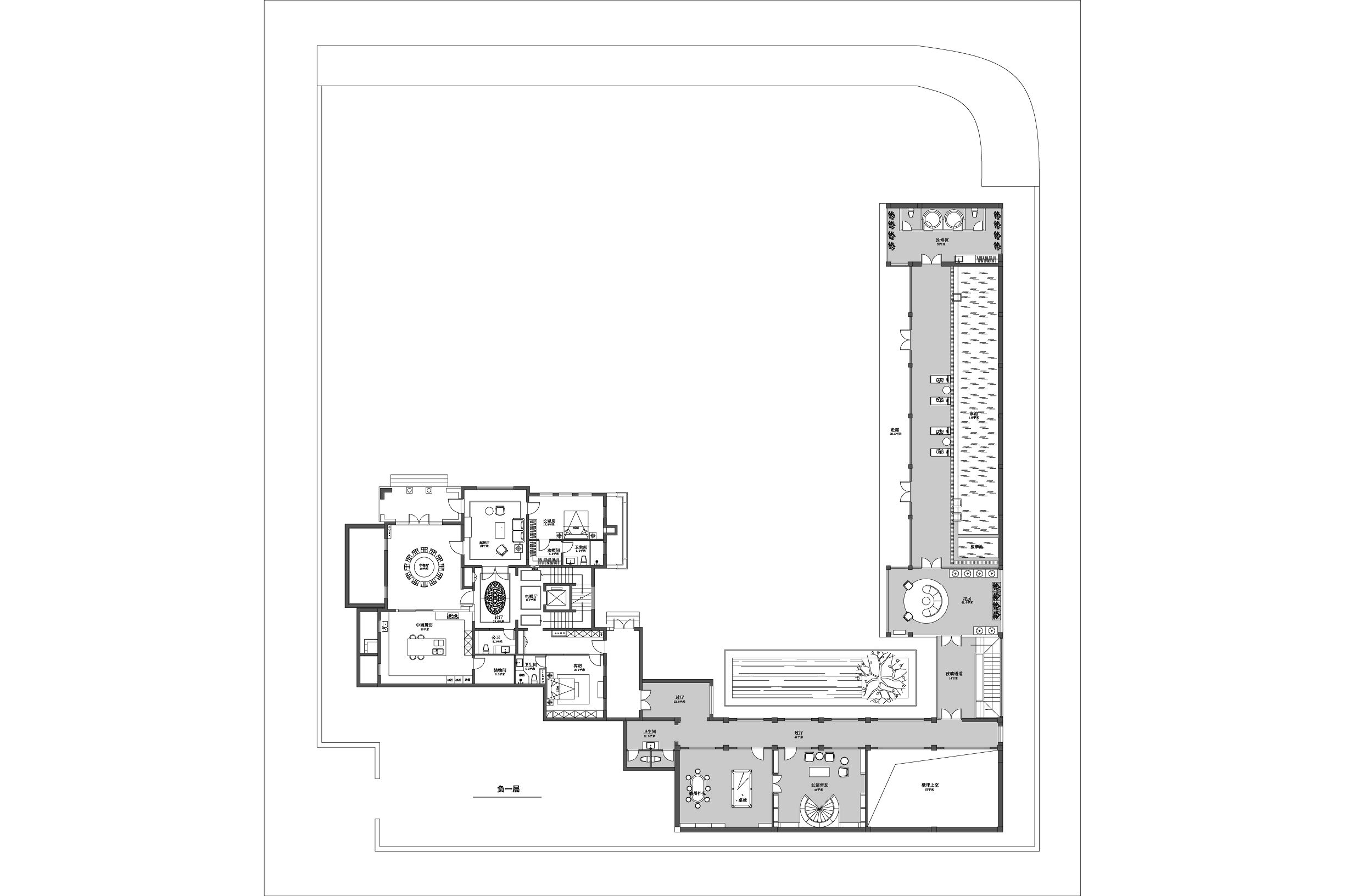
地下一层平面布局图

走廊

SPA区

游泳池区

地下二层平面布置图

走廊

台球娱乐室

免责声明:文章部分图片来源于网络,如有侵权,请联系删除。
看完之后觉得对大家有帮助的话麻烦多多转发,收藏,让更多的人能学到这些专业知识,非常感谢大家,如果有更好的建议意见麻烦评论区留言,我会挨个回复,谢谢大家。
请关注“装修工艺大师”每天推送关于装修文章,让您快速的了解装修,学会装修。