说在前面
雅致现代的烟火气,阳光在低饱和色彩主导的空间中肆意挥洒。典雅内敛的家具,消弭生活的无趣,空间作为居住者内心的映射,呈现出更加惬意与细节的乐趣,重塑用餐区域,让更多元素在相互成就中愈加丰盈。

房屋信息
户 型: 两室一厅
面 积: 65 ㎡
费 用: 35w


▲ 原始户型图
屋主需求:
1. 本案作为屋主的婚房,在满足功能形式的基础上,增加空间通透感,建立独属于自我的居家环境。
2. 宽敞的客厅、独立的就餐区、办公区域、干湿分离,删繁就简,让空间回归生活化,打造独特的爱意之居。

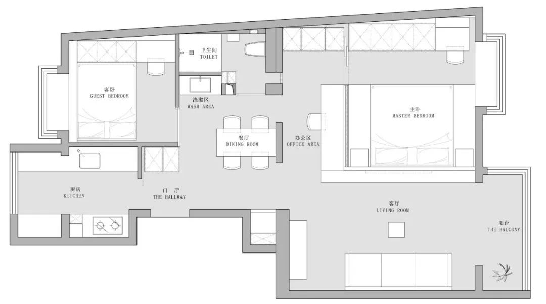
▲ 平面布局图
设计策略:
1. 优化原有门厅和卫生间的墙体,划分出独立区域:玄关柜,餐厅,卫生间和洗漱区。
2. 缩小原有卫生间,洗漱区外置,规划出坐便区和淋浴区,增加玻璃幕墙,借光增加亮度。
3. 适当调整原有的厨房墙体,进而满足食品储物、家用电器的操作功能。
4. 考虑到空间采光的问题,主卧设计了玻璃幕墙,光线可以穿透玻璃漫射到餐厅区域,增加餐厅的采光。
客厅

空间的融合,动线的关系,艺术线条的展陈,情感的互动,为空间做了独特的建构和定位,让家成为最初的意向词。

悬浮一体的电视柜,延绵至办公空间,满足日常生活收纳,也强调了空间的视觉感。

由线性灯带烘托灯光的氛围,考虑到男主很高,因此没有做全屋吊顶设计,而是采用了明装射灯+超薄轨道灯组合形式照明。

主卧墙体以玻璃幕墙的形式打造,在保留通向客厅门洞的基础上,又增加了一个门洞。
这样空间会有更多的光线,可以很好的蔓延到餐厅与办公区域,同时也可以给卫生间借光。

空间的转折交互,形成了独一无二的聚合效应。办公区的尽头做了家政柜,放置了洗衣机和烘干机。

家是散发着生活气息的人生侧面,清爽干净的竖纹木皮墙作为背景,客厅放置了男主心心念念的一款舒适度很高的布艺沙发。
大理石肌理的台桌,设计感十足的皮质座椅,于细节之处将品质展现。

女主人的钢琴陪伴在侧,光阴流转,留下生活美好的印记。
厨房

厨房以多材质的结合探索空间氛围的表达方式,整体选择了浅灰色水泥砖,搭配竖纹木板, 灶具下面我们还放置了一个嵌入式烤箱。

多功能体验空间,以“定制体验”作为线索,将生活需求展开,对空间进行设计,空间维度进行无限探索。
橱柜的地柜门板采用一门到底的设计,地柜下方放置了洗碗机,以隔板代替传统的抽屉进行置物,可以根据实际情况调整储物空间。
餐厅

舒适的空间体验,平衡的色彩搭配,棕色与实木纹理的交织,营造空间的独特氛围。

一整面竖纹木墙板+隐形门的设计方式,弱化次卧门的存在感,提高空间的整体性。

黑胡桃实木桌腿+宝格丽大理石台面进行组合,两把中古椅散发丰富的视觉冲击。

卫生间的门选择了隐框门,弱化卫生间门洞,一侧是洗漱柜。
主卧

半高的玻璃幕墙分割主卧与外面的办公区域,让阳光在设计精妙的配比关系中,穿透主卧、办公区、餐厅与卫生间,形成明朗的视觉感受。
双扇联动推拉口袋门,在划分功能区域的基础上,形成了更好的空间互动。床尾一整面衣柜,增加衣帽储物的数量。

主卧保留一个梳妆台,采用地台床设计,高度15公分,内侧镶嵌灯带,叠加木材温厚的表现力,为家中营造了一处静谧闲逸的自然之感。
次卧

考量不同家庭成员身份特性的局部差异,为家人们定制了专属的空间体验。
次卧考虑后期老人偶尔居住和以后宝宝的房间,以常规方式进行表达,床头设计了衣帽柜,保证空间的储物空间,柜子旁边是书桌。
卫生间

洗漱区域打破了传统的布局方式,在考虑整体空间层次与收纳功能的基础上,将洗漱盆外置,提高了生活的便利性。

洗漱柜删繁就简,可丽耐一体盆+置物隔板,隔板上面则放置两个编织筐进行收纳。
右侧嵌入开放格的非常规介入,再次拓展收纳,是兼具使用和美学的极简意趣。

卫生间整体采用浅灰色水泥砖,干净统一。壁挂式马桶,解决马桶移位的问题,同时方便打理。
日本松下挂墙式洗手盆,是视觉到体验的享受,壁龛放置吹风机,香薰提升生活的仪式感。

淋浴区同样是极简风格,入墙式的花洒不仅节约空间而且带来更为清爽的视觉体验。
• ✦ •