
| 铲屎官为两只喵设计110m² |
| 装满了一家五口的幸福小生活 |
写在前面
瑶瑶(女主人)和庹庹(男主人)是自幼儿园就认识的一对儿青梅竹马,从荷兰留学回来后,两人从学生步入了婚姻的殿堂。豆豆,目前三岁七个月,红虎斑纯正加菲猫,内心温柔的男子。刚到这家的时候两个半月,刚离乳,小小的,胆也小,特别亲人。

在瑶瑶怀孕6个月的时候,家里又来了位“萌妹子”。她叫豆花,目前2岁5个月,豆豆的亲侄女。她来的时候也是刚断奶,瘦瘦小小,最擅长耍乖卖萌。

被宠溺惯的豆豆在豆花一来之后,就一直吃醋,直到瑶瑶生下了宝宝,两只喵的相处模式才有些改善,喏,一起慵懒的紧挨着躺在地上,一起守在门口仿佛在为小主人保驾护航可还行!

找设计师的时候,瑶瑶已经怀孕3个月。明确表达了这个她们力争的家的强烈需求。所谓力争,就是用自己的能力买房子装房子,自己拿主意,没有任何人可以干涉,尤其是父母。
设计师问:有什么特别的要求吗?
瑶瑶答:希望我们这个5口之家在里面幸福地生活就好了!

▲一层平面图

▲二层阁楼平面图
一楼的空间约80平米,原本采光不好的房子被隔墙隔得昏暗,对于喜欢烹饪的瑶瑶来说,进门左手的厨房小得有些措手不及,卫生间不合理的尺度让1米86的男主人哭笑不得!挑空的阁楼是业主买这个房子的主要理由,想着可以多些有趣的私密空间!

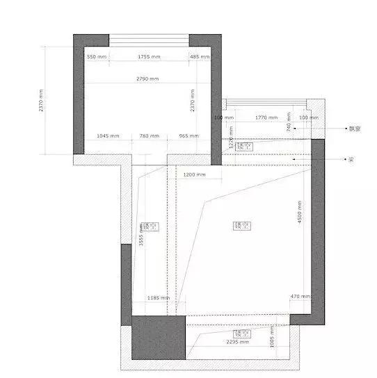
▲一楼平面布局图
一楼设计亮点:
化零为整的思路定义完美空间布局。就着位于房子中心的承重墙展开了一家人自由活动的空间。
1:将传统客厅的一字型路线变为循环路线,增加了空间的流动也增加了空气的流动,扩大了视野,增加空间的可读性。
2:充分利用每个开窗的采光,将客厅以开放的形势接纳院子里的生命吞吐。同时给室内一个满眼绿植的背景。
3:原来的厨房移至原餐厅的位置,延伸到院子里的硬化作为生活阳台很实用,通风采光独立。
4:原厨房成了宠物厕所和洗衣房,于露台相连,再次解决通风和晾晒。
5:将储物功能分散化,做到随手收纳。然后,预留的可变空间给生活的可能性,如客房。以柜子里预留布帘的方法达到实现可能的空间!
6:色彩上以蓝色作为体块,横跨在白色大体块之间,用木黄色作为呼应将其形成对比色,增加空间动感。

▲二层阁楼平面图
二楼设计亮点:
1:打掉原来的飘窗增加了卧室的面积。
2:卫生间的布置我提倡半开放式,增加流动路线,去掉传统卫生间的刻板的无趣!
❖
玄关
入户区即玄关,是一个家的门面,
简单的柜体兼具收纳和展示作用,
在了解屋主平时的生活习惯,
及听了她们的故事之后,
还对其做了色彩测试,

探究其内在性格特点之后,
选用了蓝色延伸至一个单体块,
玄关处另一面是蓝色墙面,
有衣挂和装饰架,
隐藏灯带透露的光线让空间显得很梦幻。

❖
卫生间
从这个角度可以看出玄关处的蓝色,
延伸至室内洗手台处,
洗手台的外置设计,
缓解了原本卫生间不合理的功能尺度,
也凸显了蓝色体块的层次,

这家的主子可是伺候两位“朕”的主儿,
所以,设计师特意在洗手盆的支架处,
添加了麻绳,方便喵们练手。
喵咪内心os:“正符合朕心意......”

卫生间用了蓝色体块的延伸,
用了防水漆和同色木做漆,
喜欢家里有这样推门的小变化,
虽然关门和开门只有一幅画的差别,
但有时候,
一秒的惊喜就会让你整天好心情。

❖
客厅
客厅设计成没有阻碍畅通无阻的空间,
功能齐全,干净利落!
无论是孩子还是猫咪都能自由玩耍,
豆豆和豆花的房间与客厅之间,
用有储藏功能的柜子相隔,
完美嵌入了两台洗衣机,

在客厅之间的门下面,
为猫咪设计了小门,
她们可以进出自如,

电视墙巧妙的与楼梯结合,
下方还有很多储物空间,
可以放些零碎的小物品或者CD等物,

柜子,楼梯以及餐桌,
在这个连通的空间里,
均用了木色条纹板材饰面,
与蓝色形成对比色,
增加空间的活跃度,有生命的朝气。

(可爱的豆豆一直在偷偷关注豆花)
楼梯踏步镂空的部分,
喵们可以直接跳到后面的猫爬架,
也是喵们追逐嬉闹的游乐设施,
两只喵的小天地被完美的隔在楼梯后,
一定程度上也不会影响到客人,


这个角度可以看到入户后整个客厅的全貌,
落地窗给予客厅的光线很充足,
每天阳光照进来时,
两只喵都会在窗前,
争抢着最暖和的那片地。

❖
厨房
大厨房地柜与柜子门使用同样的材质,
增加厨房空间的错觉,
一整排的柜体解决了厨房脏乱杂的问题,
嵌入式的烤箱,冰箱等电器,
完美节省了空间,

从落地窗视角看厨房,
白色加木色搭配简洁明亮,
右手边的书房有白色的折叠门,
有客人留宿的时候关闭折叠门,
客厅的整体性没有丝毫影响。

❖
餐厅
餐桌与楼梯一体的设计,
并与厨房动线相连,好用又大气!
2.1米的餐桌想怎样都可以,
餐区与入户之间的顶上做了循环吊扇,
可人工增加空气流通,
尤其是潮湿的一楼。

简约大气的空间里,
添了一把暖色的椅子,
与客厅的暖色小凳一样,
丰富了空间色彩层次,
也点亮了整个空间。

藏在柜子里的帘子拉开后便是客房了,
尽管客人留宿的几率很小,
没有用于客房的时候,
还是小宝贝的魔术场地。

❖
卧室
卧室的风格也是根据对主人的了解,
所设计的风格,
沉稳大气,又凸显着质感,
饱和度较低的色块搭配,
让卧室整个空间都很温馨,柔软,

原飘窗的位置做了落地窗,
更加开阔的视野,
仿佛离窗外的绿更近,
窗下还有一个小沙发,一个小桌,
几平米的安静角落配上窗外的景,
都可以当做是一个休闲的茶室空间。

❖
书房
多功能的房间,可书房,可客房,
挂机做了处理,增加了房间的整洁度,
有时候,庹庹在这里打游戏太久,
豆豆会直接跳到书桌上踩键盘,
提醒主人该休息了。

❖
儿童房
儿童房的设计简单柔和,
网购的云朵灯,可爱的墙面装饰,
还有角落的监控,
可以随时关注到宝贝的一举一动,
看似寥寥几笔的儿童房,
却都是妈妈对于宝贝的呵护。

(在楼梯上踱步的豆花和豆豆)

