建设地点 江苏南通
图纸编号 2058
尺 寸 面宽 16.2米 进深 12.0米
建筑面积 327.0㎡
设计机构 易盖房殊舍建筑
土建造价 58.9万
项目概况

△总平面示意图
基地情况:
东:自家菜地
西:邻家住宅
南:庭院道路
北:自家菜地
项目简介:
业主在项目前期对平面布局希望可以参考编号859的图纸,且需要旋转楼梯;在立面造型方面,业主希望可以与编号859图纸一样。设计师根据场地情况,及业主的需求与喜好,将项目形式确定为双层欧式别墅。
平面布局
户型概况:
2层 / 6室 2厅 4卫 1厨 1棋牌室 1品茶区 1衣帽 1起居室 1书房 1露台

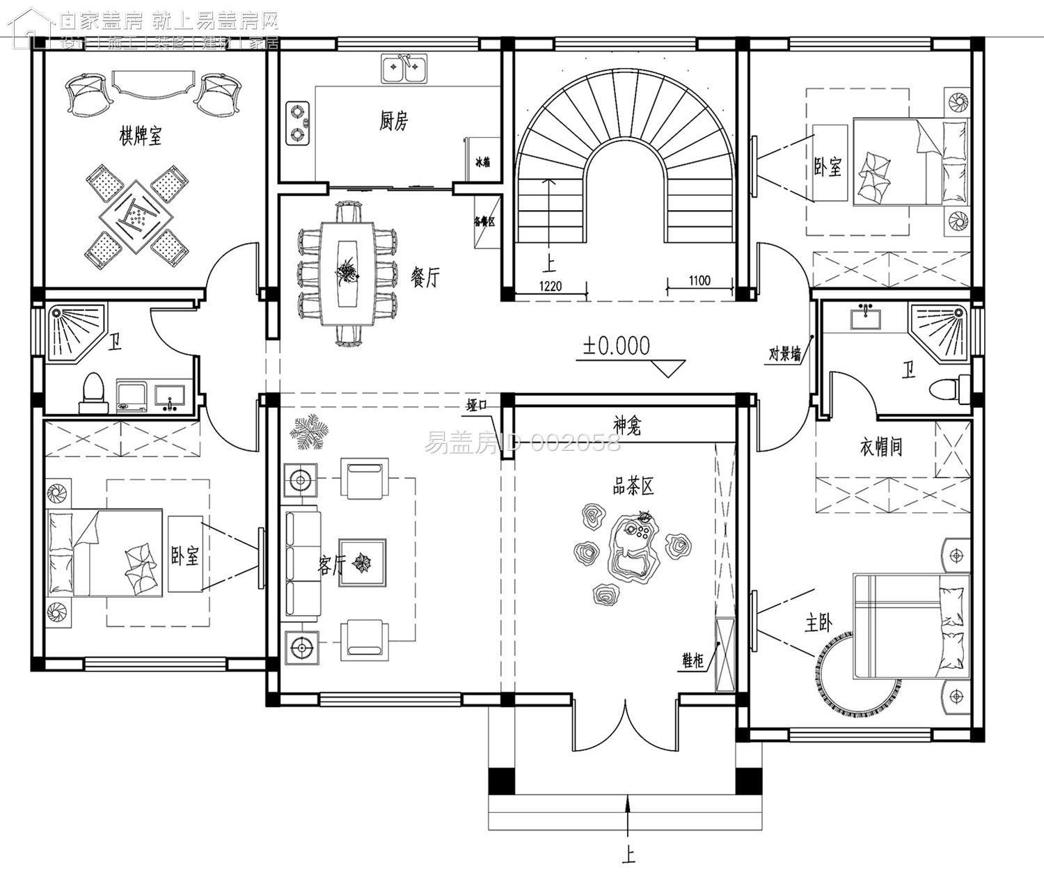
△一层平面图
一层以待客居住功能为主,共设置3间卧室,东南侧的主卧为套间设计,搭配衣帽间及独立卫生间进行使用;客厅、餐厅及厨房采用了一体化设计,既提高了室内的通透度,也提供了餐饮休闲空间。

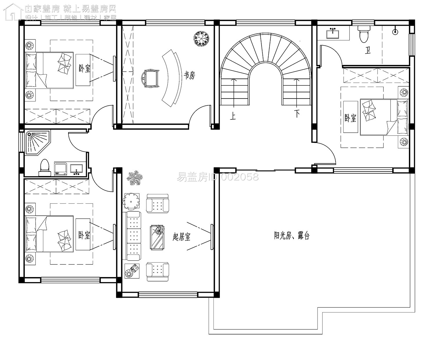
△二层平面图
二层以居住休闲为主,共布置3间卧室,中间的起居室及书房提供了充足的休闲、办公及学习场所;南侧的超大露台提供了充足的晾晒、休闲及观景空间。
造型设计

△西南侧效果图

△西北侧效果图
建筑整体为优雅的欧式风格,主要以浅色真石漆为主,通过体块的颜色变化展现建筑的层次感。屋顶部分选用较深的灰色,使得整体上的视觉体验更具温馨之感。

△东北侧效果图
设计师通过欧式宅院形式进行设计,技能确保了建筑的独立性及私密性,又能让院落的围墙风格与建筑主体风格高度统一。

△鸟瞰图

△东南侧效果图

△东南侧效果图
二层的大面积露台设计,为居住者提供休闲观景之所。内庭院可以设置休闲区、观景区及喝茶区,让居住者的生活更加丰富多彩。

△东立面图

△西立面图

△南立面图

△北立面图