工程测量教学合集,测量施工方案+原理解读,测量人员有它就够了!
本套资料包含:钢管混凝土框架金融中心测量施工方案;建筑工程测量培训讲义;框架剪力墙结构电厂高层宿舍施工测量专项方案;电子水准仪使用说明书(内容全面);高层住宅项目测量放线施工方案(图文并茂);GPS的使用方法培训讲义PPT(图文并茂);框架剪力墙结构商业高层住宅项目测量放线专项施工方案;
剪力墙结构高层住宅项目测量放线施工方案(图片丰富);GPS导航定位原理培训讲义PPT(图片丰富);电子经纬仪说明书(完整版);框架剪力墙结构高层住宅项目施工测量方案(含深基坑);框筒结构办公楼工程测量专项施工方案;全站仪操作与使用培训讲义PPT(图文详解);全站仪使用教程培训讲义PPT(图文解析);水准仪使用方法及原理培训讲义PPT(图片丰富)。
这份资料希望帮助测量工程人员进行学习和实践,让工程测量难题迎刃而解!
[资料领取看文末】

766页工程测量资料,
766页工程测量资料,专项施工方案,工程测量培训讲义

建筑工程测量讲义

测量基础
1.地球的形状与大小,----近似椭球
2.测量的基准线及基准面,----基准线:铅垂线,----基准面:水准面、水平面

测量基础
水准测量
利用水准仪提供的水平视线,观测两端地面点上垂直竖立的水准标尺,以测定两点间的高差,进而求得待定点高程的方法。

水准测量
水准测量仪器与使用

水准测量仪器与使用
框架剪力墙结构高层住宅项目施工测量方案(含深基坑)

工程概况
1.1 设计概况
1.1.1 设计简介
建设项目包括地下商业,地下车库,地上商业,高层办公,地下四层,地上九层,建筑高度39.80米。本项目用地面积6000 平方米,总建筑面积29568.14㎡;本工程主体结构采用框架剪力墙结构,本工程抗震设防类别为丙类。
建筑设计标高±0.000相当于与绝对标高5.000米。
地下部分基坑支护采用灌注桩+钢筋混凝土内支撑作为基坑支护体系(三道支撑)及三轴搅拌桩做止水帷幕,基础为冲孔孔灌注桩。
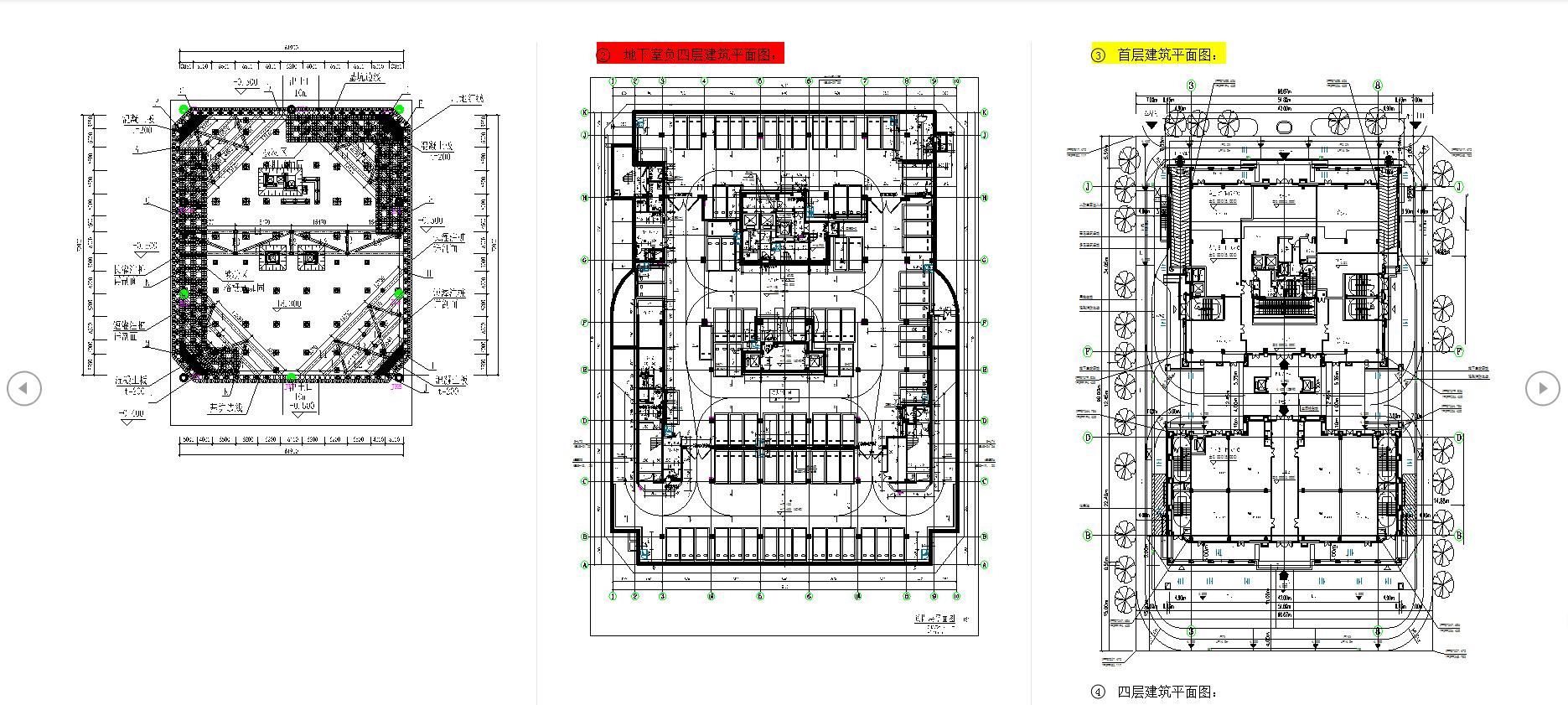
基坑深度为-18.300米,基坑形状较规则,呈现正四边形,基坑背面长约61.9m,东面长约72.0m,南面长约61.9m,西面长约72.0m,周长约260m。

工程概况
基坑支护平面布置图,地下室负四层建筑平面图,首层建筑平面图

平面布置图
资料特色鲜明:涵盖面广,淡化理论,注重基础;图文并茂,强调实践,力求接近工程实际;配有大量习题,强化学习!
资料领取

不知道怎么回复看下图
