北纬18° / 日光 | ACE谢辉室内设计_欧模设计圈
项目性质:别墅
面积:900㎡(含花园)
完工时间:2018.12
项目服务方式:设计服务,软装呈现服务
设计单位:ACE谢辉室内定制设计服务机构

北纬18°线,它把夏威夷、加勒比海、迈阿密等度假胜地串联起来,而在中国,北纬18°穿过的也正是度假胜地——三亚。
这次我们非常幸运地遇到了三个家庭,三套户型一致的别墅,委托我们去打造,而我们也努力尝试去诠释对度假生活的不同理解。

日光倾城,阳光洒进房间,风吹起纱帘,梦中的白房子干净纯粹。
这里是家庭繁忙生活的一个驿站,也许很多时间并不在此停驻,但每当来到这里就会感到喜悦和轻松,家人的欢笑和爱会充满空间的每一个角落。
所以放松和团聚,是我们想要表达的意图。







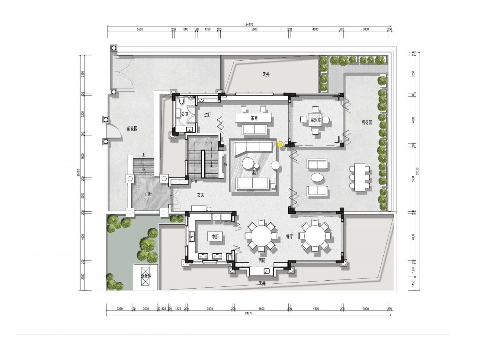
本案将客厅餐厅等“动区”放在了阳光充沛的一层,卧室则放置在了更为安静隐私的负一层。但是三亚看似阳光明媚的天气背后不可忽略的是闷热潮湿,原户型结构负一层光线暗淡、空气潮湿。如何解决这个问题是我们不得不着重去考虑的,于是我们在户型改造中,将一层的花园”下沉”到负一层,阳光和风便可自由穿行于每一间卧室,也不会打扰清静的睡梦。

△下沉式花园带来负一层空气的流通
每一个空间都需要有它的调性,这里的一切都是简单和放松的,白色贯穿了所有的公共空间.就如我们想要呈现的生活方式一般,放下繁琐和复杂,此时此地,在这里放空自己,享受生活。而客厅围合式的沙发和餐厅的圆桌,拉近了家人的距离,更让团聚时刻增添了热闹的氛围。






家人团聚的时候总是很热闹,如何能让所有人都可满意的住下,是我们要解决的另一个问题.双人床、榻榻米的设置强化了卧室的居住功能,同时活泼的色彩增添了空间的趣味性。每一间卧室都附带独立的卫生间,有着特别的方便和舒适。





起居厅的蓝色,流露出安定和平静,缓慢舒适的日常在这里展开。这里即是学习和休息的区域,这里也有陪伴与守护。墙上的部分挂画是孩子们的作品,伴随着孩子的成长,家里的某些画面和场景会让他一辈子都不会忘记。






如日光一般干净纯粹的白房子,
永远都有夏日的阳光和微风,
当世界扰乱了心绪,
可在此歇息,
和日光作伴,与月光相望。


素材来源:欧模网-专业3d模型*载下**网站,本文转自欧模设计圈-室内设计案例分享平台
https://www.om.cn/