文案编辑:老曾
随着时代的发展,当代女性似乎越来越不把婚姻当成必须选项了,因此也就导致独居生活的成年人越来越多。
独居群体一多,生活也就各式各样;有抱怨独居生活孤单乏味的,也有一些热爱生活的人把独居生活过得有滋有味的。

本期这位屋主就属于后者;虽然未婚单身,但自强又自律的她却把一个人的独居生活过得充实又有趣味性,看完全屋让我这个已婚家庭主妇不禁感叹——原来一个人住可以这么爽!
下面我们一起来看看吧~
家的简介
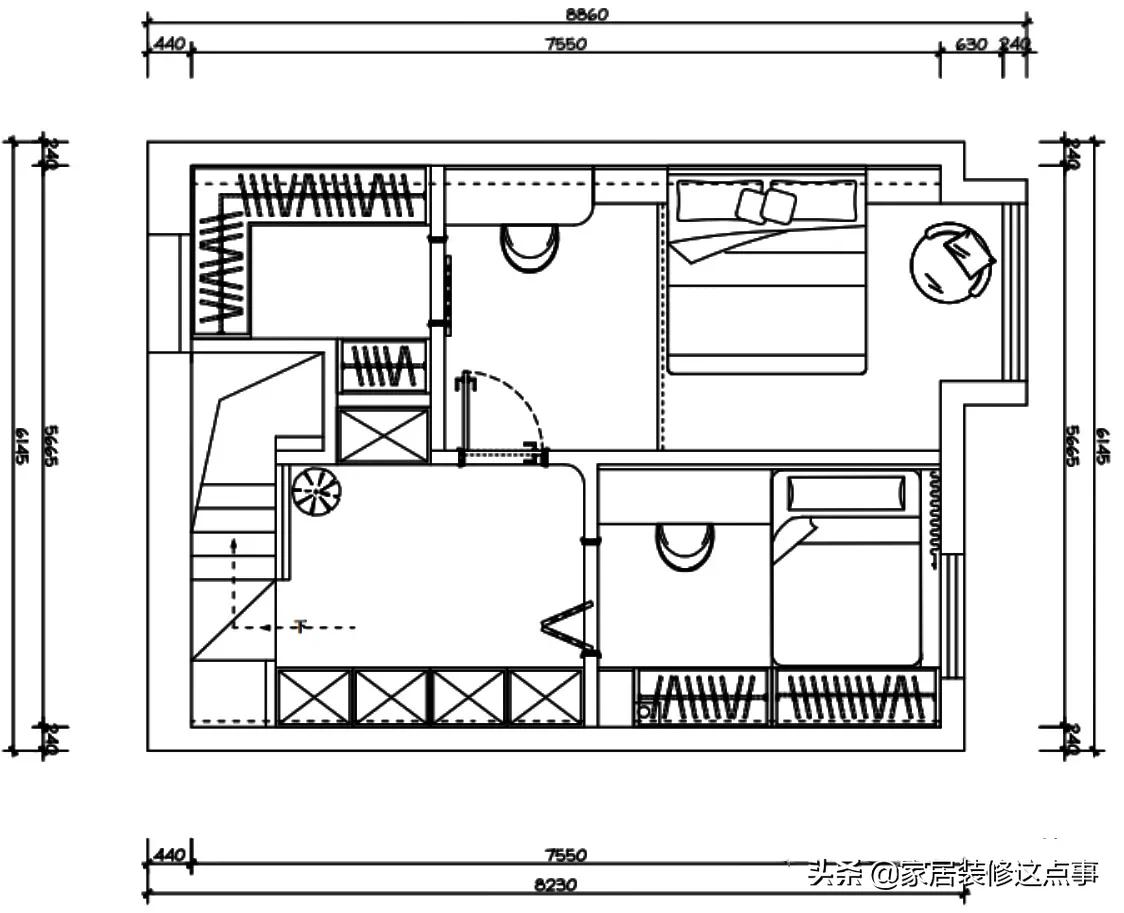
她家位于贵州贵阳,房子是一套面积40㎡的loft公寓;虽然面积不大,但是得益于层高5.6米的优势,装修时通过现浇楼板做成了两层用,让居住感得到了大大的提升,

一楼平面图
一楼:主要是相对动态的区域,包括玄关、客厅、餐厨区与卫生间等。

二楼平面图
二楼:主要是相对静置的区域,包括两间卧室、阅读室、衣帽间等。
玄关区域
打开进户门,一块屏风把客厅与玄关一分为二;屏风虽然占用了点空间,但是屏风是金属边框与艺术花玻璃相结合的,质感细腻又精致,这样解决了开门见厅的尴尬,也让空间更有秩序感。

鞋柜是下方悬浮设计与中间镂空腰线双结合的搭配,并安装有感应灯;鞋柜尽头有卡座式换鞋凳,右边是楼梯扶手也是镶嵌玻璃的。
打开进户门,除了让我感受到室内五脏俱全外,还让我感受到了干净整洁又宽敞的舒适感;通过这个玄关,其实就能够看出屋主是一个对生活很讲究的人。
客厅区域

客厅最为吸睛的是沙发后面用石膏板做的护墙造型,整体圆润流畅;温暖的灯光从护墙板内透出,显得精致又高雅,简单又不单调。

背景墙下半部用的是硅藻泥材质,环保是一方面、纹理也富有层次感;搭配洁白的钢琴、在一株绿植的点缀下,清新明亮、错落有致。

茶几摆放于窗前,拉开窗帘阳光就能洒进室内;一本书、一杯茶、近有花香,远有窗外美景,在这里享受周末一个人独处的时光也是一种美好。

空闲时光,屋主会在钢琴前轻奏一曲,既打发了时间、又是让身心放松的一种生活方式。
餐厨区
这里是小姐姐空闲时光研究美食的区域,也是用餐区域。

厨房与客厅之间没有隔断墙体,一张大岛台把空间一分为二;简简单单的设计既美化了空间、又让原本没有餐厅的户型解决了用餐问题后还不显拥挤。

冰箱是嵌入式的,与高柜合二为一;在原木色柜门的陪衬下,整个厨房兼容了“家”的烟火气、又没有冰箱带来的突兀感,清爽利落还不失温馨。

一个人居住,餐食有时丰富有时简单;工作忙时一碗清汤挂面加鸡蛋,撒上几根鸡毛菜,10分钟搞定,却比外卖吃得健康还实惠。
对于热爱生活的她来说,一个人居住并不代表孤独;兴趣浓厚时,会约上三五知己,一起享用自己亲手烹饪的美味佳肴。

岛台上方吊顶内,还藏有一块投影布;自己足不出户就能欣赏影视大片,也为好友聚会时增加了趣味性。

看到这里,可能有人会问,这种开放式厨房烧菜时油烟会很大吧?关于这个问题我要说的是,除了要根据饮食习惯而定外、还需看烹饪器具。
像屋主小姐姐,本来饮食喜好就清淡、日常一个人生活烹饪的食物也不会特别多;加上她家是用电磁炉代替燃气灶的,再搭配一个无烟锅,所以开放式厨房在她家不是问题。
卫生间
借用楼梯“遮丑”,做了干湿分离;挂墙安装的浴柜,有了墙排下水的加持,打扫卫生方便,柜下还能收纳水盆等生活杂物。

公寓是没有阳台的,关于晾晒,小姐姐是用烘干机解决的;与洗衣机叠加靠墙摆放,也不会让卫生间显拥挤。
阅读区域
这块区域位于二楼梯口的位置,其实这里还兼任了过道的功能。

白墙、原木地板配书架、一株绿植点缀;看似简单的配置,其实对于阅读室来说,更容易让人静下心来享受阅读的过程。

角落处,有一把可移动的休闲椅,一个人、一壶水,在书的陪伴下就能度过一个美好的下午。
卧室区域

客卧在正对楼梯口的位置、小姐姐的卧室在书架的对面。

主卧因为楼层较低,且有一根横梁压顶;装修时在设计师的帮助下,吊顶做了圆弧设计,让视觉有了延伸的意境。


加上告别传统床架的设计手法、结合床头竖线条格栅加持,空间感并不压抑;反而暗藏的灯带营造出了非常舒适的就寝氛围。

床边,一组高低错落的悬浮桌面延伸至衣帽间口,这里是床头柜、是必要时的书桌、也是女主的化妆台;简简单单的设计,化妆换衣一气呵成,很方便。

相对比主卧,客卧面积虽然小了很多,但是床、书桌、衣柜该有的全都有;日常小姐姐作为书房用,父母短住,好友留宿也不是问题。
这样的房子,这样的装修,这样的生活方式,是你喜欢的吗?