一室空间如果只有两个人绰绰有余,但是考虑到以后,还是感觉得加一室,不论以后是有宝宝或者父母偶尔来住,总得有个地方。何况这个房型弊端很多。

▲原始图纸,进门左手一间卧室,直对一个公共区域,应该是设计的餐厅位置,但是非常小,厨房封闭式同样非常小,厨房对面就是一个很小卫生间。客厅带一个阳台空间倒是很大,感觉有点浪费

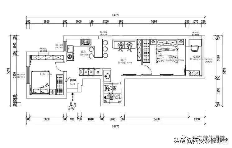
▲这是重新做的布局图。把直对的公共区域和厨房打通,做了开放厨房,延伸吧台兼顾餐桌功能。把原来的客厅缩小分割另外一个卧室空间,成就了两室空间。因为空间很小所以收纳非常重要,两个卧室以及过道空间都定制了收纳柜

▲入户门口,右手借用墙体的凹陷定制了超薄的鞋柜,金色小把手轻奢搭配,颜值还不错。地面通铺灰色水泥砖,不仅耐脏而且耐用。左手就是原来本身有的卧室空间,直对就是开放式厨房,虽然解决不了油烟问题,但是空间大了

▲开放式厨房,统一白色简洁,光线也能明亮一点。水槽台面抬高洗菜无需弯腰了。和客厅空间采用吧台延伸分割,同时可以满足餐厅的功能

▲进门看到的厨房和客厅全景,为了视觉上区分空间,客厅局部蓝灰色变色,和厨房大面积白色清新对比

▲开放式厨房对面过道高柜设计,刚好放置冰箱,因为没有下水,刚好镶嵌烘干机以及电器,功能非常强大

▲反过来看厨房以及过道的收纳,几乎把所有地方都利用上了,水槽旁边镶嵌洗衣机共用下水,简单隔板墙上布置,平时还能放一些瓶瓶罐罐

▲小空间大面积白色非常明智,不仅光线明亮,视觉也能放大空间

▲过道的高柜定制,满足电器的收纳功能

▲客厅空间,局部墙面蓝灰色变色,刚好视觉分区。简单布艺沙发轻巧圆几搭配,侧墙还布置了黑色的书架收纳。空间足够使用

▲因为空间小,所以为了视觉上简洁,采用白色的滑轨灯照明,灯光层次更丰富

▲缩小客厅分割出来的卧室空间,背景蓝灰色变色,木质极简床头搭配白色家具,非常清新简洁

▲与阳台打通设计,透光百叶帘配置,整体简洁明亮

▲阳台不仅满足平时晾衣服的需求,角落还放置了简单书桌兼顾书房功能

▲阳台的另一边同样的高柜满足一部分杂物收纳

▲侧墙定制顶天立地衣柜满足收纳,蓝灰色背景立体感非常强

▲卫生间搭配素雅灰色瓷砖,与白色浴柜,视觉非常干净。淋浴区简单挡水和浴帘分割区域

▲浴柜定制的超薄一体盆极简美观,马桶上方采用隔板也进行布置,也可以用来收纳
