今天我们来聊一下 Wi-Fi 组网当中常用的 Mesh 功能。
简单来说,在组成 Mesh 之后,路由器可以将其他路由器的信号再次发射出去,起到扩展网络的效果。

▲多层 Mesh 网络示意图(来源:小米官网)
与中继相比,Mesh 可以自动同步路由器的节点信息,能够在某个节点出现问题时进行自我修复,还可以让设备选择最好的节点,从而实现更好的网络体验。
更重要的是,Mesh 在最初设置和后续扩展时也更加方便,还支持有线与无线结合的混合组网。
不多废话,下面我们就进入实测环节。
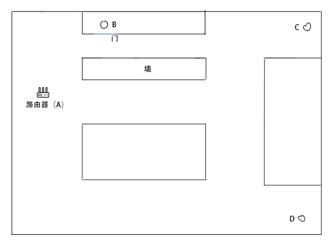
本次的测试环境如下图所示,我会先在仅使用一台小米路由器 AX3000 的情况下,使用一加 9 在 ABCD 四个点进行测速等操作。

为了避免移动信号对测试结果造成影响,本次测试期间手机全程不插 SIM 卡。
在 A 点的 Wi-Fi 网络情况如下图所示,以每台路由器发出两个信号源计算,附近大概是有 20 台路由器,同时还包括几十台电脑、手机、平板等设备。

首先来看网速,在限制路由器最高拥有 100Mbs 左右带宽的情况下,在 ABC 点都可以几乎跑满,*载下**速度也维持在 25-30Mbps 上下。
不过在 D 点的*载下**速率只有 50Mbps 上下,网络抖动与丢包也大幅增加。

接下来是游戏延迟测试,可以看到在 BC 点的延迟与 A 点相比有一定增加。而在 D 点不仅延迟较高,还会经常出现 100+ 的延迟,十分影响正常游戏。

根据以上测试,可以看出仅通过小米路由器 AX3000 一台路由器,移动设备确实可以在测试范围内的大多数地点获得不错的 Wi-Fi 网络质量与体验。
这说明什么?说明这款路由器的性能还不错 (记得给广告费)。
不过这仅限于测试环境,如果中间隔的是钢筋比较多的承重墙,室内墙面设计比较复杂,或者在公寓那样的密集住宅,以及多层环境下,网络网络体验会更差一些。
更重要的是,测试用的一加 9 在 D 点的 Wi-Fi 信号总是在 2 格与 3 格之间反复横跳。

众所周知信号的质量如何不仅取决于实际体验,信号是否满格也是非常重要的,所以接下来开整。
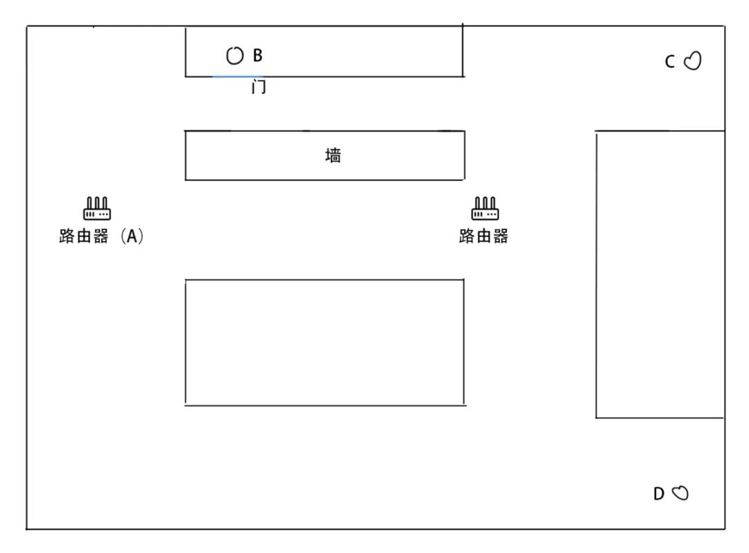
首先,我按照下图的地点,在更靠近右侧的地方放了一个 Redmi 路由器 AX6s。把它连上电源之后,在与最先的小米路由器 AX3000 组成 Mesh。

组成 Mesh 的操作很简单,只需要在米家或者小米 Wi-Fi 手机应用当中打开路由器相关页面,进入 Mesh 网络设备,选择设备然后等待即可。

我也用家里的 TP-Link 组了一下,现在比较新的型号都有「易展」按键,按下即可进行配对。对于没有这个按钮但是支持后台操作的型号,可以升级系统后使用网页进行操作,同样十分简单。

在组成 Mesh 网络后,我又来到 D 点进行测试。
这次网速直接达到了接近 B 点的状态,网络抖动与丢包也大幅下降。对于游戏爱好者来说,这次的延迟也降低到了相对合理的范围内。

当然对于我来说,更重要的是 Wi-Fi 终于可以跑满格了,用起来也有安全感。

上面我们展示的是无线组网的效果,如果在装修时已经预埋好了网线,还可以使用有线组网。这样不仅网速更快,信号更稳定,不会占据路由网速,组网距离也能大幅提升。
例如在使用华为的某些路由器时,只需要将重置好的设备接入另一台华为路由器,就可以自动完成组网。对于某些没有网线覆盖的位置,也可以将其断开切换到无线 Mesh。
关于 Mesh 组网的一些常见问题,我会在下面的内容当中以问答的形式进行介绍。
Q:想继续增加路由器,怎么办?
A:直接将新的路由器加入现有的 Mesh 网络即可。
Q:如何获得更好的无线 Mesh 体验?
A:可以入手三频路由器,回传不会占用手机等设备使用的带宽。另外对于电脑、游戏主机等不需要经常移动,并且对网络延迟比较敏感的设备,建议使用有线连接。

▲ 某三频路由器介绍页面
Q:不组 Mesh 行不行?
A:单层的中小户型使用一个路由器也完全没有问题,对于普通的网页浏览、在线视频*放播**等,2.4GHz 频段也完全可以满足需求。

▲ 对 2.4GHz 无线设备发射功率限制的部分内容
但是由于国家对路由器的发射功率、辐射等有限制,再加上智能家电等设备会分一部分信道和带宽,会导致单个路由器不够用。如果真的感觉网络经常会卡顿,还是考虑换个好一些的路由器或者组 Mesh 比较好。
Q:不想/不会组 Mesh,有没有更简单的替代方案?
A:可以购买子母路由,只是价格会高一些。
Q:不同品牌是否可以组 Mesh?
A:理论上是不可以的,毕竟不同产品之间不仅存在后台、协议等方面都有区别,甚至名字都是不一样的,例如华硕叫做 AiMesh,TP-Link 叫做易展。

不过它们可以在桥接后与自家的路由器组成 Mesh,部分产品也可以通过刷梅林固件兼容其他家的 Mesh 方案。
最后,如果想要实现更好的室内无线组网体验,建议在装修前预埋好网线。
普通家庭建议使用超五类或者六类网线 (千兆),如果对内网有更高的需求,可以考虑超六类或者七类网线(万兆),这样无论是 AC+AP 还是组建 Mesh 都会更方便。
对于 Wi-Fi 放大器和电力猫这些设备,个人的建议是不推荐使用。毕竟它们已经是相对过时的产品,目前两三百元的路由器也完全能够满足家庭组网,甚至单路由器覆盖的需求,用着也更舒服。