「施工图」不具备指导落地的方案,算不上完整的方案(施工图纸排兵布阵)
(本文来源于微信公众号“dop设计 ”, 供于学习和交流, 向原作者致谢, 若有涉及到版权及内容问题请联系我将在第一时间处理 !)
正所谓“空谈误国,实干兴邦”,作为设计行业同样如此, 未经深入思考和不具备指导施工落地的方案,算不上完整的方案 ,只谈效果不谈落地,甚至可以说只是设计师一个人的意淫。
从设计效果到实际施工落地,靠的是什么?当然有很多因素,其中很关键的点就是 设计交付物: 施工图纸 。
施工图既是 前期设计的表达、思考细节处理的过程,又是后期施工落地的依据 ,所以优秀的设计师一定是对施工图有深入的了解,对收口和细节有把控能力,懂得施工工艺,完善施工图让设计能够被执行。今天我们就对施工图进行初步解读:
- 1、 前期图纸梳理组织
- 2、 任务安排,专业单位对接
- 3、 细节推敲、图纸审核
- 4、 效果图与施工图的关系理解

一.前期图纸的组织

1、 首先需要根据项目情况,分析需要出哪些图纸,如无特殊情况按照公司的制图规范出图即可,有些我们是可以根据项目情况去细化增加或者减少部分图纸,最终目的是将设计内容表达清楚。
2、 首先平面图是所有图纸的基础,这部分应该在做效果图时就已形成初步的平面,可能还需细化一下完成面,和整个平面系统图纸,那么平面图纸有哪些?这里挑重点地说:
- 原始间墙图AR
- 平面布置图PL
- 天花造型尺寸图RC
- 天花综合点位图RL
- 地面铺装图FC
- 机电图EM
- 立面索引图ID
- 立面图EL/大样图DT/门表MD



其中平面部分,还可以细化墙体尺寸图、装饰完成面尺寸图,用于墙体定位,家私尺寸图用于表示平面活动家具的尺寸及空间尺度关系。
天花部分可以拆分出消防图,来复合消防点位,规范是否满足、点位是否冲突、造型是否美观,进行综合调整。
并非所有项目都需要这些图纸,可根据项目实际情况和公司制图规范选择适当的方式表达。
二.施工图纸工作任务分配
1、 为合理有效地推进项目进行,需制定相应的时间节点和工作任务。
时间节点可以根据图纸的组成部分,在每个阶段分别完成和校核既定的平面部分、立面部分、节点部分。
即使在不着急的情况下,同样需要制定计划,毕竟你不知道甲方爸爸会不会一时兴起就来催图,现在、马上、rightnow的那种。
2、 前期的工作任务分配
项目工作量小时,由一个人从平面到立面节点完成整套图纸的绘制,能减少方案交代时一对多的沟通成本和理解误差,相对比较高效和准确。
对于工作量较大和时间紧急的项目,就需要合理组织和分配任务,通过共享文件或者软件实时同步更新,多人分工协作。
这里先拿一个简单平面进行举例说明,如何划分任务:
a、 首先有了平面,无论平面是否深入都可展开任务分配工作
需要在平面图上梳理出一张立面索引图,就是要 梳理出要出多少张立面图,需不需要局部索引放大图 ,剩下的就是节点,这样基本的工作量就梳理出来了。
b、 立面索引图原则和重要性
原则上是要尽量精简,用最少的立面去表达完所有的装修面。
平面图内部有独立空间可以索引放大,比如说卫生间、包厢之类的空间,这样可以分出一个完整的部分,便于再分配。

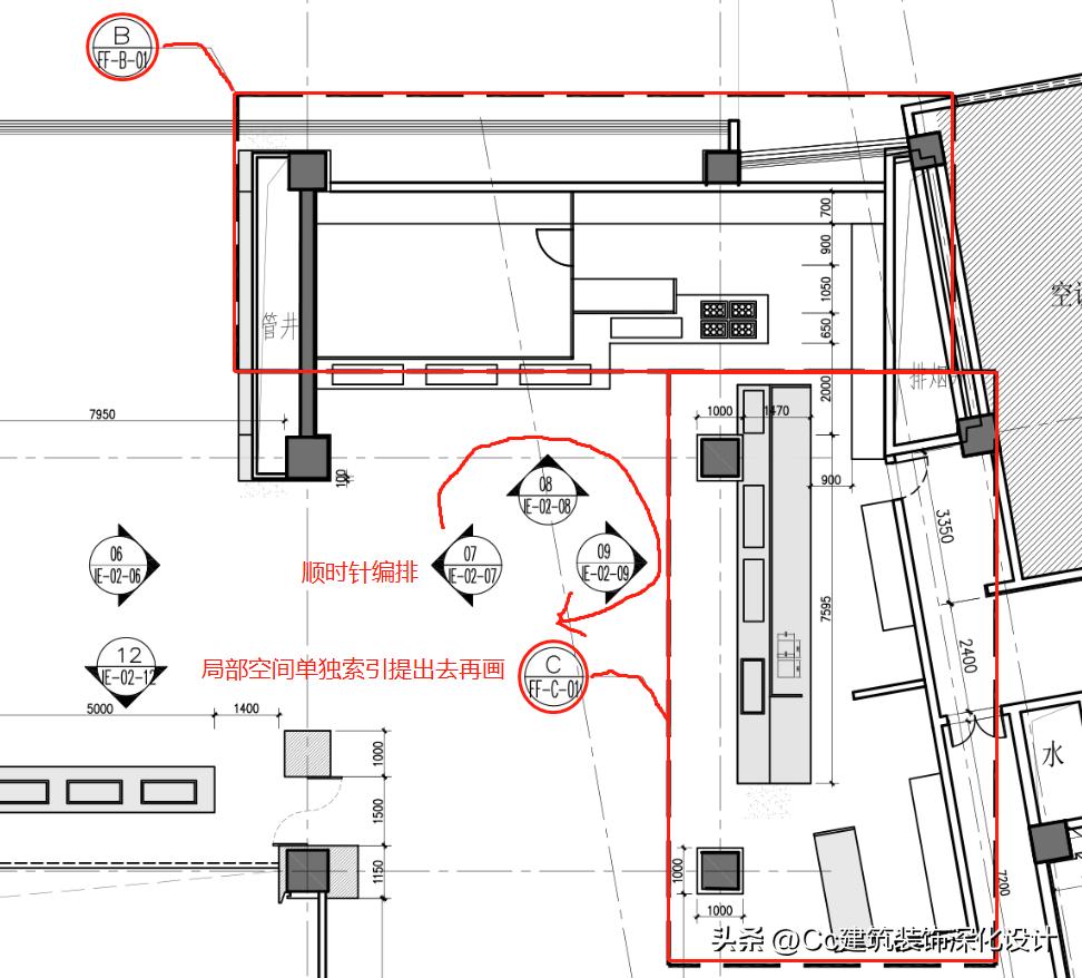
△更具空间游走动线顺序编排索引
顺序上 由外立面到内立面,内立面从入口开始,公区先行,而后独立空间、卫生间也可独立分出平面。

△顺时针编排索引符号,局部空间可单独作索引符号索引出去再画
这样去划分,能够让每个人都有相对清晰和完整的任务分配,哪怕过程中有调整,利用图纸参照,或各自部分的内容反推到总平上也不会有太大的影响。
c、 例证说明
为了方便理解,我们对一个简单的平面进行模拟排布,简单来说就是 由外到内,游走动线,顺时针,局部空间单独索引。

① 如下图所示,有外立面时,可以从外立面开始作索引IE-01 / 02。
若外立面比较复杂还有很多不确定影响和因素, 可在索引编号上作调整,将外立面编号为WIE-01 / 02 ,作为特殊立面单独编号和调整,不影响后面的室内立面索引可以继续以IE-01 / 02/03往后编号。

② 往室内立面IE-07/08/09/10/11/12/13/14/15/16,这部分可以采用通长立面来表达,这样有完整的立面关系,又能减少立面图纸数量,尽量做到用最少的立面表达完所有的装饰面。
③ 独立空间IE-17/18/19/20排在后面,卫生间也可以往后排IE-21/22/23/24,或考虑到卫生间在整个图只占一小部分为位置,总平无法表达细致,可将卫生间独立出分平,如图所示W-FF-01,这样卫生间平、立面和节点图纸就可以独立出来,方便分配也不影响其他室内空间的进度。
3、 专业单位的对接
为了使项目更好的落地,在施工图过程中,会整合各专业单位的图纸,并体现在施工图当中,做综合性的整合协调工作,这个环节非常重要,要做到资料整合、图纸深化、设计协调等,还要及时发现问题、反映问题,并提出有建设性的解决方法,几乎全能离成为“人上人”不远了。

三.细节推敲、图纸审核

1、 先考虑整体布局和工作量人员分配,才能安排工作,再做细节上的推敲,方案也是一步步推导出来的。
当方案还不完全完整时,施工图可根据经验和想法往后一步去做推导,提前给到一个预设的结果 ,也相当于让自己参与方案当中,这样和方案就有了一个可供讨论的点,也是积极参与方案的过程主动推动进度。

2、 审核图纸通常有3种方式: 个人自审、同事之间互审、过程和最后由主管或方案把关再审。

审图关键有2点: 材料和尺寸 。前期梳理完结构关系, 在规范、合理的尺度之内所做的设计和图纸,若材料和尺寸上没有问题,把握住关键的原则和方向 ,施工图纸基本上就不会有大的问题。
四.效果图与施工图的关系
效果图和施工图都是作为表达方式, 一 个是前期汇报给甲方看方案效果,一个是后期给施工看怎么做。

施工图同时也是对效果图的一种解释说明 ,落实到每一个具体的工艺材料和尺寸,具有更好的落地性以及对现场的指导和把控。

换句话说就是: 你的创意可不可以落地,怎么样落地,就体现在施工图上,这就需要你懂得细节,会画施工图,把创意细节变成施工图。


过程就是: 从设计手稿到图纸,从图纸到施工,从施工到效果,施工图纸。

施工图如同设计师的基本功,对 基础的规范、材料的理解、施工工艺、收口细节 ,这些都至关重要,每一小点的累积,最终将会影响整体呈现的效果,要想成为一名优秀的设计师,一定要练好基本功。
对于那些想转设计又觉得很难,或是还在苦苦加班画图的人来说,这里借用一位大佬常说的话: “ 做好当下的事、做好手上的事,把图画好,把问题解决掉,设计本身就是解决问题,每个问题到你这都能很好的被解决掉,能做到这一点就是在做设计,你的价值就已经得到体现了。 ”
今天关于 「施工图」不具备指导落地的方案,算不上完整的方案(施工图纸排兵布阵) (本文来源于微信公众号“dop设计 ”, 供于学习和交流, 向原作者致谢, 若有涉及到版权及内容问题请联系我将在第一时间处理 !)就分享到这里, 希望对你有所启发,欢迎留言补充,大家一起探讨学习……
