生活于趣味之中,生活才有价值将肆意烂漫的眉眼交给生活放一曲爵士,亦或圆舞曲,持一杯威士忌,亦或咖啡朋友相聚时的欢笑声总能抚平被压力压皱了的情绪。
老照片的底色因岁月温暖而泛黄相框中父母的笑颜却灿烂不改余生漫长,以幸福的碎片时给家更多幸福与温暖。

项目详情
- Location - | 迪尚 悦海名居
- House Area - | 面积 190㎡
- House Type - | 户型 平层
- Design Style - | 风格 现代风格
本案位于迪尚悦海名居,业主是一对事业成功、生活甜蜜的中年夫妻。对细节品质要求较高,他们希望的未来的家可以是简约大气,实用且不繁琐花哨的空间。
王老师与客户初次接触沟通过后,便与业主建立了心照不宣的默契,结合业主需求和下喜好,她将此案定义为现代风格,白色与浅灰色为基调,搭配些许木色,以时尚大气的设计手法,赋予空间安静、时尚、温馨的氛围。
从开始沟通到签约开工,设计师只来过寥寥数次,平面方案和最终的效果图都是一稿过,对王老师的设计能力和筑雅品牌实力给与了极大认可,将自己的家交由王老师全权负责。
客户需求
1.提升空间利用率,要有一间老人房间;
2.功能区分配合理,充分利用采光条件;
3.设计书房及衣帽间,满足多维生活需求;
4.有舒服的生活动线,并保证充足收纳。
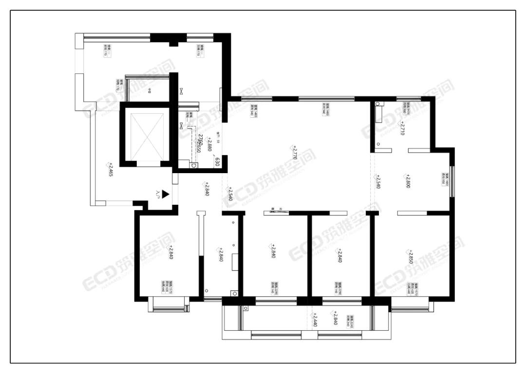
原始平面

户型规划:
1.去除多余结构,扩大厨房,规划储藏空间;
2.餐厅做水吧台,满足生活品质与招亲待友;
3.设计书房衣帽间,保证生活的品质与动线;
4.入户间老人房,方便照顾老人生活和外出;
5.整体活动空间均做可全面享受阳光的设计;
关于设计:一处居所,容纳着生活的百种可能。现代城市居住空间,人、自然、艺术,总是在寻找着彼此可以相处共生的方式。
通过人性化思考,创造出的一个功能性完整的生活空间,让家里的每处角落都成风景。夫妻俩在这里谈天说地,畅谈未来,尽享平和的时光,细品生活的美好。
01.生活区:生活情感聚集地

▲玄关


▲客厅
合理的布局设计允许自然光通透整个客厅的空间。自然光穿过纱帘撒入室内,给客厅加了一层高级的滤镜,适可而止的原木色又添上一笔沉稳和宁静。
王老师从生活的本真与温情出发,空间以简洁的线条贯穿素雅的肌底,去除繁复的装饰,回归居住的本质,在某个慵懒的午后,细嗅温暖的阳光,我们坐着不说话,一切就刚刚好...


▲水吧区

▲餐厅
开放式的餐厅与整体完全融入,让一家人产生更多的交流与互动,长长的餐桌可以容纳很多高谈阔论,亦可以满足微醺需求,在水吧区随手接一杯健康水,等待鲜香的佳肴的端上餐桌,展现的不仅是太太的好厨艺,更是一家人其乐融融的氛围。
02.卧室休憩区:精神满足地

卧室延续整体风格,将简约和时尚的既视感悄然酝酿;温柔的月光透过飘窗轻柔的散落,映落在地板上的斑驳光影,让温馨的氛围在室内氤氲而起。

▲主卧
手边,有爱不释手的书,枕边,有已经甜睡的爱人,通过设计,让他们可以更好地感受光影的变化,感受四季的轮回,回归生活的本真。

飘窗设计引入更多阳光,色彩之间相互搭配,没有过多冗杂的装饰,让老人的房间更安全,实用且充满质感。

▲老人房
王老师根据业主需求,在老人房间内加入一个可移动型的床,在阳光灿烂的午后,让床推到飘窗旁,看看景观绿意,蓝天白云,一起回味过往,聊聊以后,让老人有更畅然的生活。
03.室内功能区:诠释品质生活

▲书房
在现代风情的纹理中里,觅到白茶清欢无余事的写意。简单但不随意的落地灯给看书或是办公带来一丝温情。在这里品茗泼墨,云游书海,享受一个人的时光,这一隅天地,可寄闲情,可照人生。

▲衣帽间
衣帽间延续了整体简约质感的手法,灰白与黄色的碰撞,带来一派清新气韵,优雅的宝贵内的包鞋闪闪发光,记录着主人的品味,将空间的简约美感与高效功能性绝妙展现,让每一个清晨都更让人期待。