今天整理的是长安大学渭水校区的装修方案,总共3个户型,120平、140平、160平,户型结构都非常相似,优点都是南北通透,各空间分布很均衡,不管装什么风格只要家具样式定位好,后期在有经验的设计师设计后+手艺好的工人操作下,都会出效果。缺点也都很统一,就是餐厅的墙体需要改动,可以做收纳柜体也可以做实体造型墙。面积较大的户型阳台上可以做动静分离的格局,也可以增加收纳功能!
现在西安市场上的装修公司大大小小的应该有好几千家吧,叫得上名字的老牌子装修公司却不多,很多人问我,你们今朝装饰跟其他公司比优势在哪里?在现在这种报价系统都比较透明的市场环境下,价位已经不是首要的竞争力了,我想今朝装饰的优势应该在他的施工质量跟售后了,拼的是服务了。
从陕师大家属院、理工大家属院、再到政法大学家属院、电子科技大学家属院、司法局家属院、曲江金水湾家属院、20所、二炮工程大学、四医大、西勘院、医学院、陕西邮电大学、杨凌农科大专家公寓,陕煤家属院、长庆油田家属院,以及现在最火爆的长安大学渭水校区家属院、西北工业大学家属院等等,这是我8年里经常能听到的小区名词,但凡有这些小区的客户咨询,我们都是很有自信的告诉他们【我们有全套的设计方案跟工程样板间可以随时参观】!
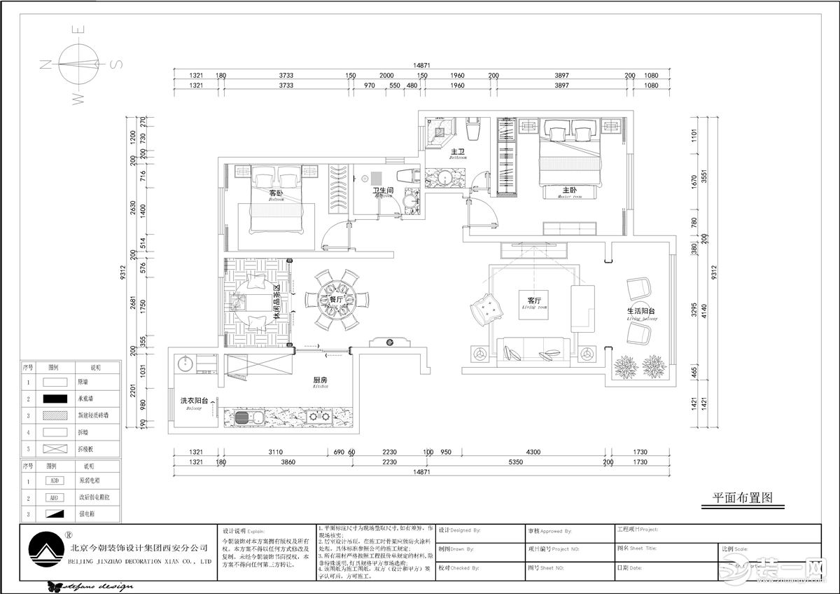
一、A1户型,120平两居扩三居,这个户型装修时需要注意的是:
1、要把进门玄关的位置确定好,根据家具的风格去做玄关的样式跟颜色搭配。
2、餐厅方位的空间可以合理化利用,书房?休闲区?都可以,根据自己的住家情况来决定,但要注意的是,餐厅的采光主要来源这个空间,所以必须要做的简单,整洁,美观。

装修风格上没有设限,根据自己喜欢的家具去定义就可以,简单大方的北欧、简约可以,温馨住家氛围良好的简美、简欧也可以,根据自己的装修预算去决定装修过程中资金的分配。
【装修参考案例】

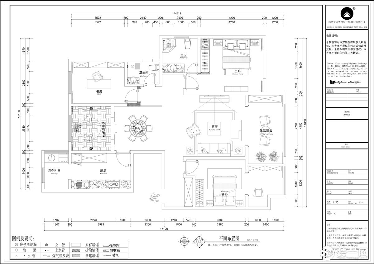
二、A2户型,140平,这个户型在装修时要注意的
1、进门走廊过于狭长,后期装修时可考虑顶面分区,地面统一的装饰手法。
2、餐厅墙也是一样,需要做装饰来改善。这个户型的客厅面积相对来说比较小,所客厅在美观的前提下也需要做储物的考虑,这面墙体刚好可以弥补这一点,一定要好好利用。

我总说【底子好了,画什么样的妆都好看】,户型本身就很好,无论采光通风都是没的挑,所以在布局规划做好之后,后面的装修风格只要根据家具的方向定位即可,现代简约、简美风格、后现代等都是可以的!
【装修参考案例】

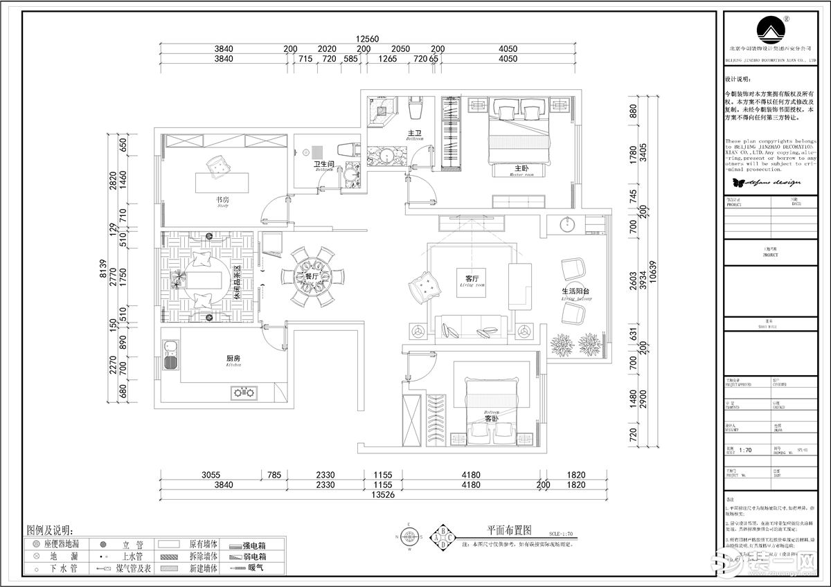
三、A3户型,160平四居室,这个户型跟140的户型很相近,装修的注意点也差不多
3、阳台面积过大,需要我们根据家庭情况去改善,做动静分离也好,做储物功能也好,都是可以的

一般大面积的客户,在装修模式上,我们会建议做半包或是半包+主材代购+全屋定制,这种装修模式比较适合在风格定义、设计要求上比较有想法的业主,在建材的选择上比较充足。很多时候我们也建议装修风格上在新中式、美式这些彰显品位的风格上去定位,大空间的房子,需要用装饰、造型去填充,不要让空间显得太过单调【不要觉得简单的装修就不会出现审美疲劳】!
【装修参考案例】

120平的A1户型、140平的A2户型跟160平A3户型还可以参考下面这个设计方案

长安大学渭水校区家属院目前多个工地正在施工中,可以随时预约参观,如果你是该小区的老师或
是在该小区周边需要装修的业主,可以添加下方二维码联系我们
添加时请务必帮我备注上【装修+装一网】以便我归类保存,及时回复你的消息