
对于空间我们永远有丰富的想象。

该项目是一套360㎡的阔景大平层,90后年轻业主有着自己对生活的独特见解,去除繁复,现代风格成了最优的选择。
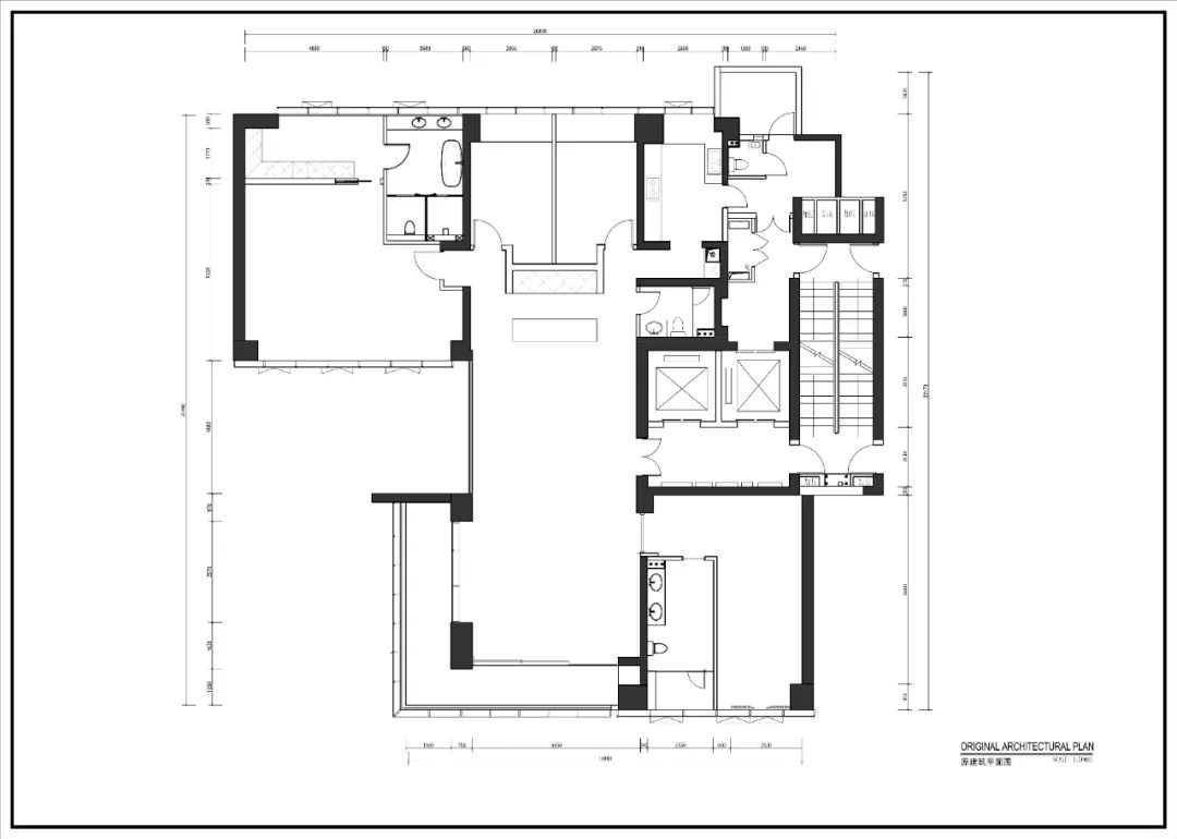
户型优化:主要改造是原有的一间大套房优化为两间小孩房,一个小孩娱乐区及共用套卫,满足其功能需求外并梳理了其空间状态,动静相宜。

清风徐来,穿堂而去,白色的纱幔连接视觉深处,摇曳着梦幻又富有艺术的舞姿。晨间的阳光,四面环绕,陪伴着人们迎来丰盛完美的一天。佰利设计用简适、天然的方式,为居者分享了所想即所得。
双面采光的大客厅无疑是这个家的核心区域,午下时分,那一抹夕阳余晖洒进客厅,家的温度于此升华。



这是天然呈现,每一样都在默默表达。日常画面任由时间的剪切、拼接,充满了蒙太奇的生活影像,激荡着心灵。

家宅的物什,雕刻得越简单,对居者想象的影响就越大。舒适的miontti沙发,描绘出家人与朋友间畅谈的亲密时光。在通透明朗的视觉下,尽可能传达简洁、开放的包容感,晚暮时分,在光与斜影中静谧归家。


悉心雕刻的家宅,是一处庇护所,它要求人们单纯地居住其中,“简单性”给人以巨大的安全感。手上的纸张,随着思想一页页翻动,耳畔仿佛有树叶在沙沙作响,听,那是心底唤醒的世界。




春日宴,绿酒歌。大理石的熔岩喷薄出幻象奇纹,聚积在了这片被丝织包围的天空,它用光滑如雪的地板作为平台,定格了盛放。四时唯春,万物生长。






有些色彩是天生的酒,看着不起眼,但微醺,甚至在满目的黑白灰中绽放醉人的光晕。皮质的嵌合,透露着清淡的奢华、高贵,更重要的是柔软耐磨,可减少人长久伏案的不适与劳累。



增加一些别样设计,即可营造童真趣味。萌软的粉白组合,既治愈又梦幻,角落的大熊玩偶,静静地守护着这个女孩的秘密基地。

色彩碰撞是这几个空间的特有属性,洞洞板、壁布、家私,灯具相关的选择都是为了空间服务,追寻自然。



一个家宅的梦想家任何时候都能看见家宅,佰利设计用空间作为介质,传递给居者尊享的态度,丰富生活的每一个起居日常。
平面图
DESIGN PLAN

初始结构

平面方案
项目信息
ABOUT THE PROJECT
项目名称 | 深圳华侨城天鹅湖一期私宅
项目地址 | 广东 深圳
项目时间 | 2021年7月
全案设计 | 佰利室内设计
主创团队 | 设计总监 施瑶 设计师 邹冲 张文栋
软装设计 | 人山禾乙软装
主材品牌 | Miontti 、B&B、HERMES、威法高端定制、乐美尚智能、汉斯格雅、唯宝洁具、铭悦家居、必美地板、企一灯光、德赛斯岩板
关于设计师
ABOUT DESIGNERS

设计总监 施瑶
施瑶,深圳市佰利建筑装设计工程有限公司室内设计师,擅长别墅、豪宅、样板房等空间设计;精心准备每一次的设计作品,把业主对家的美好憧憬充分展示在每一处细节中,尽心尽力、不负所托。擅长注重功能美学与艺术的结合,营造并实现客户想要的那个港湾。设计理念:家是每一个人所憧憬的那一小块栖息地,能有多美就做多美。
关于设计公司
ABOUT THE DESIGN COMPANY

佰利设计,十几年专注室内设计历程,坚持只做高品质的作品,让客户拥有以个人为出发点,真正希翼又独到的生活空间,高端私宅专家。佰利设计团队,不仅拥有一批高素质的优秀设计师,更有足够强大的供应商体系和尽心尽责的工程团队,以及对专业的极致追求和实现能力。
设计以“专注高端设计,定制私享生活”为公司宗旨,以超前的设计理念为指导,坚持做有內涵贴近生活的的设计作品。
佰利设计团队有著丰富的大型项目设计及施工经验,包括深圳科陆电子研发大楼、深圳德維森大厦、深圳盛淩电子股份办公楼、深圳中汽零投资有限公司写字楼、江西吉安铜锣湾广场、深圳香蜜湖一号別墅、矽谷別墅、圣莫丽斯別墅、兰乔圣菲別墅、波托菲诺•纯水岸別墅、天鵝堡豪宅、星河丹堤別墅、水榭山别墅、青青山庄別墅、兰溪谷豪宅、中信红树湾豪宅、大南山紫园別墅、河北西山禦园別墅、新天鵝堡二期,华侨城香山美墅,曦湾天馥大宅,宝安壹方中心,蛇口鲸山覲海叠墅等诸多案例。
本案由佰利设计提供,为授权稿件
未经授权,请勿转载