业主是90后小情侣,房子作为婚房使用。功能上要求每个空间都有书桌,充分考虑收纳空间。他们需要的家其实只是一个简单,自然的空间,能够拒绝喧嚣与繁杂,充分体会宁静和安逸。

客餐厅布局
小区:郑州永威五月花城
案例户型:两室两厅
装修风格:现代简约风格
建筑面积:90平
基础装修:7万
主材:5万
设计师:宋丹(微信号15937199737)

客餐厅布局

客厅全景

餐厅布局

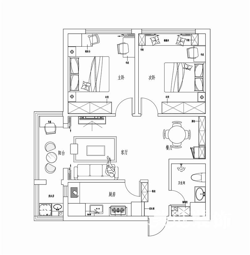
设计师宋丹丹15937199737——平面布局方案

门厅鞋柜

主卧室

次卧室
业主是90后小情侣,房子作为婚房使用。功能上要求每个空间都有书桌,充分考虑收纳空间。他们需要的家其实只是一个简单,自然的空间,能够拒绝喧嚣与繁杂,充分体会宁静和安逸。

客餐厅布局
小区:郑州永威五月花城
案例户型:两室两厅
装修风格:现代简约风格
建筑面积:90平
基础装修:7万
主材:5万
设计师:宋丹(微信号15937199737)

客餐厅布局

客厅全景

餐厅布局

设计师宋丹丹15937199737——平面布局方案

门厅鞋柜

主卧室

次卧室