在工作了一天回到家洗一个舒服的热水澡是多么幸福的事儿啊,因此,拥有一个良好的舒适的淋浴环境显得尤为重要,浴室柜是卫浴间不可缺少的家具了,在卫浴装修中有着举足轻重的作用,那么浴室柜安装高度多少比较合适呢?下面早晨装饰就来给大家介绍一下!
浴室柜的安置和卫浴间的面积有密切的关系,大空间要大而得当,小空间要各项功能俱全,但还是以使用方便为最终目的。在宽大的卫浴间里,干湿自然分离,良好的物理环境使得浴室柜有着充裕的容身之处。
设计师可以根据使用者的功能要求和审美需求来放置不同形式的浴室柜,各种洗浴用品、清洁用品以及衣物等分门别类地置放。另外,还可以根据家庭成员来分类,使每个人都有独立的储物空间,让使用者更方便、卫生。
一、确认浴室柜的安装高度
一般浴室柜的标准安装高度是80~85cm,这是从地砖到洗手盆的上部来计算的,具体的安装高度还要根据家庭成员的高矮和使用习惯来确定,但在标准高度范围内是最合适的。
二、浴室柜标准尺寸分析
按安装方式来分,浴室柜分为挂墙式浴室柜和落地式浴室柜,落地式浴室柜镜子需要安装。
大部分浴室柜最常见的标准尺寸是长(一般包括挂柜在内)为800mm~1000mm。宽(墙距)为:450mm~500mm。由于浴室的大小基本差不多,对于超大的浴室柜和超小的浴室柜市场上都不多,如果接受定做,对美观和价格是有很大影响的。
如果浴室柜超小,只能放台盆了,还有一种是挂墙式瓷盆,不仅美观,而且不占地方,长500mm左右。浴室柜除了常用的标准尺寸外,长的还有1200mm的,一般欧式的和简欧的浴室柜尺寸要大些,因为大部分要加上边柜,可以达到1600mm。
一般浴室柜的安装尺寸是,柜子表面离地面的距离是80mm~85mm。镜子的安装要根据主人的高度和习惯,人站在前面,头在镜子的正中间最合适。
三、不同种类浴室柜的安装
1、挂墙式浴室主柜安装方法
首先检查墙体是否实芯(否则改用落地式),按选定的孔位,用冲击钻在墙面上打孔,将挂墙配件中的塞子装入孔中,再用自攻螺丝将柜与墙面锁紧,也可用膨胀螺丝安装,柜子安装完毕后,再把台面盆对准柜子的木笱,调节放平。
2、落地式浴室柜安装方法
将柜体横放将柜脚组件通过双头螺杆拧在固定片上,然后放平柜子摆在适当的位置,柜脚尽量往外侧板靠,使柜体受力均衡。并通过地脚螺丝调整到水平。摆放时看四个脚是否平稳。如不在同一水平线上,柜体受力不均匀,线条扭曲,不但影响美观而且影响使用寿命。
四、浴室柜安装四大注意事项
1、安装位置
在铺地砖和墙砖前,就要确认好浴室柜的安装位置;由于安装浴室柜是要在墙上打孔的,还需要进水孔和排水孔的,一旦安装后一般不能移动位置的,所以确认好浴室柜的安装位置是安装前的必备条件。
2、浴室柜的形状和大小
浴室柜的位置确定后,只能根据安装位置来定浴室柜的形状和大小。买浴室柜时,应该先把预留的浴室柜的长宽尺寸都量好,按照这个尺寸去买。
3、水管的管线图和电线的线路图
安装时要在墙上用冲气钻打孔,所以安装前确认管线图和线路图至关重要,如果打破水管或电线线路图就要撬开部分墙砖,造成不必要的损失。
4、每款浴室柜的配件和安装是不同的
也就是同一型号的打孔尺寸(开到墙上孔的尺寸)也不尽相同,所以一般可以按照说明进行安装,但安装流程是基本一致的。
二、小区案例赏析
所在地: 合肥
建筑类型:高层住宅
小区名称:中海滨湖公馆
设计风格:现代简约
房屋格局:单层
户型面积:96㎡
空间格局:三居室
装修模式:全包
家装设计:山水集团—早晨装饰(旗下品牌)
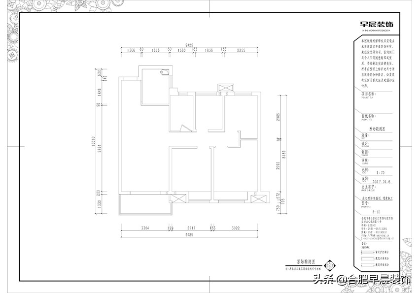
户型图:

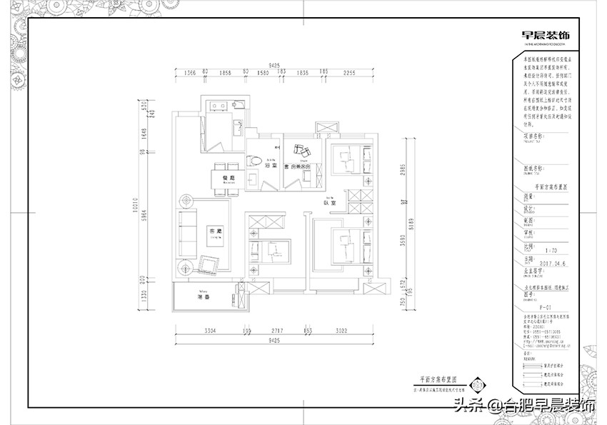
平面图:

效果图:




三、小区案例赏析
所在地: 合肥
建筑类型:高层住宅
小区名称:中海滨湖公馆
设计风格:混搭风格
房屋格局:单层
户型面积:96㎡
空间格局:三居室
装修模式:全包
家装设计:山水集团—早晨装饰(旗下品牌)





