☆ 房型:2房2厅2卫,全朝南
☆ 装修风格:简约+欧式元素+低调奢华
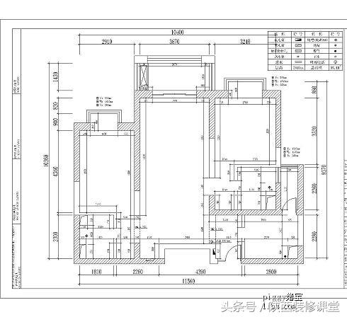
原始平面图

平面布置图

厨房砖铺完了,可是砖的颜色我发现居然和商场出样色差差很多,一点都不艳丽,心里很郁闷,现在只能指望搭配完白色模压橱柜能看起来好些,否则真的好去撞墙了555555
来看看色差是多么的杀千刀
先看我家实景

再看看专柜随便用手机拍的,一种被骗的心情油然而生

次卫瓷砖也贴好了
花框里面是镜子
粉色的砖贴出来效果也一般般,买了这种砖真的是危险的尝试阿,还是希望白色模压柜子上去以后会提亮

主卫瓷砖铺贴

主卫镜子那面

填缝剂填完之后,视觉效果好了很多

马赛克铺好后

主卧隐形门

玄关拼花

饰面板

厨房瓷砖,侧看

射灯

厨房吊顶

橱柜安装好

橱柜

橱柜3

橱柜4

橱柜5

次卫浴室柜

香二翅豆地板

主卧储藏室

钢琴背景墙

浴霸

主卧台盆

餐厅背景墙

厨房门

主卫镜子

次卫门

次卫镜子

次卧门

远看厨房

淋浴房

主卧隐形门墙面

厨房水槽

厨房灶具

次卫柜

毛巾架、化妆镜

钢琴背景墙

餐厅背景墙

主卧储藏室

次卧油漆

次卧靠近窗户

次卫马桶

远看次卧

电视背景墙茶镜

客厅壁纸贴好咯

次卧书柜

玄关

玄关换个角度

美貌冰箱

客厅全景

水槽全景

阳台洗衣机

衣帽间

餐厅客厅水晶灯

客厅家具进场

餐桌椅

客厅换一个角度

卧室

衣柜

台灯

餐厅角度看过去

换了个壁灯,纠结的灯伞亚,到底要黑的还是灰的阿

颜色大pk

洗衣机安装好了

衣帽间的门装好咯

看看沙发

松下小洗衣机终于到货了

白色花格总算装上了

玄关鞋柜

床垫来了~~
德国郎乐福床垫 得意无法显示

科勒贝诗泡泡浴缸,嘿嘿hoho~无法显示

TOTO马桶+卫洗力

主卫全景

需要装饰的玄关

终于照到门口的穿衣镜了

餐椅包装拆掉了

餐桌

客厅
纠结阿,到底要1.4M还是1.6M的桌子阿

餐桌再来一张

艺术墙这里打算放钢琴

主卧窗帘窗纱

客厅窗帘窗纱

书房窗帘窗纱

主卧窗帘

客厅窗帘

书房窗帘

沙发垫子终于换好了

电视

书房重新摆设了一下,看着好多了

钢琴摆上啦,阿哈哈哈~~~~~口水无法显示

再看一眼钢琴口水无法显示

大床头柜换成小床头柜了

小床头柜

床

周末跑了趟轻纺市场,原来上次去没走全阿,这次发现里面东西真多啊
把家里的花配上了,看一眼玄关

软装开始

给花来个特写

装饰插花

客厅全景

走道

餐客厅
