
来自认证设计师 @凹设计
这套288㎡的房子位于江苏南京,设计师拆除部分墙体,重新规划整个空间,将客餐厅变成了一个整体,原木和布艺组成的沙发搭配圆弧造型的护墙,一旁有绿植和艺术摆件做点缀,使简单的空间看起来更加雅致舒适,还增添了壁炉,让一旁的餐厅多了烟火气,温暖四溢,让人一回到家就有家的归属感。
一起来看看吧!
房屋信息
户型 3 室
使用面积 288 ㎡
装修花费 100.0 万元
房屋位置 江苏 南京
01
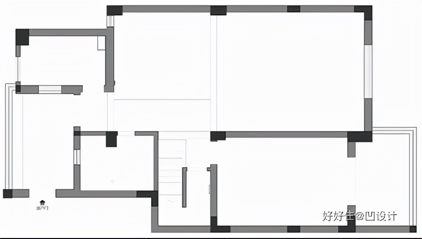
户型图

一楼问题如下:
1.原来的厨房空间小,动线对着过道,比较拥挤,满足不了业主的使用要求。
2.卫生间位置不佳,影响了中部空间的采光,且窗户对着入户花园比较尴尬。
3.楼梯空间缩在角落且空间局促,只是解决了最基本的上下楼问题,体验感较差,很小气。
4.进入一楼卧室需要穿过楼梯间,比较孤立,动线复杂不够方便。
5.看似南北通透的空间却没有很直接,采光和通风没有最好的释放。

一楼改造后调整如下:
1.首先是拆除墙体 ,将空间重新的梳理。
2.从门厅开始,我们将原本占比很大的入户花园①进行压缩,把足够的空间给到厨房③空间,让厨房有了更多的可能性。
3.把洗手台②放在玄关,满足后疫情时代进门先洗手的使用功能。
4.打通厨房和餐厅的非承重墙,将厨房敞开化③+④,于是客餐厅及厨房空间变成了一个整体,极大地凸显了房子的体量感。
5.卫生间⑧的位置进行了调整,把卫生间干湿分离处理,湿区空间安排在原楼梯的位置,原本是一个夹脚的空间,被完美地利用。
6.拆除原有的楼梯,楼梯位置的调整让垂直空间得到了最好的交融 。

二楼原始平面图,问题如下:
1.因为一楼餐厅的挑空,导致二楼公共空间只有一条通往露台和卫生间的通道,没有很好的停留空间,虽然是挑空空间却没有互动的价值。
2.卫生间较小,满足不了安装浴缸的需求,且动线不佳使用舒适度较差。
3.次卧出门就是楼梯入口,不仅拥挤且会有一定的安全隐患。

二楼改造后的平面图,调整如下:
1.随着楼梯位置的调整,二楼的空间关系也得到了最大的优化,释放出 ① 的区域可以放置钢琴。
2.两个卧室之间的墙体打通②+③,将两个空间的尺寸重新设计,原来属性明确的主次卧空间位置发生了镜像;
3.阳台空间的衔接也让主卧③空间被释放到最大。
4.卫生间⑤的规划比较独特,可以说是一卫两用,它既是主卧卫生间,同样也是外卫卫生间。卫生间的空气流通做到了很大的提升。
5.所有卧室的入户门完美地避开了楼梯的主动线,安全保障得到了极大的提升。
6.原本露台⑥墙体的打通,与公共空间完美连接,采光和通风最大化。
7.洗衣房⑦被安排在了北边的角落,不用考虑会影响到视觉体验,将美的空间全部展现出来。

改造之前无三楼。三楼改造后的平面图,调整如下:
1.原来是没有三楼的,现在的三楼是我们现浇隔出来的一层空间,顶面是多方向斜顶结构。
2.这是一个不规则的空间,最低处只有80cm,且没有窗户,我们把三楼的楼梯入口设计在最高点,这样进入三楼空间不会带来压抑感。
3.将三楼的楼板预留了一处挑空,让二楼和三楼的关系更加地紧密起来,挑空处的呈现不仅带来了空间感,还有趣味感,同时二楼阳光房的光线被引入三楼,也很好的解决了的采光问题。
02
玄关


1.门厅过道我们做了抬高处理,在门厅非抬高处换完鞋再进入到室内空间,不会将脚底的灰尘带到室内,将净与污完美地分开,增加了步入空间的仪式感。
2.此处的抬高同样也解决了因为卫生间位置的调整带来了下水改造的一系列问题。
3.我们特意将门厅地面的瓷砖裁成细条状,白色与深绿色的横向排列,顺光而行,不仅起到了动线引导的视觉感受,同样也增加了门厅空间的活跃感。
4.竖条状的白色窗帘与地面的条形瓷砖完美契合,也是我们刻意的设计,同样都是为了让视觉得到无限的延伸。



从门厅开始,我们将整个过道空间的墙面全部以护墙形式呈现,卫生间和卧室的门设计成同材质的隐形门,目的就是为了让业主回家的体验感和仪式感加深。洗手台外置,成就后疫情时代进门先洗手的生活习惯(可以看一楼户型图)。当卧室门打开的时候 ,卧室窗外的景色会很自然地过渡到门厅过道空间,格外生机;不仅强化了视觉,也延伸了空间体验。

03
客厅





阴暗交织的光影,细腻柔和的色调,透漏着自然气息的影木,每一寸细节的分寸,保证了空间的氛围,把整个空间的环境营造的“心平气和”。


圆弧造型的护墙圆润了角落的僵硬,使界限感模糊,在空间最深处以拥抱的姿势迎接主人归来。


简单质朴的物件拉近空间的距离,古人喜以丘园陶养素心,草木水石皆有性情。阅得一二,便可寻乐其中。
04
餐厅


走过颇有仪式感的玄关过道,我们设计了两条动线, 第一条是去往厨房空间,方便业主买菜回来直接去往厨房,无需经过客餐厅,减少了污渍带入,同样将厨余垃圾带出也是如此;第二条动线就是无需厨房生活之外可直接去往客餐厅,当进入家中换完鞋,整理完衣帽,洗完手,就直接去往客厅休息或上楼。这是两条非常清晰的路线,极大地提升了业主良好的生活标准。还有一个细节,与壁炉平行的是与入户地面材质统一的深色条砖,让台阶的界限感清晰,成为视觉上的安全提示。炽热的火焰同时又是雾化加湿器,给了餐厅一些烟火气,温暖四溢。一家人围炉夜话,灯火可亲。
05
厨房



原来的厨房空间小,动线对着过道,比较拥挤,满足不了业主的使用要求。针对厨房这一问题,我们有两处大的改造:一是将原本占比很大的入户花园进行压缩,把足够的空间给到厨房空间,让厨房有了更多的可能性。二是打通厨房和餐厅的非承重墙,将厨房敞开化,于是客餐厅及厨房空间变成了一个整体,极大地凸显了房子的体量感。最终厨房的打通,将北面的采光全部打开,7米长的操作台面加两组高柜满足业主对厨房的所有可能,足足比之前的厨房大了一倍,极大的凸显了房子的体量感,让业主在做饭同时也可以看看窗外的景色。


厨房的地面和墙面都采用了900*1800的鱼肚白大砖铺贴,大大减少了瓷砖缝隙,让空间更加的干净整洁。硬木的橱柜门板和墙面的鱼肚白瓷砖产生了层次明显的对比,让每一个材质在这个空间都是主角。厨房吧台的设计也为家庭生活氛围增添了一些乐趣,三面石材的铺贴,让吧台更加的端庄大气,把它设计在第一动线的入口处,也是为了让业主有家的归属感。
06
卧室



把男孩子的房间放在了一楼,卧室的门做了隐形门,关上的时候使入户门的空间比较整体,打开的时候可以直接看到窗外的景色了。一整扇落地窗顺应时间的更迭而变化,季节色彩为空间丰富了层次,不仅具有自然美,更凝聚着自然的力量。
07
楼梯



楼梯位置的调整让垂直空间得到了最好的交融。楼梯的位置从阴暗的角落改造到明亮的客厅,打破传统楼梯入口的处理方式,入口方向从一面设计为三面,大大提升了使用效率。将沙发边几融入楼梯的踏步结构,丰富了楼梯的艺术性。艺术漆与大理石台阶的碰撞,刚柔并济。结构柱多出墙面的空间,将我们整面墙拉平。巧妙地将楼梯的扶手内嵌。硬木材质延伸到扶手上,附上灯光,让硬朗的空间多了一条触摸的温度。



钢琴置于楼层间的转场空间,弹奏一曲,余音袅袅,绕梁三日。
08
主卧





作为家中的静谧区域,我们用了整面的护墙板去凸显质感,哑光皮质的床头,让空间层次分明,透明的台灯,削弱了线条带来的硬朗。
09
次卧


10
书房


斜顶下方的空间,连行李箱都有了自己的归宿。
11
卫生间





一楼卫生间。抬高的处理将壁炉的体积完美地藏于其中,同时解决卫生间下水改造系列问题。


在二楼卫生间,将三楼的楼板预留了一处挑空,让二楼和三楼的关系更加的紧密,挑空处的呈现不仅带来了空间感和趣味感,同时二楼阳光房的光线被引入三楼,也很好的解决了的采光问题。影木的材质一通到顶,材质的延伸让人对三楼产生更多的向往,增加三楼异形空间的使用频率。