有很多人认为:每个设计师都有自己的固定风格,并且会一直延续下去。其实也有一些设计师不是这么做的,是在不停的换想法。但我们不是为了“新”而做,我们是为了“适合”而做,就是这个项目它适合用什么样的风格,什么样的情感表达方式,我们才会选择。
拿到这个项目的时候,我们并没有从业主那里得到设计的要求或限制。通常这种情况有两种可能,一种是他真的很信任设计师,还有一种就是他想看看你到底能做成什么样子,然后再提意见。

【灯火阑珊秋意浓】的初步构想就是产生于那个阶段。秋天是丰收的季节,对于业主张先生夫妇来说亦是如此,三代同堂,生活美满,儿女双全,多年的相伴早就融为一体,不分彼此。
为他们全家打造这所爱巢时,不由自主就会想到若干年后他俩依偎在炉火旁,打着盹,儿孙绕梁膝下,其乐融融……这岂不就是爱尔兰诗人叶芝献给女友毛特·冈妮的爱情诗篇《When you are old》!带着这个设想,SKH工作室的小伙伴们开始了一系列的现实和理想的爱情之旅:

↑ 负一楼平面图

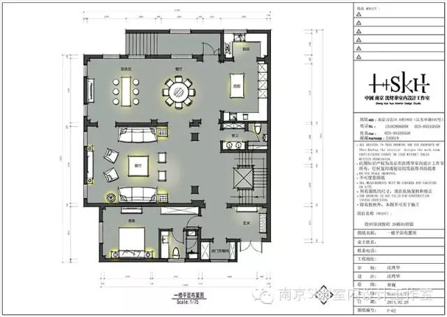
↑ 一楼平面图

↑ 二楼平面图

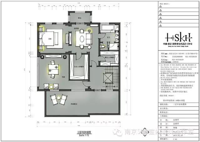
↑ 三楼平面图







↑ 一楼客厅





↑ 一楼餐厅

↑ 西厨

↑ 玄关

↑ 二楼端景

↑ 二楼休息区


↑ 老人房

↑ 儿童房



↑ 三楼主卧

↑ 三楼主卧起居室

↑ 三楼主卫


↑ 三楼书房
“我只是个设计师,并非艺术家,我只是一个渴望活得更好的人”
“生活里要有文化,有设计,有艺术…”
“设计用来干吗,就是用来服务生活。”
这些都是沈老师常对张先生夫妇挂在嘴边的话语。
他常常会觉得,在平凡中过活,是一种罪过,人不能突破自己,也是一种罪过。
所以在此套作品中他把这些融合进去,除了合理的生活需求还要加上现代人的精神追求,并需要解决这个家庭施工过程中所遇到的一系列意外等等…
这些细节沟通虽繁琐,但是SKH一定是一步步去做,去完善,去修整,只为我们的业主能够生活的更好……



↑ 负一楼会客厅
项目地址:徐州华润悦府
设计公司:南京SKH室内设计工作室
整体软装:南京SKH室内设计工作室
主笔设计:沈烤华
参与设计:王亚平 崔巍 潘虹 王志 薛成 黄泳炼 尤一枫
摄 影:ingalleryTM 工作室
建筑面积:780平方米 (七房四厅六卫)
合作方式:全程托管
如果您喜欢我们的作品
关注微信公众号:南京SKH室内设计工作室
项目具体细节咨询:观享际设计SKH工作室
地址:南京市秦淮区国家领军人才创业园39栋101
「 观享际SKH 简介 」

南京观享际 SKH室内设计 成立于2008年,是一家拥有资深背景、年轻、前卫的设计师团队,引进了国际流行设计的室内设计管理新理念,其专注于别墅、私人宅院、办公空间、展厅等。设计和施工及全程整体托管模式,拥有优质设计施工团队及配套高端材料资源,包括前期概念、施工图深化、效果图、现场施工负责、软装配饰等。从事装饰行业17年期间,累计全国近二十个城市500套装修设计案例,一直坚持个性化的装饰设计,追求时代化的创新意识,工作室正以适合自身、适应时代的前所未有的持续发展态势在装饰业界不断发展。在特色观念的鼓舞下,工作室力争在装饰设计作出自身个性,与其他企业形成差异化。独特的构思和强大的设计后盾创建了鲜明的品牌形象及良好口碑。

ANTECHAMBER|前厅▲

WAITING|等待区▲

INTERNATIONAL|VIP室▲


CONFERENCE|会议室▲


OFFICE|办公区▲

RELAX|健身区▲
南京观享际 SKH设计团队主要致力于,针对不同客户对空间审美诉求给予最准确的量身定制式设计服务,每完成一整套设计,凸显它价值的最大衡量标准就是它的唯一性和不可替代性;当客户觉得“非你不可”的时候,你的设计的可贵才由此体现,不论是“小小蜗居”还是“豪华别墅”。由客户需求出发进行设计细节到家中每一个成员的生活习惯及方式,才能造就独一无二的、获得客户肯定的设计,通过作品展现的是SKH设计团队对设计创意的执着追求,每个设计作品的命名都代表一段与人文有关的故事。