
田园雅墅施工队【2022】——宜宾江安独栋别墅
父母在,人生自来去;父母去,人生只剩归途。
以前总听说,世界上最美好的事是:
我已长大,你还未老,我有能力报答,你仍健康。
人生本就短,在对待父母的事情上,
从来都没有来日方长!

赖先生来自 宜宾市江安县 ,在 昆明做电梯生意 ,父亲在昆明给赖先生帮忙,母亲为了照顾家中,就在县城找了份工作。
随着父母年龄越来越大,归乡的心情越来越凸显,赖先生就想把老家的房子重建了,让父母在老家有个 好的生活条件 。

他看上了我们2021年在 南充仪陇 修建的网红别墅。因为老家没人在,赖先生就想找一家 专业的 , 能保证施工质量 的的团队。这栋别墅是 我们设计 的,并且 修建了好多栋 ,在川渝拥有非常多的建房案例,赖先生便直接让我们来承建。
图纸信息

建筑面积:233㎡ 施工面积:294㎡
占地尺寸:13.2m*9.3m 建筑结构:砖混结构

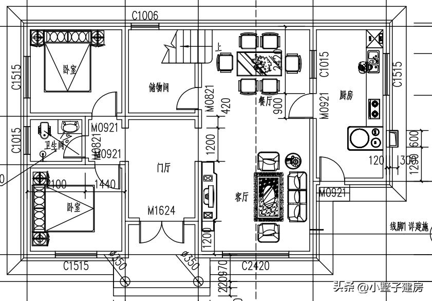
一层户型图

二层户型图
此次承包范围有:基础、主体、防水防潮、水电预埋、屋面瓦、外墙装修(含窗户)。
主体施工


定位放线、基础开挖(2022.10.6)

基础施工

一层施工

二层施工

主体封顶(2022.11.30)

线条安装


外装漆施工
我们于2022年10月6日进场施工,11月30日就完成了 基础和主体 施工, 仅用了56天 ,由于外装施工遇到春节,在2023年3月8号才完成了施工和交付。
建房过程中,赖先生一家只有在春节期间回来过,平时都是通过 摄像头 查看项目情况,或者在 微信群 由施工员汇报情况。
这栋别墅的内装,赖先生交给了妻子的朋友,项目验收就委托给了他们 。
完工效果
房屋建成后,我们于5月初进行了回访,
挖机正在平整庭院,室内装修还没完成,
我们只在外面拍摄了一些完工实景图。



这个项目从动工开始,除了项目上有一个做小工的亲戚外,相当于业主 全权交给了我们 ,对我们给予了 非常大的信任 。
在此,我们 对赖先生给予我们的信任与支持,表示 诚挚的感谢 !也预祝赖先生一家 早日乔迁新居 !
本期案例就分享到这,如果喜欢,就别忘了点个 “ 赞”!也可以关注我们的头条号,看更多的建房视频~~