我是云栖建筑小编,每日分享乡村建房精美案例,点击上方“关注”,每日获取最新精美案例呦~

项目名称丨北京顺义朱家一层半新中式别墅项目位置丨北京顺义建筑尺寸丨14.30*12.60m占地面积丨166.84㎡建筑面积丨278.07㎡建筑风格丨新中式结构形式丨砖混结构
——
农村建小别墅怎么建好呢?
有些业主觉得建一层住起来方便,但一层建起来不够大气,二层的房子建起来是大气,但造价比较高。 今天就为大家分享一款农村自建一层半新中式别墅,外观新颖,内饰舒适。
建筑效果图

南侧人视图
该项目位于北京顺义,主体为一层半新中式别墅。
场地的东西两侧都是一层传统民房, 南侧是进入场地的主要交通流线,为胡同,也不算宽裕,场地的北侧也是胡同。

东南侧人视图

西南侧人视图
建筑的外观应客户需求并未做复杂装饰构件,整体以素雅和整洁为主要出发点。
局部点缀了竖向木格栅,增加建筑温暖质感。东侧做飘窗设计,增加室内使用面积的同时丰富建筑形体。

建筑局部人视图

庭院局部人视图
庭院部分预留了一处半室外车库 ,让爱车也有了归所。车库和大院形成两条行动流线,彼此独立,方便日常使用。
整体以简洁、休闲为主,绿植的点缀为空间增加生机,也让每一次归家都有 了新鲜的空气可以呼吸。

西北侧人视图
建筑的北侧预留了寸院空间,其中一部分做成了阳光房,一部分用于摆放户外设备,同时可以实现大面积开窗,增加室内通透感。

东南侧鸟瞰图
整个二层空间为阁楼层设计,并未达到标准层高,借此将建筑整体的高度压低,以降低对周边邻居的挡光遮挡。
屋顶做对称式双坡设计,采用散排式排水,如果后期对邻里产生影响,可以选用成品天沟外挂。
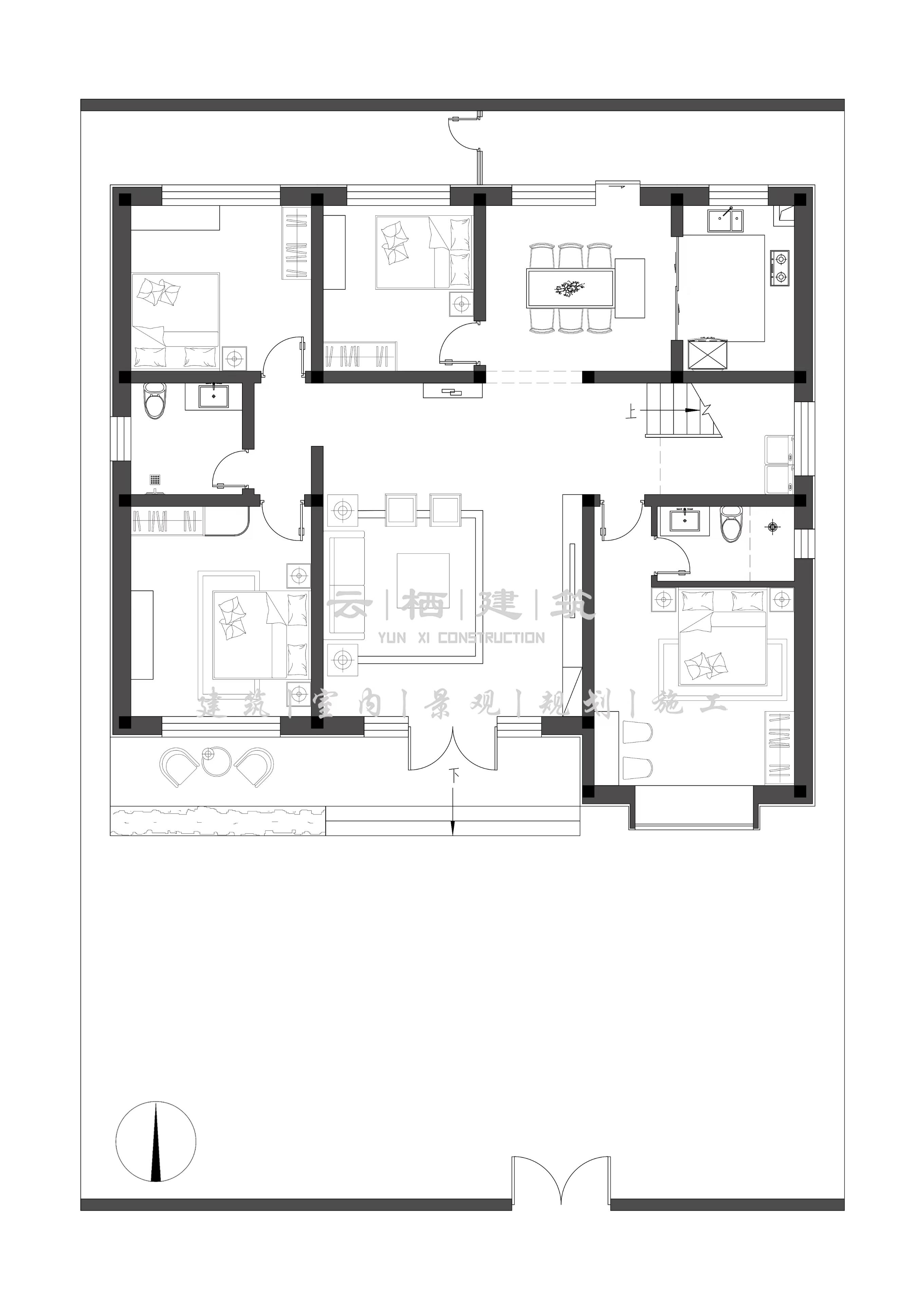
平面详图

一层平面图
一进门便是客厅空间,且客厅做挑空设计,视野开阔,更显大气。
厨房和餐厅并排放置在了东北侧,满足风水学要求,同时餐厅预留了去往北侧阳光房的交通空间,穿过阳光房也可到达北侧寸院空间,进行设备检修。
东南侧布置为主卧,目前老人在此居住,配备了干湿分离的私卫,方便起夜使用。

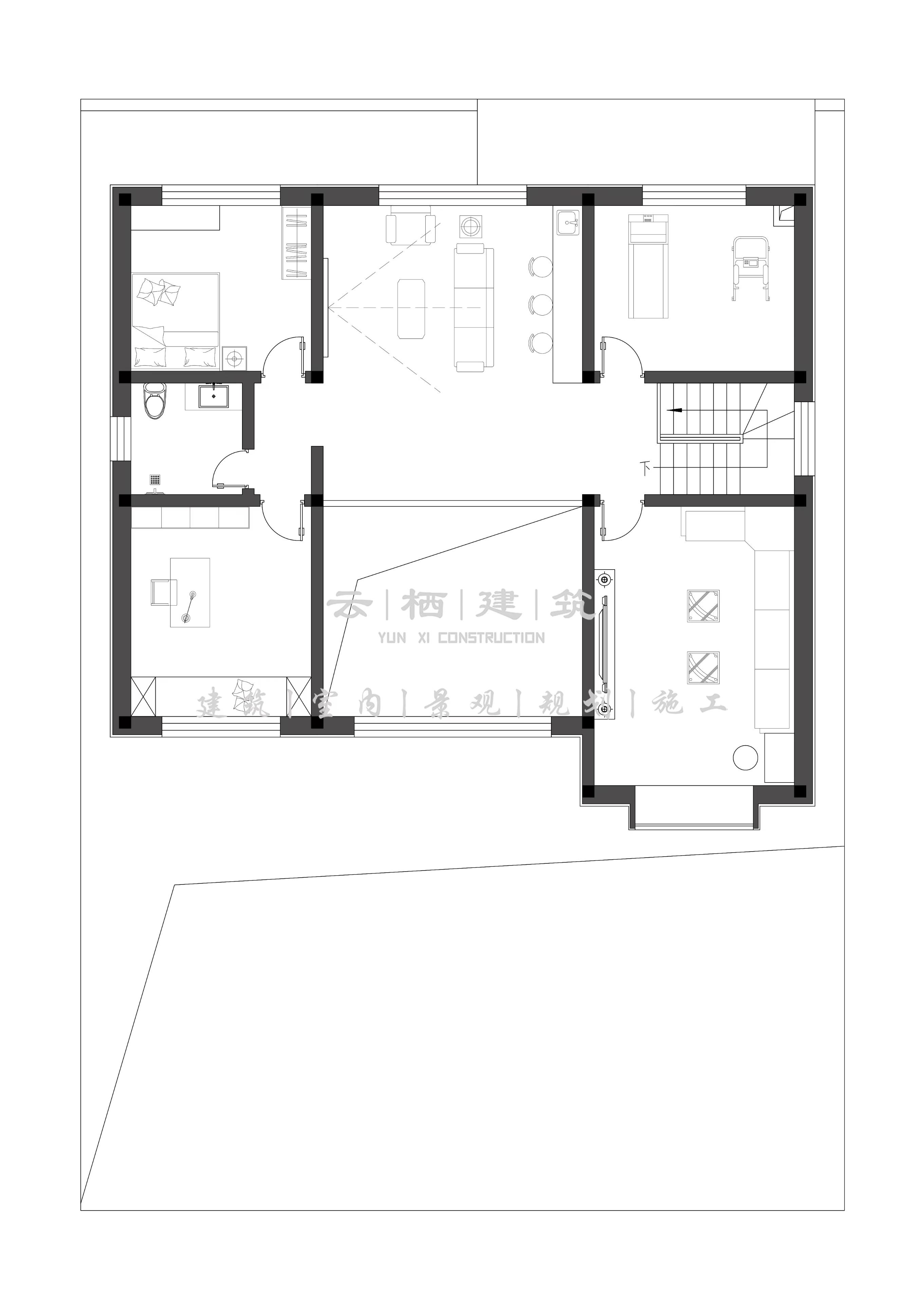
阁楼层平面图
整个阁楼层以活动空间为主,设置了影音室、健身房、书房和一个备用卧室, 满足休闲娱乐以及朋友接待的生活需求。

复得返自然的日夜,愿大家都能拥抱生活。
愿我们每个人心有所属,奋斗有标
盖房子是大事,一生只一次
我们建的不仅是房子,更是生活
云栖建筑
设计改变生活、让一切从美好出发
建筑丨室内丨景观丨规划