1982年,斯科特法尔曼使用了ASCII字元来组成的表情符号 :-) 和 :-( 打开了颜表情的历史。每一个时代都有属于自己的文字,揭示着那个时期人们的生活痕迹、文化信仰。


随着科技网络的高速发展,次元交错、矩阵纵横,一个个看似随机又抽象的标点符号,数字和字母轻易排列的组合,成为生长在这一代的一种社交语言,表达着他们复杂又微妙的情绪。

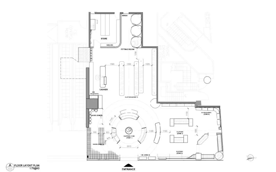
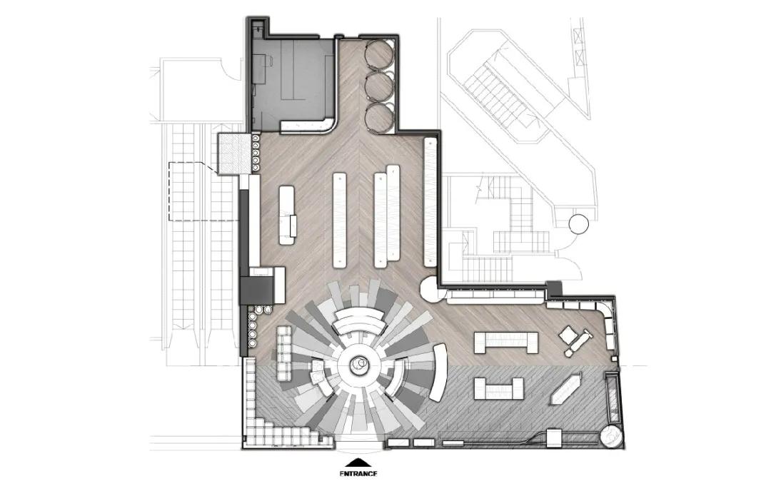
我们从买手店品牌LOGO ST 衍生出一系列的潮流颜表情、热话打开顾客对这间精品店的好奇心。◕‿◕店面沿街部位使用了超白玻璃落地窗,打开店铺空间的同时将白天的室外光引入,夜晚更好的呈现店铺内精致的商品。


店内空间我们采用不锈钢、照明灯管、玻璃砖搭配混凝土色调的拼贴地面赋予整间店一种冷色调的机械感。落地窗内的佈置由机场行李传送带衍生而来,增加了层次感的同时也对空间进行了区分。








进入店铺,置身圆形的玄关陈列区,能感觉到时间似乎成为了一种可掌控的维度。灯管勾勒出隐形的陈列柜框架,在框与框的之间打开逛店的多条动线。由圆形镜面不锈钢天花的延申,购物也从一种氛围衍生出仪式感。



在白色岩板柜体的收银台后方,设计师调皮得将白色电脑键盘布满整墙,替换出一连串黑色的按键来组成品牌LOGO ST ,也意示着顔文字的发源是来自于“QWERTY”键盘布局。在店铺的右边区域我们将顔文字放大安置在一整面LED发光墙体上,随着背景墙体灯光的变换,陈列在符号装置上的商品也呈现出不同色彩。





我们将不锈钢衣架以龙骨形式排列置挂与商品上方,呈现出一列流线而仿生的形态装置,呼应了店内的一大主题—— 衣服 。试衣间我们延续了店铺门口的安检传送带理念采用机场安检通道元素来打造,一个个银色的圆柱体胶囊,给疫情之下久未旅游的人们带来一种出游般的兴奋感。(ノ◕ヮ◕)ノ*:・゚✧








项目信息
项目名称:ST Boutique
设计单位:德坚设计
设计主创:Kinney Chan
参与设计:Max & Wesley
项目尺寸:170㎡
项目地址:香港
项目摄影:Dicky Liu
设计材料:透明亚克力,镜面不锈钢,大理石,LED灯管,玻璃砖等
关于设计师

陈德坚 Kinney Chan
KCA DESIGN 德坚设计创始人
创基金理事
陈德坚(Kinney Chan)毕业于英国 De Monfort University 室内设计系,并持有文学学士学位。曾在英国曼彻斯特著名设计公司 Company Designer Limited 与美国 Dale Keller 设计事务所任职,期间参与多项国际大型室内设计项目。陈德坚亦曾担任香港室内设计协会会长、香港设计中心董事和香港贸易发展局 HKTDC 顾问。任职期间致力于提高公众对室内设计文化的理解和认知,高度关注及积极推动香港创意文化产业发展。
1996年,陈德坚凭借自身深厚的设计积累于香港成立德坚设计,期间屡获国际大奖,获得业界高度认可,并于2019年在上海正式成立陈德坚室内设计(上海)有限公司。多年来坚持设计的创造力和原创性,深入挖掘文化和生活的内涵,以开放而感性手法赋予设计对于空间的个性和灵魂。陈德坚在设计、艺术、空间、情感(叙事)和音乐之间来关注创造性实验,深入研究设计与空间领域的情感含义,从概念构思到功能与美学的平衡,项目深化落实,为客户打造绝佳享受体验空间。
荣誉国际奖项:
2018 China Ten Outstanding Architectural Designer Award 福田杯中国国际空间设计大赛 中国十大杰出建筑装饰设计师
2018 Modern China Award 摩登态度人物影响奖
2017 Hong Kong Restaurant Interior Design Award 香港餐厅室内设计金奖
2017 Chinese Design of the Year 中国设计年度人物
2015 Hong Kong Restaurant Interior Design Award 香港餐厅室内设计金奖
2015 A’Design Award意大利 A’设计大奖
2014 iF Communication Design Award 德国iF传达设计大奖
2014 JCD Award Silver Award 日本JCD大赛银奖
2014 Interior Design China Designers of the Year 中国室内设计师年度封面人物
2014 Hall of Fame 名人堂
2014 Shenzhen Association of Interior Designers 深圳市室内设计协会十周年 “深港杰出成就设计师奖
2013 iF Communication Design Award 德国IF传达设计大奖
2013 Gold Key Award 美国金匙设计大奖
2013 Interior Design China 中国室内设计年度封面人物 CIID 中国建筑学会室内设计
2012 BOY Award Best of the Year 2012 Honoree 美国室内设计大奖
2012 10 Outstanding Designers Award 香港十大杰出设计师大奖
2009 iF Communication Design Award 德国iF传达设计大奖
2008 Modern Decoration International Media Prize 国际现代装饰传媒奖
2001 Asia Pacific Interior Design Awards in 2001 亚太区室内设计大赛大奖
关于设计公司

陈德坚于1996年在香港成立德坚设计,期间屡获国际大奖,获得业界的高度认可。继而在上海成立公司,为酒店、餐饮、机场贵宾室、售楼处、样板间等,提供国内外多元化的室内设计和项目顾问服务。
KCA成立以来,曾多次在国际上获得大奖,如iF Communication Design Award 德国 IF 传达设计大奖、安德马丁国际室内设计大奖、亚太区室内设计大赛大奖、 A’Design Award 意大利 A’设计大奖 、 JCD Award Silver Award 日本 JCD 大赛银奖等。
一直以来,“创造力和原创性”是引领我们不断锐意求新的动力来源,以勇于尝试和充满革新意念的国际视野,视室内设计为一种真正的艺术形式,探讨挖掘文化和生活的内涵,以脱颖的手法赋予空间个性和灵魂。
(来源:德坚设计,版权归原著所有,文章由中装协设计网编辑整理)

