
设计理念 Idea
这是一套北欧风装修案例,整个空间不乏温馨的同时,又带有一点小个性。希望这套装修案例能给准备装修的你带来一些灵感。
美家信息 Information
面积:96㎡
户型:三居
风格:北欧
设计:U家工场设计
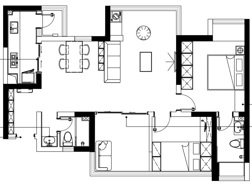
平面图:


▲ 玄关左侧设置至顶鞋柜满足收纳需求,右侧木质挂钩方便雨伞、包袋的日常放置。静谧的灰蓝色墙面搭配高饱和度色彩的挂画,对比强烈造型独特。

▲ 大横厅格局,客厅网红分子灯与餐厅金属吊灯相呼应,简约而舒适的灰色沙发点缀以粉色抱枕,简单不失活泼。几何图案的地毯,丰富了整个区域的视觉感受。

▲ 客厅电视墙以及餐厅都使用了灰蓝色乳胶漆,整体统一协调,具有空间连贯性。

▲ 电视背景墙没有做任何造型,简单的灰蓝色漆搭配上木饰面,显得很耐看。自由生长的清新绿植,使家中富有生活气息。

▲ 通顶的黑框玻璃推拉门设计,使得空间视野更加开阔通透。

▲ 餐厅,墙面颜色进行斜向的拼色处理,非常有造型感。长条形的餐桌搭配木质长板凳+网红温莎椅,营造温馨的就餐空间,同时容纳更多客人聚餐使用。

▲ 金属材质的吊灯,增添轻奢与时尚的气息,让空间看起来不会单调乏味。

▲ 厨房与餐厅之间采用黑框玻璃推拉门,使得空间更为通透美观。

▲ 白色墙面融入原木元素,浑然天成的色彩搭配,给人一种清新自然的舒适感。

▲ 主卧,深色后退色墙面增加空间进深,选用木色家具,以接近自然。床头的挂画和金属壁灯,提升空间品位与格调。

▲ 将一整面墙拆掉后,用黑框玻璃门加纱帘的组合,确保办公区域的隐私性,墙面颜色呼应餐厅区域,更有连贯性。

▲ 一张大人的办公书桌,一张小朋友的书桌,连在一起更能增加亲子间互动,培养良好的学习氛围。

▲ 另一侧精心布置了白板、小帐篷,让小朋友可以有尽情玩耍的空间。

▲ 卫生间采用干湿分离设计,简约而不简单。采用帘子取代传统柜体,使空间看起来柔和很多。

▲ 由于整体比较狭窄,采用深色与白色墙砖做对比的方式,让视觉上更为开阔。
图文转自网络,侵删!
想要拥有这样一套颜值一流,实用性一流的完美住宅吗?
选择全美家装饰!
79800,90㎡2室2厅1厨1卫装全家!
6大一线主材一站式配齐;
签单即送价值20000元
好莱客衣柜+西门子双开门冰箱+滚筒洗衣机;
进店咨询即可免费领取惊喜好礼(6款任选)
欢迎留言了解更多详情!