“装修还能随时‘换皮肤’,真是选择恐惧症的福音!”80后宝爸蔡先生是某热门手游的资深玩家,平时就喜欢囤换装装备。对于装修“新皮肤”。蔡先生对于给家庭“换皮肤”有自己的想法,就是看啥都觉得好,但怕选错了后悔
听朋友说现在装修也可以“试装”,抱着试试的心态,蔡先生来到了圣诞鸟整装。蔡先生说的“试装”就是圣诞鸟整装的BIM黑科技,用数字孪生技术,把住房在虚拟空间1:1还原。在实际装修之前,真实预览装修效果和工程层次。

(蔡先生家厨房配色方案1)

(蔡先生家厨房配色方案2)
初步沟通之后,我们发现蔡先生追求对房间风格的差异化。“老人房是老人房,儿童房是儿童房。”蔡先生说,“另外这个厨房面积有点小,怎么能视觉上看着大点儿?这个方案我还没想好。”

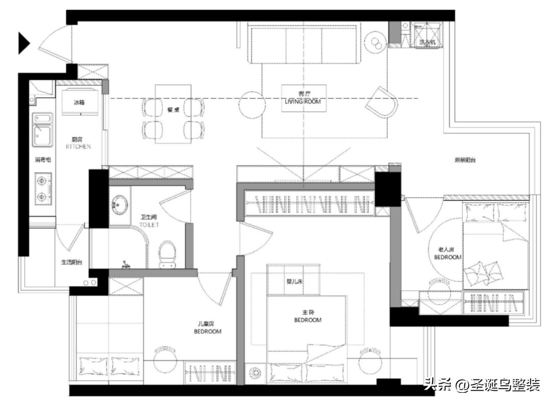
(蔡先生家原平面图)
蔡先生家原始户型是一个套内面积88平米的三居室,房型比较规整。公共区域之外,有主卧、次卧和书房。主卧和书房连接在一起,有两个入口,可以从主卧进入,也可以从景观阳台进入。
但随着第二个宝宝的出生,正在事业上升期的蔡家夫妻俩实在腾不出手,就想把老人接来帮着带孩子。他们想把书房改造成老人的卧房,不过尴尬的是老人房能直通主卧。虽然是自己的亲生父母,但蔡先生还是想给自己和父母彼此互相保留一点个人空间。

(设计后平面图)
根据蔡先生一家的需求,我们的设计师给出了上面的设计方案。
装修改造要点如下:
1、增加主卧和老人卧房之间墙面,把门洞“填”上。
2、尽量多设置储物空间,满足三代同堂家庭储物需要。
3、卧房风格符合使用者身份,儿童房温馨安全,老人房素雅,并做一定的适老化改造。
4、小孩衣物多,且需要经常清洗,要预留充足晾晒区。
确认过平面方案之后,蔡先生一家来到圣诞鸟整装线下店“试装”方案。
首先让蔡太太满意的是大量的储物空间,进门玄关一衣柜、餐厅墙面一体化边柜、电视墙边柜,收纳公共区域的各种零碎完全够用了。

为了显得客厅空间更大,我们做了一个极简电视墙。没有安置电视柜占据地面空间,只是设计了一个地台,丰富空间的层次感。另外把传统电视柜这种储物空间“竖起来”,悬空安置在电视墙左侧墙角处。这样既有了充足的收纳空间、不浪费墙角空间,打理起来也更方便。
而且这样的悬空电视柜在市面上买不到,只能定做。在圣诞鸟整装,从设计、定制再到安装,一站式服务就搞定了。

风格上,蔡先生现场调整了一下客厅大理石地面和墙面的色彩,选出了自己最喜欢的米灰白色系。一进门,水波纹玻璃墙砖垒砌的小隔断分割了客厅和餐厅的空间,但是不显得沉闷,给人一眼通透的感觉。
蔡先生家的主卧只有一个缺点,就是飘窗面积小,采光受限制。我们把飘窗位置延伸出来,做成定制梳妆台,并且利用与窗户顶端等高的梳妆镜,这样可以反射窗口的阳光到卧室其它空间。

卧室里设置铺满墙面的顶天立地大衣柜,收纳力极强。黑白配色,最右侧设置开放式小格柜子,方便随手取用常用物品。

柜子的内部,我们的设计师也充分考虑到蔡氏夫妇的使用习惯做出了内部隔断,合理划分空间。上衣区、下装区、大衣区、包包区都给到了合适的体积比例。

老人房采光条件极佳,大面积窗户几乎占满了一整面墙。不过使用面积不大,只有9平米。设计师把床靠窗排布,衣柜和书桌与床脚垂直摆放,形成L形家具布置,非常节省空间。

(老人房俯视图)
6岁的儿子小房间巧用飘窗台面,延伸出一张小床。孩子靠窗睡,晚上可以数星星,早上醒来迎接清晨第一缕阳光,不容易赖床。

小朋友看到自己未来的房间,高兴得在店里面蹦蹦跳跳,欢叫起来。

卫生间做了干湿分离改造。蔡先生家卫生间是非常讨喜的带窗明卫,通风性好,不易积潮气。洗澡间与窗子在一起,容易散潮气。窗户做百叶窗保护隐私。
对了,最后蔡先生选择了色调更明亮的厨房建材。不单视觉效果好,算下来也更划算。
蔡先生一家现场就得到了这套装修方案的实际价格,因为我们可以精准测量实际用料,并且有超过三千家的建材品牌合作方,不需要客户自己再去跑建材城选料砍价了。圣诞鸟整装就可以以最优惠的价格拿到质量最好的材料。
“本以为我会很纠结,定不下装修方案。”蔡先生说,“但在圣诞鸟可以随时给房子‘换皮肤’,换到我满意为止。 这是我这个选择恐惧症最痛快的一次选择 。”