要说25㎡的面积有多大,
其实不过是不少人家的客厅大小。
如果想要在这25㎡里
把一个人的生活安排的整整齐齐,
已然是勉勉强强。
可今天这位屋主,
却对房子提出了更多社交需求,
希望这里不仅要满足他的日常生活,
最好还能容下三五好友的偶尔小聚。
这是一套位于上海历史建筑保护区的
一处mini住宅,使用面积不过25㎡。
房子的优势是,带有一方户外庭院,
以及室内3.8m的层高空间。
如何在有限的空间内,
释放更多居住和社交的可能性,
成为设计师将要面临的挑战。

经过对生活需求和空间秩序的重新梳理,
设计师决定通过空间连通、功能叠合,
以及对竖向高度的利用,
让这个mini宅变得五脏俱全且精致有趣。

各空间使用场景示意图
可以乘凉小坐的户外庭院,
有着街边咖啡馆氛围的餐厨空间,
充满围合感的卡座式下沉客厅,
可休息可办公的独立卧房,
还有可以在家泡澡的大浴缸……
以上种种都在25㎡的mini宅内一一实现。
相信你已经迫不及待的想一探究竟,
那就速速开启我们今天的小家之旅吧!

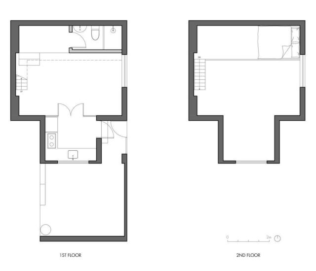
原始房型图 & 平面布置图
玄关 + 厨房 + 吧台
入户处一方独立的小空间,
没有设置传统的玄关,
而是叠加了玄关、厨房、吧台,
打造多功能复合空间。
由于屋主独住,且很少下厨,
这样的布置对于一人居一切都刚刚好。

橱柜中的酒杯、组成序列的吊灯、吧台和高凳,
营造出街边咖啡小馆般的温馨氛围。
这一场景提升了住户的入户体验,
也提供了独立就餐及临时办公区域。

橱柜、吧台及墙地顶均采用清一色的木质纹理,
让小空间整齐划一,视觉效果干净清爽。
台面嵌有电磁炉,不但节省空间,也更为美观。
橱柜底部内嵌灯带,为操作台面带来充足照明。

厨房的窗外是附带的庭院,安装白色百叶,
既可调节光线,也保证了私密性。

更妙的是,户外庭院也可作为吧台的室外延伸,
打开窗户,就可以选择坐到室外来小酌一杯。

在大上海繁华的闹市区,
有了这一方小庭院,
瞬间有一种大隐于市的感觉。

站在客厅看向厨房,
木质门框的框景,
让餐厅成为客厅的对景,
营造出一幅温馨别致的小家画面。

客 厅
下沉式半围合客厅设计,
打造自由开放的多人社交型客厅。

改造前,原始地面被整体垫高45公分,
只有卫生间区在原始正负零标高。
改造时,保留了入户厨房区的垫层,
将起居区、卫生间区域的地面降到原始标高。
于是起居区域形成一个具有围合感的半下沉空间。

从厨房步入客厅,
需要下三级台阶,
通过高差划分不同空间,
营造出丰富的空间感受。

台阶+坐垫式的卡座式沙发设计,
打造出充满自由度和围合感的起居室,
三五好友来个桌游都绰绰有余。

原本客厅将近一半的空间被交通流线占据,
在这种小空间里不是很合理,
所以最后将客厅与人行动线结合,
将楼梯隐藏在电视墙后方,
共同存在又不会互相影响,
各功能叠合,实现最大的空间使用率。
屋主平时只是短居,对收纳要求不高,
结合电视墙做开放式收纳格,
并设有衣物悬挂收纳区。

从这个视角可以完整的看出
这个25㎡的mini宅里所有的空间关系,
入户的餐厨空间,
同客厅共处一室的一层卫生间,
以及二层的休眠区。
它们彼此之间相互可见,
最大化的保证小空间的通透性,
彻底打破了我们对25㎡的传统认知。

卫生间
原本处在房间一角的卫生间闭塞阴暗,
不仅毫无舒适度可言,
动线也极为不合理。
通过对调原始楼梯和卫生间的位置后,
得到了更为宽敞、便利、舒适的三分离卫浴空间。

卫浴区位于二层休眠区下方,
仅用玻璃隔断进行分割空间,
平时台盆区、沐浴区完全面向起居室敞开。
整涂灰色防水漆,营造静谧轻松之感。
顶部内嵌灯带,让空间更显轻盈通透。

用玻璃隔断隔出沐浴区,
顶面安装了浴帘,必要时可以放下。
浴缸旁做一个10公分宽的凸出半墙,
刚好放置洗浴用品。
在25㎡的小房子里还能配有浴缸,
简直太奢侈。

落地式台盆的简约造型,
强化了自身的雕塑感,
内嵌式水龙头避免了卫生死角,
更便于清洁打理。
镜面两侧不对称式的壁灯选择,
在简单中富有变化。

隐藏在角落的独立马桶间,
除了灯光以外别无多余装饰,
看起来让人心无杂念。

休眠区
夹层上方为卧室区域,
由于层高限制,
1.8m宽的床垫直接落地使用。
在床两侧设置的固定家具丰富了夹层的使用功能,
也限定出与下方空间互不打扰的区域。

二层休眠区开放且独立,
整个空间被木饰面板包裹,
玻璃栏杆兼顾了安全防护和通透性,
层高虽矮,却不显闭塞压抑。

调整后的布局,
床头正对客厅的大开窗,
让二层也可获得更好的采光。
每日都可以被清晨的阳光唤醒,
开始新的一天。

顶面一盏球形吊灯,宛若一轮明月,
在静谧的夜晚给你最温暖的陪伴。

床头右侧布置一L型矮桌,
既是床头桌,也可用来办公。
如有朋友来做客,
必要时在二层办公也可减少干扰。

改造前的25㎡是老旧逼仄,
只能满足基本的居住需求;
改造后的25㎡是开敞通透,舒适便捷,
还可以享受在家泡澡的惬意和庭院小酌的乐趣,
甚至三五好友来相聚都不在话下。
好的设计总是能不断扩展我们的认知边界,
让生活在有限的空间里拥有无限可能。
房屋信息
城 市:上海
使用面积:25㎡
项目花费:10万
设 计:栖斯设计
设 计 费:400~800元/㎡