记得点击关注“装个好房子”哦~
每天为你带来装修干货、改造新灵感与美好生活故事
探寻美好居住方式,我们值得更好的生活!
----------------------------------------------
婴幼儿时期的奶粉、童年时期的玩具衣服、长大后的学校......天下父母都恨不得给自己孩子,什么都是最好的,今日屋主夫妻俩也不例外。

屋主女儿@小胖桃
为了给孩子更好的教育,学区房一直被家长们摆在重中之重的位置,但孩子需要的不仅仅是一个学区房和进入一所名校那么简单。
在孩子的成长阶段,一个安静舒适的家居环境,一书、一茶、一秋千……对他们的个性、心理、审美方面的成长,都有着巨大的影响,而这种影响通常是潜移默化的,不可忽视。

夫妻俩的工作均是“996”模式,但俩人深知家居环境对孩子的重要性,在忙碌的工作之余奔波多日后,最终选择了这间位于上海最具浪漫文艺气息的马路之一的32㎡小屋,而且还附带一个20㎡小院,虽破旧、狭小、采光差,但两人更加看重的是它远离喧嚣和庸扰的环境,它为此处赋予了更多一层“学区房”之外的意义。

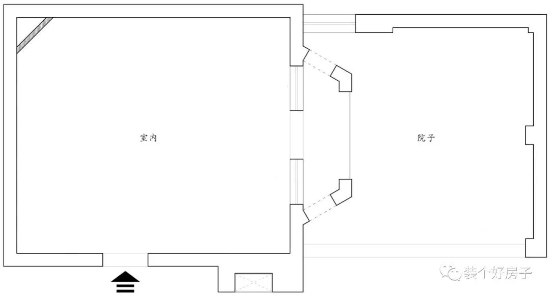
房屋原貌

房屋户型:一室
使用面积:32㎡(室内)+20㎡(庭院)
装修花费:28万
房屋坐标:上海徐汇
房屋改造前其实是一栋老式洋房别墅楼的一楼客厅,层高约3.3m,没有厨卫设施。

房屋虽小,但屋主对它有着诸多期待:
1、客厅、厨房、卧室、卫生间,一个空间都不能少。
2、有足够的收纳空间和藏书的地方。
3、希望餐厅能容下4~6个人。
4、想要花园和落地大窗户。

改造重点:
1、在前期现场勘查时,设计师团队发现地下有一个将近60公分的通风架空层。拆除并对地面进行基础防水工程后,层高达到了3.9米,为空间改造创造了良好的条件。
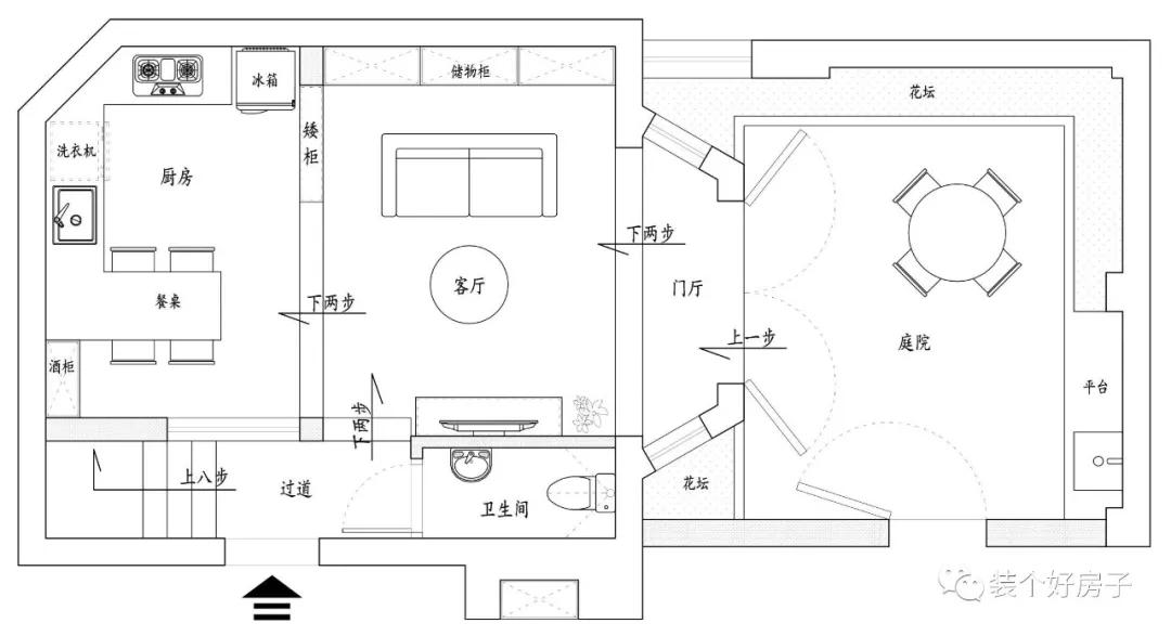
2、利用层高优势,在离地2.1米的高度搭建了钢结构的二楼楼板,分隔为上卧室(榻榻米间)下厨餐厅的格局。客厅上方的挑空设计给二楼卧室带来充足的采光以及通风。
3、在入户门右侧增设卫生间,面积虽小,但可同时满足淋浴、坐便器、台盆需求。
4、利用客厅开间较大优势,在沙发后方定制了一整面到顶柜体,上方书架,下面矮柜,同时满足储物和藏书需求。
5、打通原梯形阳台,并入室内,增加室内自然采光的同时,也增加了空间的舒适感和层次感。

一层平面布局图

二层平面布局图
因为女儿小名小胖桃,这里也成为了全家心目中的世外“小桃园”。屋主夫妇希望将“小桃园”打造成一处可以让生活慢下来的避世空间,闲暇之余一家人去放松放空,可以让两人短暂逃离“996”的生活,父母来了也能住。


楼道
怀旧片压轴~走进老洋房的楼道仿佛进入了另一个时空……

鱼骨拼木地板搭配黑白沙发舒适又复古,奠定了整个风格基调。因为叫“小桃园”,是根据女儿名字命名的,所以在空间各处也穿插了一些和小胖桃一样圆乎乎的童趣细节,与周围的氛围也完美契合。

客厅吊灯的灯泡也是一只萌趣十足的胖球,是设计师旅行时在一家欧洲老货仓库一见钟情的中古款。

整个空间最大的亮点就是这面近3.6m的定制柜体,派头十足,满足了客厅储物及藏书需求。
上中下3种柜体形式,藏露结合,避免了大面积柜体太过呆板和给人带来的压抑感。
在书架上安装了滑轨梯,一来更稳当更安全,二来也营造出一种仪式感。


旁边小矮柜是小胖桃的专属柜体,可以让她轻松拿到自己喜欢的书和玩具,好的阅读习惯要从孩子小的时候开始培养。
除了储藏功能,小矮柜还有一个重要的功能:与厨房地柜形成高度差,用来遮挡厨房最容易杂乱的切配区。


旁边摆放的是女儿最喜欢的书籍和玩具,舒适的地毯可以席地而坐,给孩子更多的活动空间,客厅已经成了小胖桃最喜欢的地方。

一把竹制摇马搭配藤面电视柜,有种穿越回旧时光的美。


房屋改造前,通往户外花园的开门特别小,导致室内极其昏暗。

木质台阶为梯形阳台区域

将梯形阳台区域并入室内,两侧落地窗和大落地玻璃对开门,保证了室内足够的自然采光。

拍摄当天下着雨,即便不开灯,也丝毫不觉昏暗。

完美的休憩角落,在室内依旧能欣赏到院子里的娇媚和绿意。

所谓岁月静好……

玻璃面藤编圆几是老物件了,可能和这栋楼差不多同龄。

从餐厅看向阳台,10㎡出头的客厅因为挑空层高丝毫不显逼仄。


铁艺小鹿造型花架也是一枚老物件,一捧钻石翡翠长势喜人。窗外的三角小花圃是小胖桃的包干区,种着各种香草,屋主做西餐或调mojito的时候直接就地取材。


拆除底下通风架空层后,利用层高优势,在离地2.1米的高度搭建了钢结构的二楼楼板,从这个角度可以看到分隔出的卧室(上)厨餐厅(下)的格局。
由于另有公共厨房可以满足中餐爆炒需求,室内厨房只进行一些烘焙和简单烹饪,因此并没有安装油烟机。所以厨餐厅面积虽小,却有着很多大厨房都羡慕的储藏空间。

由阳台看向厨餐厅
区别于客厅的鱼骨拼木地板,厨餐厅采用了更容易清洁打扫的彩色仿水磨石地砖,同时在形式上与客厅沙发相呼应,保证了整个空间的整体性。

客厅看向餐桌,小小的桌子足够坐下4大1小。

仔细数数画面中出现了几处圆球?友情提示:别漏了桌脚~

餐厅家具也花了屋主和设计师不少心血。
餐桌为老榆木实木定制;Art deco风格的拱形镂空靠背皮坐面餐椅,也是设计师在老货仓库实地验货后入的;特别有CP感的伸缩吊灯海淘自德国中古灯具店;藤面餐椅来自某宝韩国代购;为了与之搭配的长凳也是费了一些周折。

餐桌造型细节:


餐桌灯特写,是不是和餐椅配一脸?

餐厅日常。暖调吊灯,以营造餐区的温馨氛围感。

不放过每1寸空间,利用楼梯下面空间也做了储物柜,提升空间利用率的同时,也让整个空间更加和谐。

紧邻餐桌的地柜做了开架式处理,一方面可以省去开关柜门的空间,另一方面也可以兼顾餐边柜功能,方便拿取物品。

一捧小雏菊带来浓浓秋意,角落小酒柜是屋主夫妇唯一的小心愿~

为了呼应无处不在的球球,所有下柜安装了原木色的实木圆球拉手。

客厅与厨餐厅之间的矮柜背后空间也合理利用了起来,用来悬挂较轻的厨房用品等。
由于卫生间空间较小,设计师提前测量好洗烘一体机尺寸,并内嵌在了这里。

屋主夫妻俩都是非常追求生活品质和细节,厨房里的所有嵌入式家电都是他们寻寻觅觅了好久才找到的,力求每一件家电都与整体环境很搭,保证空间的整体性和和谐性。


敲可爱的笑脸小台灯可是80,90年代的宜家出品哦~意大利淘来的老货,就这么静静地微笑就足够了。

转个角度,实木定制的玻璃窗和卫生间门正好同框。玻璃窗由设计师提供图样,与卫生间门、楼梯、二楼栏杆扶手一起找的工厂定制。窗户不能开合,主要功能是营造空间通透感和装饰效果。上半部分为透明玻璃,下半部分为格纹轧花玻璃,框架为非洲柚木。


卫生间的面积只有1.8㎡,但该有的功能都有了:洗漱、淋浴、如厕。考虑到卫生间空间小,而且是暗卫,湿气重,所以没有做台盆柜。

地面黑白马赛克地砖自带复古感,墙面铺色小方白砖,并增设了黑色双腰线,避免空间太过单调,搭配全套复古造型洁具,可见屋主对极致的追求辐射到了家中每一个角落。

实木卫生间门内嵌的轧花玻璃是由设计师提供图样,由工厂定制的。柚木的色泽、质感、木纹肌理完美诠释了造型上的复古感,做旧款黄铜门把手锦上添花。

入墙式水龙头,节省空间又方便后期清洁。

由于空间较小,卫生间几乎所有的收纳重任都在这两个壁龛上。
壁龛相较于其他的收纳形式,节省空间又可以达到增加储物空间的效果,但房君在这里提醒下各位小可爱们,想掏壁龛出来之前一定要先检查下自己的墙是不是承重墙。

壁龛背景墙砖呼应地砖,小面积铺贴所以选了一款更密的。


楼梯采用了橡木,纹理比较粗犷,倒和用来遮挡难看灰绿色强电箱的民族风挂毯在风格上相呼应。


三种木料同框,相得益彰。

楼梯转角墙面挂上了几幅小画,不仅装饰了单调的白墙,也为空间增加了一丝趣味性。
入户门左手的挂壁三层抽屉盒是海淘来的老货,本身是存放调料的,现在用来当钥匙盒用。美丽的琥珀色壁灯充满复古气息,方格子灯罩正好呼应窗玻璃。
楼梯的其中两阶做了抽屉,增加储物。


二楼是相对私密的卧室空间,这里大概15㎡左右,有接近1.8米的层高,基本都能保证直立行走。收起床品铺上一块大号羊毛地毯,二楼便成了宝宝的玩乐区。
沿墙安装的L型收纳矮柜,保证了日常所需的收纳空间。门板和拉手选用厨房同款,台面选用木纹款式,与扶手栏杆的上木下白设定配套了起来。
窗帘做了双面丝绒,遮光效果极好,无论白天还是晚上,只需随手一拉,就可以轻松营造静谧舒适的睡眠环境。

楼梯旁边是一个顶天立地的衣柜,虽然高度一般,但是进深较大,足足有65cm,收纳能力也是相当惊人,塞下榻榻米床垫、枕被后,还能存放不少衣物。

扶手栏杆也使用了橡木,为了不让粗犷的纹理破坏柱体造型的秀气感,刷了白色封闭漆。


整个房子女主最喜欢的便是这里了,在看房时,对这个近20㎡的庭院空间就一见倾心。
先感受一下改造前的脏乱差……

推开两扇对开玻璃门,便可以直接进入户外庭院了,改造后的院子里的水槽和收纳园艺和清洁用品的柜体为水泥砌成,柜门用防腐木定制。

小院子的地面除了葡萄架区域,全部铺设了防腐木,包括加高栅栏和院门也全部用防腐木定制。
院子所有墙面都刷了白色户外漆,批腻子时设计师特意关照师傅不要砂平墙面,保留自然斑驳的肌理,这样才符合老上海的感觉。

庭院也当然也少不了“圆”呀~

武装到院门的“圆”
决定加设葡萄架的初衷就是想为小胖桃装个秋千,不用去游乐园,在家也可以随时娱乐。

令人心旷神怡的小院小景。


小小园丁的勤快背影~这里种植都是一些不太娇弱的植物,有助于激励园艺新手的自信心和积极性哈哈。
L型夹角便由花坛改为防腐木长凳,这样在小院里招待客人的话,坐十几个人也毫无压力。
葡萄架下地面铺上暖黄色的小石子,不仅可以让区域划分感更明确,也减少视觉上的沉闷。

天气好时,屋主也会时常在葡萄架下举行朋友聚会或家宴。
亦或一家三口在园子里喝喝下午茶,放一首轻柔悠闲的曲子,捧上一本自己喜欢的书,在这快节奏的上海“偷偷”感受这安静悠闲又有韵味老上海式生活。
图片及素材来源:NONOSPACE 设计工作室
------ [END] ------
今日问答
你喜欢带小花园的小户型吗?欢迎底部留言区交流~
【延伸阅读】
北京80后妈妈神级收纳80㎡的家,完胜网红日本主妇收纳术
单身姑娘的90㎡极极极极极简豪宅,这是最好的生活状态
北京86㎡鸡肋户型,8处神奇改造,面积大一倍,家中从此亮堂堂
装个好房子原创
我们致力于分享好案例、好攻略、好经验,每日更新,值得您长期关注~
如果觉得好,欢迎转发分享,并在文末留下您想说的话
如需转载,请联系好房君的女秘书(W-X:haofangjun666)授权。