我是云栖建筑小编,每日分享乡村建房精美案例,点击上方“关注”,每日获取最新精美案例呦~

项目名称丨海南三亚周家现代别墅
项目位置丨海南三亚
项目尺寸丨11.60*12.50m
占地面积丨131.05㎡
建筑面积丨223.63㎡
建筑风格丨现代
结构形式丨砖混结构
——
花几十万回村建一栋现代别墅值吗?
建筑效果图

南侧人视图
该项目位于海南三亚,建筑主体为二层现代别墅。
场地的南侧目前由绿植覆盖, 东侧和西侧均是村里的主路,庭院的主入口设置在了场地东侧。北侧是自家的后花园,用于蔬菜的种植。

东南侧人视图

东侧人视图
建筑以形体展开,虽然体量较小,但丝毫不影响形体的延展和立面构成。 整体以现代简约风格为基调,以干净利落的线条勾勒出主体轮廓,同时采用较多体块化的设计增强空间划分,使整体效果更显规整。
入口处做了门厅处理,二层则设计成户外阳台空间,使得无论是一层还是二层, 都额外增加了一部分活动区域。

东北侧人视图

北侧效果图
通过不同比例的门窗开孔设计,用最简洁的设计和最节省造价的方式,赋予建筑一种现代的设计感。

南侧夜景人视图

东南侧夜景人视图
建筑整体在傍晚的映衬下,呈现其浪漫的氛围,晚风晚霞,读到了日常生活的味道。这样虚度光阴的生活也是一种美好。
鸟瞰图

西南侧鸟瞰图

南侧鸟瞰图
建筑局部升高女儿墙的高度,将建筑主体纵向拉出层级,使得立面构成更具张力。简洁的线条勾勒出硬朗的现代别墅轮廓,措配材质的区分,将形体更加趋于丰富。
南侧庭院主要用于生活起居,紧邻客厅位置设计了室外休闲平台与之相连。点缀几株植物,将庭院空间绿化,展现了生机盎然的生活场景。


夜景鸟瞰图
平面详图

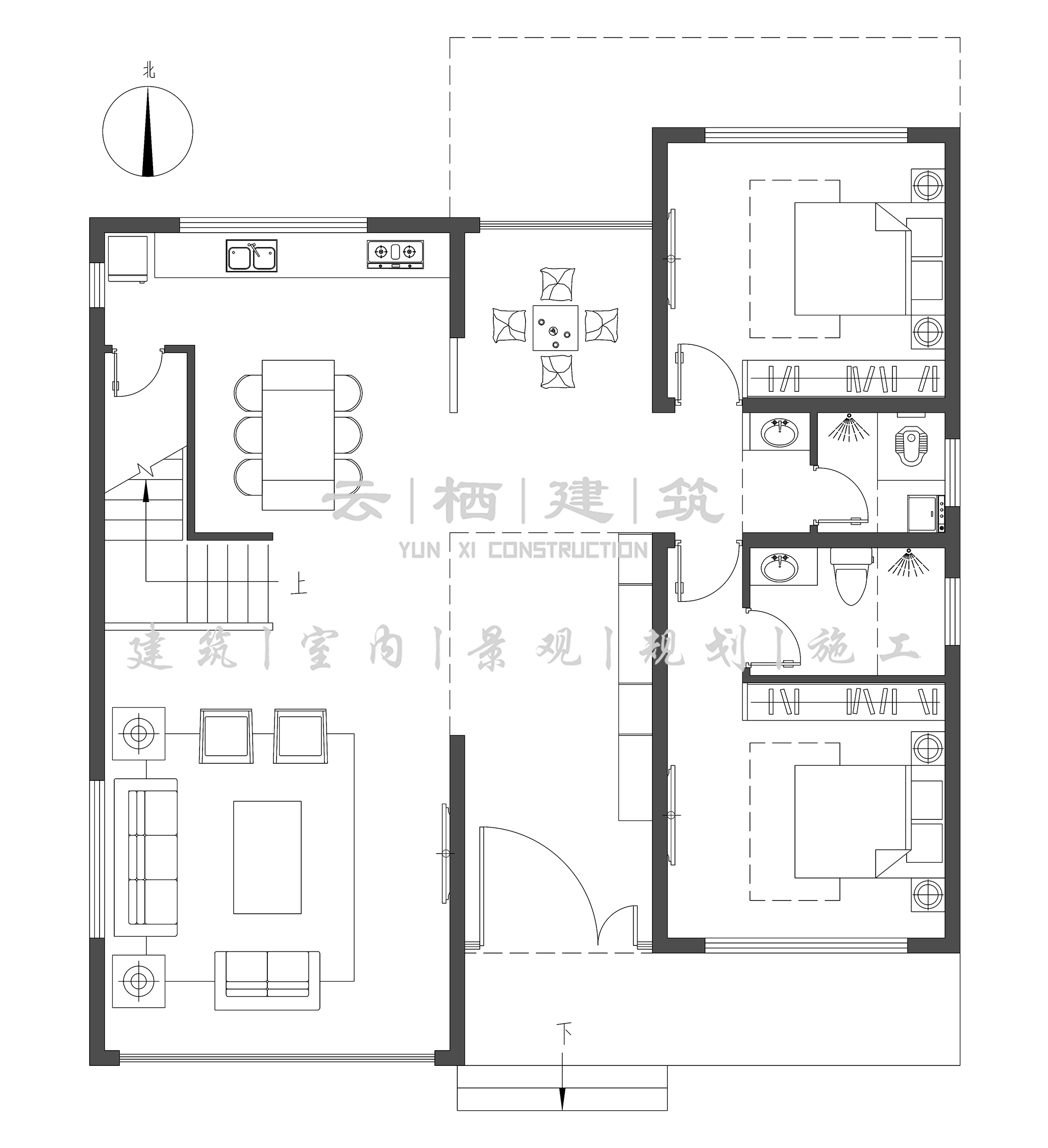
一层平面图
公共空间并未采用墙体分隔,采用通层设计,将视觉空间延展。客厅、餐厅、厨房南北一体化设计,视觉开阔。
厨房借用楼梯下的空间,将空间利用最大化,折跑楼梯也成为了家里一道亮丽的风景线。
东侧临近主路,院内也依据现状做了两个室内车库用于停车。

二层平面图
总共设计了4间卧室,根据空间属性的不同,分别配备了不同的家具组合,以实现各自的空间效果和层次。

回村建一栋兼具颜值与实力的别墅
轻松拥有舒适敞亮又愉快的田园生活
愿我们每个人心有所属,奋斗有标
盖房子是大事,一生只一次
我们建的不仅是房子,更是生活
云栖建筑
设计改变生活、让一切从美好出发
建筑丨室内丨景观丨规划