案例风格:新古典
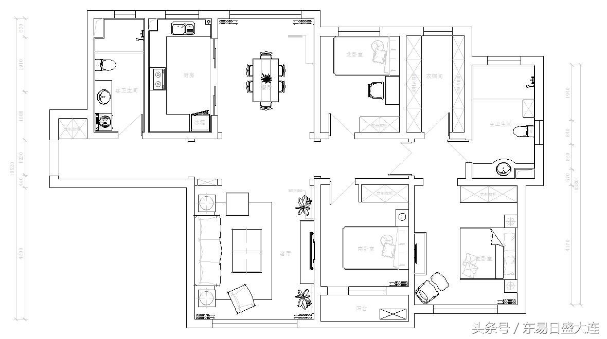
案例户型:普通住宅
案例面积:165㎡
楼盘名称:东港第
所在城市:大连
预约设计:400-104-3366
服务店面:大世界A6设计中心
设计师:李魏
设计理念: 整个室内空间,以色彩和陈设来实现不同区域的特定功能。首先运用大量的中间色系让空间融合起来,局部采用亮色彩来点缀,令整体沉稳优雅的氛围呈现变化。运用地毯、挂画来烘托一个区域的特定氛围。每个区域都有吸引人之处,充分展现了浓郁的家庭气氛。客厅,浅黄色,暖暖的色调,电视柜上的摆件等都显示出主人对精致生活的追求。







案例风格:新古典
案例户型:普通住宅
案例面积:165㎡
楼盘名称:东港第
所在城市:大连
预约设计:400-104-3366
服务店面:大世界A6设计中心
设计师:李魏
设计理念: 整个室内空间,以色彩和陈设来实现不同区域的特定功能。首先运用大量的中间色系让空间融合起来,局部采用亮色彩来点缀,令整体沉稳优雅的氛围呈现变化。运用地毯、挂画来烘托一个区域的特定氛围。每个区域都有吸引人之处,充分展现了浓郁的家庭气氛。客厅,浅黄色,暖暖的色调,电视柜上的摆件等都显示出主人对精致生活的追求。






