现今,信号再强劲的单体无线路由,在面对100平米以上的家庭环境或别墅时,都会存在不少Wi-Fi死角。
因此为了做到全屋Wi-Fi覆盖,AC+AP这种企业级组网方式也慢慢地进入到家用环境中,并被很多家庭认可和接受,五一期间,就有朋友找到小编,让我进行AP点位规划。

▲朋友咨询AP点规划问题
而要通过AC+AP组网实现全屋Wi-Fi覆盖,在装修的水电改造阶段,就得提前规划AP点位,并将网线部署在墙体中。
因此,小编就找了5个户型图进行AP点位规划,为即将装修的家庭和家装设计师提供一些灵感,帮助大家快速完成AP点位规划,为全屋Wi-Fi覆盖打下基础。
88平米的户型

▲图片来自网络
红点为预埋网线的点位,其中客餐厅的网线预埋在顶部,其他网线预埋在墙体,离地高低50CM左右,后期客餐厅顶部安装一台吸顶AP,主卧和次卧各安装一台面板AP即可。
95平米的户型

▲图片来自网络
红点为预埋网线的点位,其中客餐厅的网线预埋在顶部,其他网线预埋在墙体,离地高低50CM左右,后期客餐厅顶部安装一台吸顶AP,主卧和两个次卧各安装一台面板AP即可。
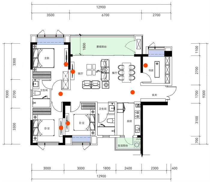
107平米的户型

▲图片来自网络
红点为预埋网线的点位,其中客餐厅和主卧(门内)的网线预埋在顶部,其他网线预埋在墙体,离地高低50CM左右,后期客餐厅和主卧(门内)各安装一台吸顶AP,其他区域则视情况增加面板AP进行覆盖补充。
120平米的户型

▲图片来自网络
红点为预埋网线的点位,其中客餐厅和主卧(门内)的网线预埋在顶部,其他网线预埋在墙体,离地高低50CM左右,后期在客餐厅和主卧(门内)各安装一台吸顶AP,其他区域则视情况增加面板AP进行覆盖补充。
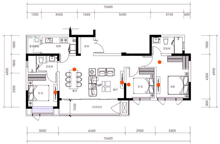
128平米的户型

▲图片来自网络
红点为预埋网线的点位,其中客餐厅和主次卧之间(门外)的网线预埋在顶部,其他网线预埋在墙体,离地高低50CM左右,后期客餐厅和主次卧之间(门外)各安装一台吸顶AP,其他区域则视情况增加面板AP进行覆盖补充。
近期正在装修或即将装修的朋友,如果需要小编进行协助完成网络点位的规划,可以私信或留言与小编联系哦。