CAD作为一款专业的制图软件,想要掌握它,技巧是不能少的,今天小编给大家整理了CAD中21个绘图命令以及7个技巧!附带20张石材工厂外立面+内部展厅装修CAD施工图。千万别错过哦!
21个绘图命令
A:绘圆弧
B:定义块
C:画圆
D:尺寸资源管理器
E:删除
F:倒圆角
G:对象组合
H:填充
I:插入
J:对接
S:拉伸
T:多行文本输入
W:定义块并保存到硬盘中
L:直线
M:移动
X:炸开
V:设置当前坐标
U:恢复上一次操做
O:偏移
P:移动
Z:缩放
12个CAD技巧
1、【CAD命令三键还原】
如果CAD里的系统变量被人无意更改,或一些参数被人有意调整了怎么办?这时不需重装,也不需要一个一个的改。
操作方式:OP选项-----配置-----重置但恢复后,有些选项还需要一些调整,例如十字光标的大小等。
2、【填充无效时解决办法】
有的时候填充时会填充不出来,除了系统变量需要考虑外,还需要去OP选项里检查一下。
操作方式:OP----显示---应用实体填充(打上勾)
3、【如何把Excel插入到CAD中】
准备工具:迅捷CAD编辑器专业版、Excel表格操作方式:
a:双击打开这个CAD编辑器,在顶部的工具栏中选择【插入】-【对象】;

b:在小窗口中选择【由文件创建】-【浏览】;

c:将会打开我的电脑,我们就可以找到Excel表格所在位置,双击就能添加;

d:最后,我们来看一下Excel插入到Word的效果吧。

4、【修改块怎么办】
好多人都以为修改不了块,就将其炸开,然后改完再合并重定义成块,下面有一个简单的办法。
操作方式:REFEDIT,按提示,修改好后用命令:REFCLOSE,确定保存,你原先的按改后也随之保存。
5、【为什么输入的文字高度无法改变】
使用的字型的高度值不为0时,用DTEXT命令书写文本时都不提示输入高度,这样写出来的文本高度是不变的,包括使用该字型进行的尺寸标注。
6、【特殊符号的输入】
我们知道表示直径的“Ф” 用控制码%%C、表示地平面的“±”用控制码%%P、标注度符号“°”用控制码%%D。
可是在CAD里怎么输入呢?操作方式:
a:T文字命令,拖出一个文本框框
b:在对话框中右键----符号---会出现一些选项
7、【删除顽固图层的有效方法】
删除顽固图层的有效方法是采用图层影射,命令laytrans,可将需删除的图层影射为0层即可。
这个方法可以删除具有实体对象或被其它块嵌套定义的图层,可以说是万能图层删除器。

掌握这些,你离CAD高手又进了一大步哟!
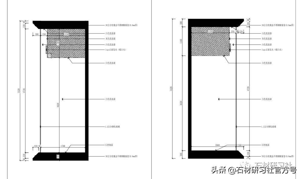
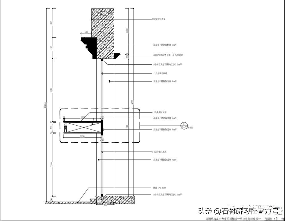
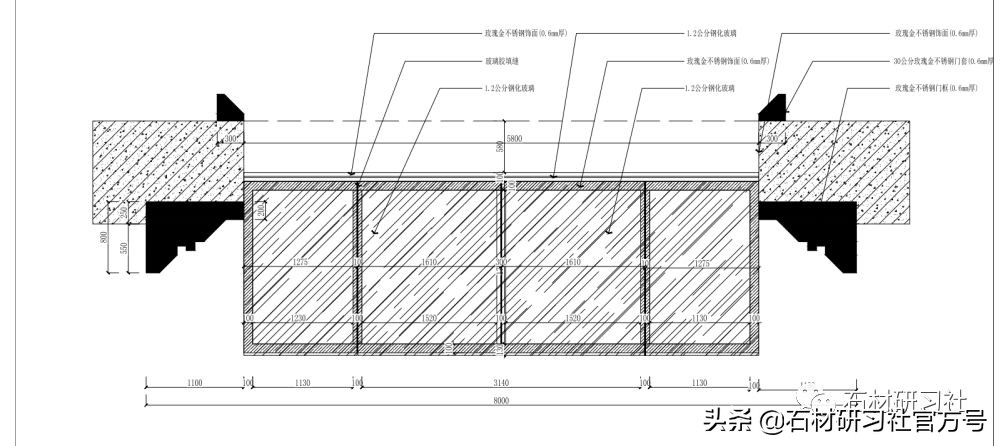
石材CAD施工图




















素材来源于网络