相信大部分人都会选择后者。
当下很多人都认为:一个人,可以选择蜗居;但如果是两个人一起过日子,房子一定要够大。


是呀,谁不想拥有一个大房子呢,但高居不下的房价让人望而却步,只能退而求其次,住进一个很小的空间里。但是,小房子也并非意味着一定是“拥挤、压抑、断舍离”的载体。
小房子,也可以过得很温馨。
日本有一对夫妇,他们婚后至今,住了14年的小房子,这期间搬过一次家,房子却一次比一次小,但日子越过越幸福了!
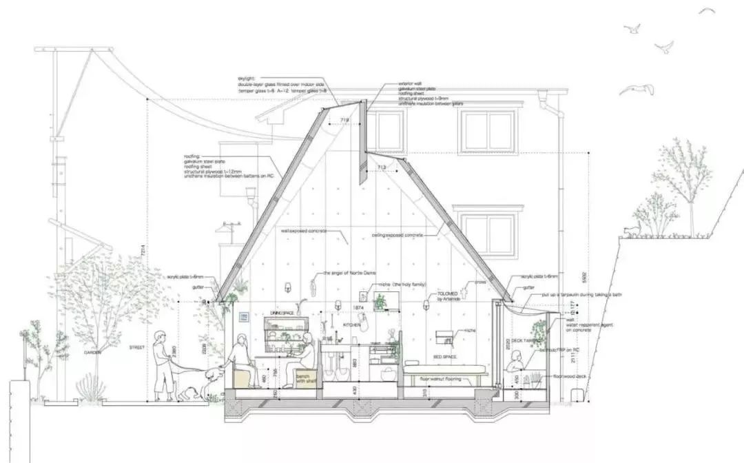
18平米,2个人,7个功能分区;露*浴天**池、星空卧室、双开门大冰箱;300张黑胶唱片、300本书;……这是丈夫送给妻子最好的生日礼物。

- 01 -38平米的LOVE HOUSE
故事的主人公,是日本建筑师保坂猛,和她的妻子小惠。
其实两人一开始,还不是住在这个18平米的家。
日本建筑师保坂先生 ▽

2005年,保坂先生和小惠结婚,婚后住进了东京近郊横滨的一所小住宅,那是两人共同拥有的第一栋房子,叫“LOVE HOUSE”,面积仅有38平米。
LOVE HOUSE ▽


沿着LOVE HOUSE月牙形状的楼梯往上走,越来越敞亮,二楼半开放的庭院,晴时可以坐在这里晒太阳,雨时坐在小板凳上等雨声滴答也不错。

夜晚沐浴着最自然的月光,才是最幸福的。


但再美好的生活,也终将会被现实打败。
2015年开始,保坂先生要在早稻田大学任教,由于住在横滨,每天仅是花费在通勤的时间,就要3个小时。他们商量着,要不搬到东京去。
但是毕竟是市中心,房价自然也不会低。夫妻俩一致决定,去买一小块地,自己设计自己建。

123 这么说着,也就这么做了。保坂猛和小惠就在东京一个数一数二的小区里,买下了一块31㎡的地。
浪漫的是,在妻子生日那天,保坂先生把新家的设计草图当作生日礼物,送给了小惠。

一次次修改、设计、购置材料,整整花了4年的时间。2019年,夫妻俩终于住进了他们的18㎡新家:LOVE HOUSE。
- 02 -18平米的LOVE HOUSE
保坂和小惠的新家,被夹在两栋原本已经建好、并且还比它高的民居旁。任谁看来,LOVE HOUSE都显得有点“格格不入”。
不仔细看,可能还会以为这是新开的一家咖啡馆,而非私人住宅。

室内面积只有18㎡,为了住进去的时候不会感到拥挤、压抑,保坂先生特地舍弃了二楼的空间,做了挑高设计。


最最特别的,就是在屋顶开了两扇高低不同的天窗!尽管 LOVE HOUSE因为隔壁房子的阻挡,看不见冬季的太阳。
但在其他季节的时候感受太阳光线洒在房子里,简直不要太美好!!!



在面向小路的地方,是一大块落地窗,但这里不是门口,门口在房子的侧面。

进门后,是一个玄关,而右侧有一个嵌入墙面的储物柜,可以说是非常会利用空间了,可以放书,也可以放下其他的杂物。

往里走,就是客厅。站在外面透过落地玻璃,能看到的第一个区域,也是这里。
夫妻俩在这放了一张很大的桌子,可以在这里喝咖啡、吃饭、画图、看书。这么说来,这里既是客厅,也是餐厅。

不知道大家有没有留意到嵌在墙上的小柜子,摆满了茶壶、茶具还有一整套红酒杯,满满的生活气息。
特别的是,椅子侧边的木板还可以拿来储物。


有的时候,邻居在外面经过,还能透过落地玻璃打招呼,好融洽的画面。

再往里走,就是厨房。这里除了各种厨具,还有小惠最爱的大双开门冰箱!黑胶和音响也放在这儿,听着最爱的唱片做饭,也是一种惬意的享受吧。



123 保坂先生没有完全把各个分区明确隔断,而是给它设置了一堵矮墙,厨房和卧室之间也是。
要说整个房子里最令人羡慕的地方,共和君觉得就是这个卧室! 123


床的旁边有个衣橱,那里可以放下4大箱衣服。
最重要的是!不仅能够在床上沐浴着阳光醒过来,而且躺着就能透过天窗看到天上的云,还有夜晚的星星和月光!

卧室过后再往里走,保坂先生在那造了一个露*浴天**池,还有一个淋浴间。
他巧妙地利用了墙面来遮挡视线,因而也就摆脱了四周的高建筑所带来的困扰。

看完了保坂夫妇俩的18平米小屋,感觉就像逛了一圈200平米的豪宅一般。
面积虽然小,但是却满足了夫妻俩的生活所需:沐浴、音乐、戏剧、美食、学习,足不出户,都能做到。


123 有人憧憬大房子,因为那样会令人住得更加潇洒自由;也有人认可小住宅的生活方式,因为这样,目光所及之处都是自己所爱的人与物。房子再小,有爱,就是家同意点亮小花↓↓
来源:FM93浙江交通之声