“设计新发声,与大师演绎梦想”,由酷家乐联合新浪家居共同打造的 2020「酷+创造营」年度先锋设计师选拔,旨在打造设计界的“创造101”,携手陈暄、宋微建、韩文强、高志强、罗灵杰等当下中国设计界大师,加速设计大师预备役成长过程,打造专属中国先锋设计师成长的助力平台。
大赛自4月启动,组委会收到来自全国各地设计师的参赛作品。以下为参赛选手的设计作品。
♦ 参赛设计师:
朱磊
泓焕空间创始合伙人
♦ 参赛作品:
项目名称:SUMEIMEI
主案设计:朱磊
建筑面积:260平方米
地址:烟台市上市里街区
♦ 设计说明:
少是精简而非空白
多是完美而非拥挤
即摒弃不必要的元素
以呈现事物的本质之美
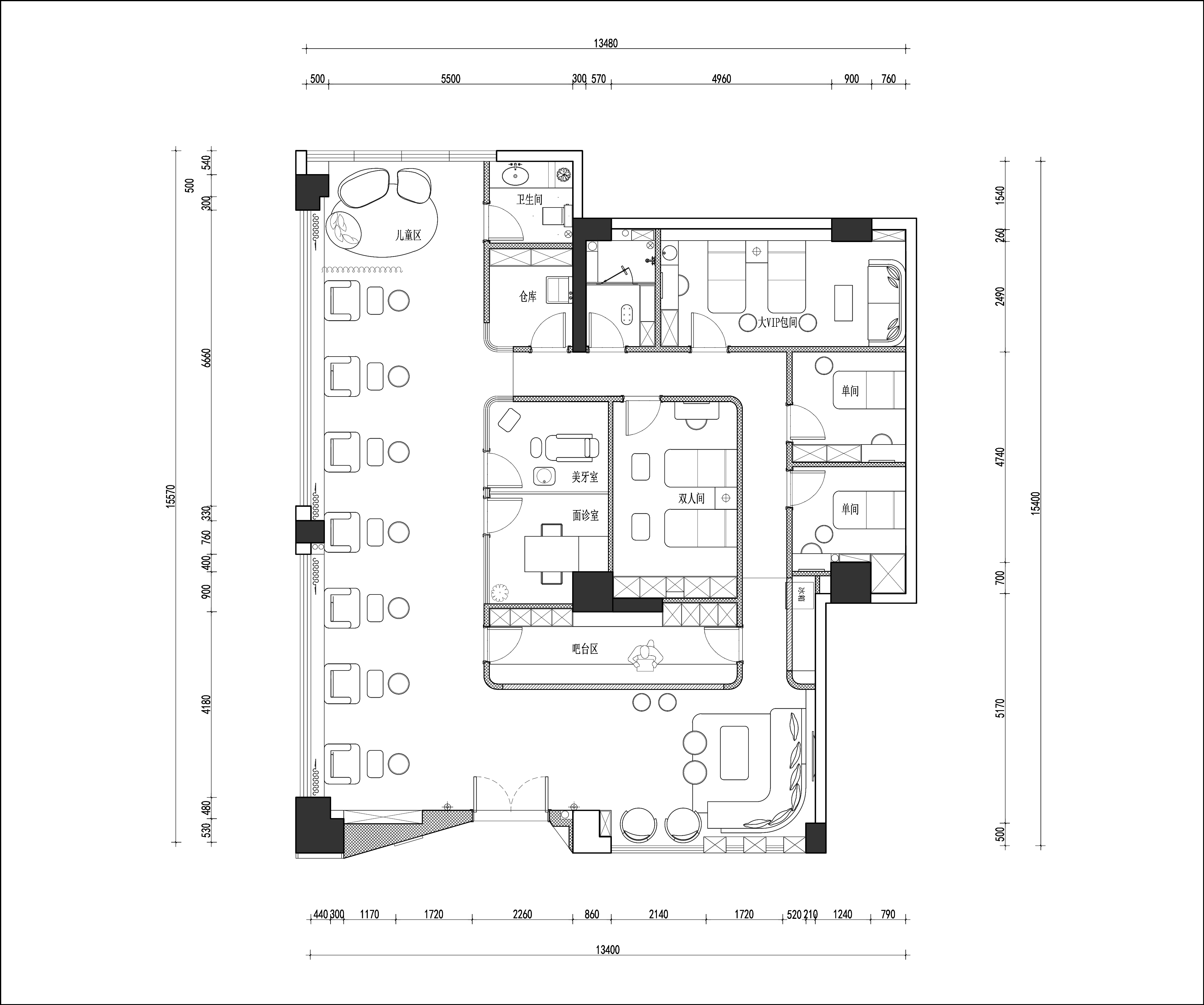
SUMEIMEI致力于成为尖端的美容品牌,服务内容涵盖美容美体,美甲,化妆品。第一次接触SUMEIMEI它的产品整体的VI设计,我们希望设计更简单化,功能布局更纯粹,通过色彩来连接各个空间,突显柔软和女性的特质来重塑塑美美品牌店的形象。
将明艳的色彩和白色表面加以巧妙运用。原有的墙壁也得到充分利用,转变为一系列富有生气的空间。每个房间分别拥有各自的代表色,白色的走廊平衡了彩色空间的强烈特征,同时将众多明亮的空间连接在一起。设计师希望摒除当下美甲店常有的喧杂环境,转而唤起一种充满探索与乐趣的氛围;几何元素不时穿插在空间之间。带有装饰整体彩色墙面和定制的陀螺椅家具带来活泼缤纷的色彩,粉色、黄色、红色及蓝色相映成趣。
设计采用了直线与弧线结合的墙面重新整合了室内界面。弧形墙面划分出美甲、美容、接待、库房等不同的功能区域,满足空间从开放到私密的不同需求,多样的尺度和形状也丰富顾客们的环境感受。打磨成弧形的镜面四角,从细节处强化了室内环境的柔美。圆形壁灯的布置不禁让人联想到好莱坞的化妆间,美轮美奂。
♦ 作品展示:
项目照片:














平面图

2020「酷+创造营」先锋设计师选拔大赛报名方式
关注“家居情报站”公众号
输入“我要报名”
获取更多报名相关信息