一、单项选择题(共 20 题,每题 1 分。每题的备选项中,只有 1 个最符合题意)
1.柔性路面主要代表是沥青类路面,其破坏主要取决于( )和极限垂直变形。
A.剪切变形 B.剪切强度
C.弯拉强度 D. 弯拉应变
2.由于行车载荷和自然因素对路面结构的影响随深度的增加而逐渐减弱,故对道路各结构层的材料回弹模
量应自上而下( )。
A.递减 B.递加
C.相同 D.交替变化
3、路堤施工中,采用土工合成材料加筋的主要目的是提高路堤的( )。
A.承载力 B.平整度
C.稳定性 D.水稳性
4.拱桥的矢跨比是( )。
A. 反映拱桥断面特性的指标 B. 计算矢高于计算跨径之比
C. 净矢高与净跨径之比 D. 计算跨径与计算矢高之比
5.根据强度验证原理和密度修正方法,确定每立方米混凝土的材料用量,属于( )。
A.基准配合比设计阶段 B.试验室配合比设计阶段
C.初步配合比设计阶段 D.施工配合比设计阶段
6.下列关于锚具、连接器的说法中,错误的是( )。
A.锚具应满足分级张拉、补张拉和放松预应力的要求
B.用于先张法的连接器,必须符合夹具的性能要求
C.适用于高强度预应力筋的锚具,不能用于较低强度的预应力筋
D.用于后张法的连接器,必须符合锚具的性能要求
7.关于防水卷材施工的说法中,正确的是( ) 。
A. 卷材防水层铺设前应先做好大面积铺设,然后再进行节点、转角、排水口等部位的局部处理
B. 当下雨、下雪和风力大于或等于 5 级时,严禁进行桥面防水层体系的施工
C. 接头处卷材的搭接宽度沿卷材的长度方向应为 100mm
D. 卷材应采用沿桥梁纵、横坡从高处向低处的铺设方法
8.下列关于简支梁支座功能要求的说法,错误的是( )。
A. 必须具有足够的承载能力 B. 滑动支座适应梁体自由伸缩
C. 固定支座仅传递竖向力 D. 必要时可以进行更换
9.有关双壁钢围堰说法,错误的是( )。
A.双壁钢围堰应按设计要求在工厂制作,其分节分块的大小应按工地吊装、移运能力确定。
B.双壁钢围堰各节、块拼焊时,应按预先安排的顺序对称进行。
C.在水深或水急处浮运时,可在围堰两侧设导向船。
D.在浮运、下沉过程中,围堰露出水面的高度不应小于 0.7m。
10.钢管混凝土墩柱应采用( )混凝土,一次连续浇筑完成。
A. 微膨胀 B. 自流平
C. 速凝 D. 早强
11.关于简支梁板吊运方案的要求,错误的是( )。
A. 编制专项方案,并按有关规定进行论证、批准
B. 应进行吊车等机具安全性验算
C. 起吊过程中构件内产生的应力验算必须符合要求
D. 应对施工现场条件和拟定运输路线社会交通进行充分调研和评估。
12.钢梁制作基本要求中,以下表述正确的有( )。
A. 钢梁制造焊接环境相对湿度不宜高于 70%。
B. 主要杆件应在组装后 12h 内焊接
C. 钢梁在现场必须进行试拼装,并应按设计和有关规范的要求验收
D. 钢梁出厂前,安装企业应对钢梁质量和应交付的文件进行验收,确认合格
13.生物氧化预处理技术主要采用( ), 其形式主要是淹没式生物滤池。
A. 生物氧化法 B. 臭氧氧化法
C. 活性炭吸附法 D. 生物膜法
14.城市桥梁工程大体积混凝土浇筑时,产生裂缝的原因不包括( )。
A. 桩身混凝土强度低 B. 水泥水化热引起的温度应力和温度变形
C. 外界气温变化的影响 D. 内外约束条件的影响
15. 关于燃气管道强度试验的说法,错误的是( )。
A. 压力计及温度记录仪表均不应少于 2 块
B. 埋地管道回填土宜回填至管上方 0.3m 以上,并留出焊接口
C. 试验用压力计的量程应为试验压力的 1.5~2 倍
D. 管道焊接检验、清扫合格
16.有关内支撑体系施工的说法,正确的是( )。
A.内支撑结构的施工与拆除顺序应与设计工况一致,必须坚持先开挖后支撑的原则
B.围檩与围护结构之间尽量紧密接触,可留有少量缝隙
C.钢支撑应按设计要求施加预压力,当监测到预加压力出现损失时,可再次施加预压力
D.支撑拆除应在替换支撑的结构构件达到换撑要求的承载力后进行
17.下列关于单元组合现浇混凝土工艺说法有误的是( )。
A.该工艺可有效防止池体出现裂缝渗漏
B.圆形水池单元间可采用止水带、胶泥嵌缝进行处理
C.该工艺适用于沉砂池、生物反应池、清水池等大型断面的池体
D.该工艺适用于圆形、矩形和卵形水池
18.以下关于热熔连接的叙述错误的是( )。
A.在热熔连接组对前,应清理连接面及加热工具表面
B.熔接时两个对应的连接件应在同一轴线上
C.被连接的两管件厚度不一致对熔接无影响,不须做特殊处理
D.在保压时间、冷却时间内不得移动连接件或在连接件上施加任何外力
19.工程施工质量验收规定,检验批及分项工程应由( )组织施工单位相关人员进行
验收。
A. 总监理工程师 B. 监理工程师
C. 项目经理 D. 施工单位技术负责人
20. 施工质量控制中,进行不合格让步接收时,工程施工项目部应向( )提出书面让步接收申请。
A.发包方 B.监理
C.总包方 D.质量监督部门
二、多项选择题(共 10 题,每题 2 分。每题的备选项中,有 2 个或 2 个以上符合题意,至少有 1 个错项。
错选、本题不得分;少选,所选的每个选项得 0.5 分)
21.关于水泥混凝土道路基层的作用,阐述正确的是( )。
A.防止或减轻由于唧泥产生板底脱空和错台等病害
B.减少路基不均匀冻胀
C.减少体积变形对混凝土面层产生的不利影响
D.改善接缝的传荷能力
E.调节路基可能产生的不均匀沉降
22.再生沥青混合料性能试验指标有( )。
A. 残留马歇尔稳定度 B. 矿料间隙率
C. 饱和度 D. 冻融劈裂抗拉强度比
E. 流值
23. 设计预应力混凝土结构模板时,应考虑施加预应力后、及( )等。
A.构件的上拱 B.构件的支座螺栓位移
C.构件的非弹性变形 D.预埋件的位移
E.构件的弹性压缩
24.钢-混凝土结合梁桥面应全断面连续浇筑,以下浇筑顺序正确的是( )。
A.顺桥向自跨中向两端浇筑 B.顺桥向由一端开始浇筑
C.顺桥向自两端向跨中浇筑 D.横桥向右中间向两侧浇筑
E.横桥向有两侧向中间浇筑
25.基(槽)坑土方开挖施工时,应立即停止挖土,并应立即查清原因和及时采取措施后,方能继续挖土
的情况包括( )。
A. 支护结构的内力突然增大 B. 边坡出现失稳征兆
C. 开挖暴露出的基底出现明显异常 D. 基坑暴露时间过长
E. 围护结构发生异常声响
26.盾构法施工隧道具有以下优点( )。
A. 施工不受风雨等气候条件影响
B. 当隧道穿过河底或其他建筑物时,不影响航运通行、建(构)筑物正常使用
C. 土方及衬砌施工安全、掘进速度快
D. 当隧道曲线半径越小,施工越方便
E. 盾构法隧道上方一定范围内的地表沉降已能完全防止
27.给水预处理方法中化学氧化法预处理技术主要有( )。
A.氯气预氧化 B.高锰酸钾氧化
C.紫外光氧化 D.臭氧氧化
E.生物膜法
28.有盖水池满水试验的流程有( )。
A. 吹扫 B.水池注水
C.水池内水位观测 D.蒸发量测定
E.整理试验结论
29.关于钢板桩围堰施工的说法,正确的有( )。
A.适用于深水基坑工程 B.在粘土层施工时应使用射水下沉方法
C.钢板桩的锁扣应用止水材料捻缝 D.施打时应有导向设备
E.施打顺序一般从上游向下游合龙
30.关于管道保温,以下叙述正确的有( )。
A.有报警线的预制保温管,管道应在报警线的下方
B.预制管壳应采用螺旋式缠绕捆扎方式
C.保护层端头应封闭,螺钉间距不应大于 150mm
D.直埋保温管的接口应在保护壳(套袖)气密性试验合格后,才可以进行发泡保温施工
E.伸缩缝,并填充导热系数与保温材料相近的软质保温材料
三、案例分析题(共 5 题,(一)、(二)、(三)题各 20 分,(四)、(五)题各 30 分)
案例一
【背景资料】
某城市输水管线长 4.28km,DN1200 钢管,管道埋深约 5.Om,管线位于城市主干道路的非机动车道上。
采用明开槽方法施工,沟槽土质为回填杂土及粉砂土。受交通条件制约,沟槽土方挖运和吊车下管安排在
晚 10 时到次日早 6 时进行,项目部办理了管线开挖占路手续。现场施工发生如下事件:
事件一、为吊车下管方便,选择夜间时段移动护栏临时占用一条机动车道,受到交通管理部门的处罚。
事件二、挖土机开挖沟槽时发现有一段废弃的旧排水砖沟,约请监理工程师查看后,项目部进行挖除
和换填石灰粉煤灰稳定碎石。
事件三、质量员查验准备焊接的管口时,发现有数个坡口范围存在锈渍。
事件四、钢管吊运到沟槽前,作业队在管道内按间距 4m 加设木支撑。回填作业在沟槽局部偏窄处,
钢管下腋角部位采用木夯夯实。回填完毕发现管道竖向变形 50mm。
【问题】
(1)事件一做法为何受到处罚,违反了哪些规定?
(2)事件二沟槽基础处理在程序上是否妥当?如不妥当,写出正确的程序。
(3)事件三中对管道施焊的坡口,有关规范有哪些规定?
(4)事件四管道防止变形措施是否正确?为什么?
案例二
【背景资料】
某城市市区主要路段的地下两层结构工程,地下水位在地面以下 2.0m。基坑平面尺寸为 145mX20m,
基坑挖深为 12m,围护结构为 600mm 厚地下连续墙,采用四道φ609mm 钢管支撑,竖向间距分别为 3.5m 、
3.5m 和 3m。基坑周边环境:西侧距地下连续墙 2.0m 处为一条 4 车道市政道路;距地下连续墙南侧 5.0m
处有一座 5 层民房;距地下连续墙外沿 12m 范围内有三条市政管线。
项目部采取现场钉木桩挂 2.0m 高安全网作为施工围挡,要求专职安全员在基坑施工期间作为安全生
产的第一责任人进行安全管理,对施工安全全面负责。安全员要求对电工及架子工进行安全技能培训,考
试合格持证方可上岗。
施工过程中发生如下事件:
事件一:监理工程师在审查基坑监测方案时发现:基坑监测项目主要为围护结构变形及支撑轴力。
事件二:由于第四道支撑距坑底仅 2.0m,造成挖机挖土困难,项目部向行将第三道支撑下移 1.Om,
取消第四道支撑,被监理工程师制止。
【问题】
1. 指出本工程现场围挡不合要求之处,施工围挡还应有哪些要求?
2. 项目经理部由专职安全员对施工安全全面负责是否妥当?为什么?简述专职安全员的职责。
3. 安全员要求持证上岗的特殊工种不全,请补克。
4. 根据《建筑基坑支护技术规程》 JGJ120-2012, 结合本案例背景,补充监测项目。
5. 事件二做法为何被制止,若按该支撑做法施工可能造成什么后果?
案例三
【背景资料】
某市政公司承包某路段的改建工程,全长 2.5km,工期为当年 7 月到次年 2 月。该路段为四快两慢主
干道,道路结构层:机动车道 20cm 石灰土底基层,45cm 二灰碎石基层,9cm 粗粒式、4cm 细粒式沥青混凝
土面层;非机动车道为 20cm 石灰土底基层,30cm 二灰碎石基层,6cm 粗粒式、3cm 细粒式沥青混凝土面层;
两侧为彩色人行道石板。
项目部进场后,项目技术负责人即编制了实施性施工组织设计,其中规定由项目部安全员定期组织安
全检查。该施工组织设计经上一级技术负责人审批同意后,即开始工程项目的实施。
在实施过程中,项目部将填方工程分包给某工程队,当土方第一层填筑、碾压后,项目部现场取样、
测试,求得该层土实测干密度,工程队随即进行上层填土工作。监理工程师发现后,立即向该工程队发出
口头指示,责令暂停施工。整改完毕符合验收程序后,又继续施工。在一次安全检查中,监理发现一名道
路工在电箱中接线,经查证,属违反安全操作规程行为。
沥青混凝土面层施工正值冬期,监理工程师要求项目部提供沥青混凝土面层施工措施。
【问题】
(1)监理工程师发出暂停施工指令的原因是什么?其指令方式有哪些应改进的地方?
(2)施工组织设计的审批程序存在什么问题?
(3)沥青混凝土冬期施工应采取的措施是什么?
(4)该道路工程有哪些地方违反了操作规程?为什么?
(5)工程项目安全检查的规定是否正确?请说明理由。
案例四
【背景资料】
某公司项目部承接一项直径为 4.8 m 的隧道工程,隧道起始里程为 DK10+100, 终点里程 DK10+868,
环宽为 1.2m,采用土压平衡盾构施工。投标时勘察报告显示,盾构隧道穿越地层除终点 200m 范围为粉砂
土以外,其余位置均为淤泥质黠土。项目部在施工过程中发生了以下事件:
事件一:盾构始发时,发现洞门处地质情况与勘察报告不符,需改变加固形式。加固施工造成工期延
误 10 天,增加费用 30 万。
事件二:盾构施工至隧道中间位置时,从一房屋侧下方穿过,由于项目部设定的盾构土仓压力过低,
造成房屋最大沉降达到 50mm,项目部采用二次注浆进行控制。穿越后很长时间内房屋沉降继续发展, 最
终房屋出现裂缝,维修费用为 40 万。
事件三:随着盾构逐渐进入全断面粉砂地层,出现掘进速度明显下降现象,并且刀盘扭矩和总推力逐
渐增大,最终停止盾构推进。经分析为粉砂流塑性过差引起,项目部对粉砂采取改良措施后继续推进,造
成工期延误 5 天,费用增加 25 万元。
区间隧道贯通后计算出平均推进速度为 8 环/天。
【问题】
1. 事件一、二、三中,项目部可索赔的工期和费用各是多少,说明理由。
2. 事件一中,洞口土体加固的常用方法有哪些?
3. 针对事件二的情况,施工单位应该提前采取哪些措施?
4. 事件二中二次注浆应采用什么浆液?为何盾构穿越很长时间房屋依然发生沉降,应如何避免这种情况发
生。
5. 事件三中采用何种材料可以改良粉砂的流塑性?
6. 整个隧道掘进的完成时间是多少天(写出计算过程) ?
案例五
【背景资料】
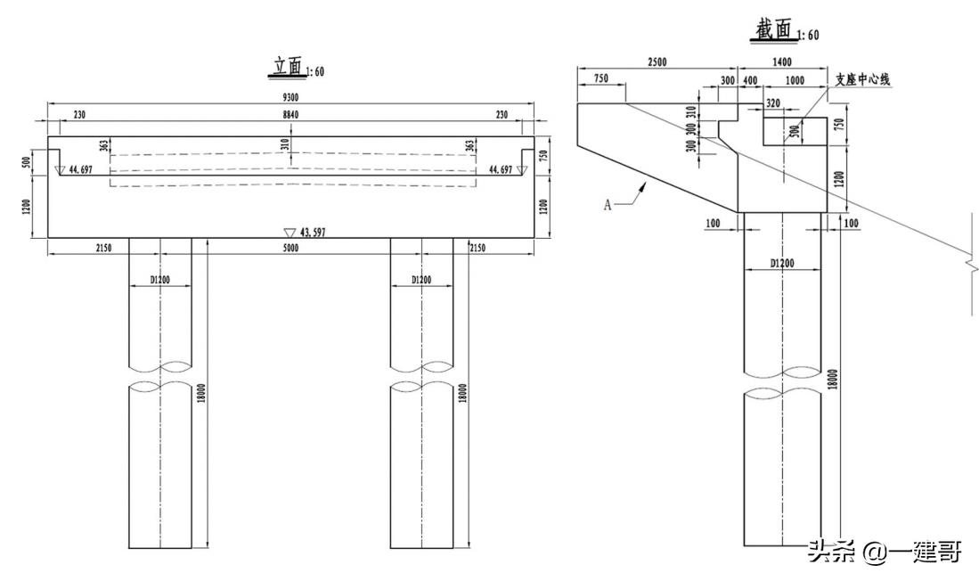
某立交桥工程,该桥为平行分离式立交桥,1#、2#桥台与 3#、4#桥台完全相同,如下图(图中除高程
为 m 以外,其余单位均为 mm),1#、2#桥台支座中心线里程桩号为 K1+160m,3#、4#桥台支座中心线里
程桩号为 K2+760m,本桥梁跨越一条交通繁忙的铁路、一条城市主要环路和一条有中小船只频繁通航的河
流。全桥共 60 跨。其中跨越铁路路段采用穿巷架桥机法施工;跨越城市环路路段 40m 采用预制钢梁,因
梁体过重,为保证安全,项目部决定现场搭设满堂支架法施工(断路 24h),支架单点集中荷载 10KN;
跨越河道段岸边为 34#、39#墩,河中 35#~38#墩,下部结构采用筑岛施工桩基、承台、桥墩,上部结构采
用悬臂浇筑法施工;本桥梁除跨越位置以外均采用预制梁现场吊装施工,采用简支变连续法施工。
桩基采用钻孔灌注桩与沉入桩相结合的形式,其中有 8 个承台下面桩基采用沉入桩方式,根据现场土
质情况,设计要求采用振动沉桩方式,每承台下为 32 根桩。钻孔灌注桩为泥浆护壁成孔,钻孔机械为旋
挖钻。承台尺寸为 8×4×2.5,部分承台埋深超过 3m。
本工程防撞墩为现场浇筑形式,在施工前制定的施工流程是:测量放线→现场清理→钢筋加工→模板
制作→模板安装→浇筑混疑土。
工程开工前,项目部根据本工程编制了安全专项施工方案,并且进行了专家论证。并针对本工程实际
特点,办理了夜间施工的手续。
在施工过程中,项目部工人在施工期间休息时,去河道中游泳被淹死。经调查,本工程施工前确定的
风险源(易发生职业伤害事故)有缺项。
区间隧道贯通后计算出平均推进速度为 8 环/天。
【问题】
1. 事件一、二、三中,项目部可索赔的工期和费用各是多少,说明理由。
2. 事件一中,洞口土体加固的常用方法有哪些?
3. 针对事件二的情况,施工单位应该提前采取哪些措施?
4. 事件二中二次注浆应采用什么浆液?为何盾构穿越很长时间房屋依然发生沉降,应如何避免这种情况发
生。
5. 事件三中采用何种材料可以改良粉砂的流塑性?
6. 整个隧道掘进的完成时间是多少天(写出计算过程) ?
案例五
【背景资料】
某立交桥工程,该桥为平行分离式立交桥,1#、2#桥台与 3#、4#桥台完全相同,如下图(图中除高程
为 m 以外,其余单位均为 mm),1#、2#桥台支座中心线里程桩号为 K1+160m,3#、4#桥台支座中心线里
程桩号为 K2+760m,本桥梁跨越一条交通繁忙的铁路、一条城市主要环路和一条有中小船只频繁通航的河
流。全桥共 60 跨。其中跨越铁路路段采用穿巷架桥机法施工;跨越城市环路路段 40m 采用预制钢梁,因
梁体过重,为保证安全,项目部决定现场搭设满堂支架法施工(断路 24h),支架单点集中荷载 10KN;
跨越河道段岸边为 34#、39#墩,河中 35#~38#墩,下部结构采用筑岛施工桩基、承台、桥墩,上部结构采
用悬臂浇筑法施工;本桥梁除跨越位置以外均采用预制梁现场吊装施工,采用简支变连续法施工。
桩基采用钻孔灌注桩与沉入桩相结合的形式,其中有 8 个承台下面桩基采用沉入桩方式,根据现场土
质情况,设计要求采用振动沉桩方式,每承台下为 32 根桩。钻孔灌注桩为泥浆护壁成孔,钻孔机械为旋
挖钻。承台尺寸为 8×4×2.5,部分承台埋深超过 3m。
本工程防撞墩为现场浇筑形式,在施工前制定的施工流程是:测量放线→现场清理→钢筋加工→模板
制作→模板安装→浇筑混疑土。
工程开工前,项目部根据本工程编制了安全专项施工方案,并且进行了专家论证。并针对本工程实际
特点,办理了夜间施工的手续。
在施工过程中,项目部工人在施工期间休息时,去河道中游泳被淹死。经调查,本工程施工前确定的
风险源(易发生职业伤害事故)有缺项。

问题:
1.本工程桥梁全长为多少 m?
2.根据案例背景,请说出本工程容易发生哪些职业伤害事故?
3.图中 A 是什么,起到什么作用?
4.本工程除夜间施工时办理相关手续外,在具体施工过程中还找哪些部门办理手续?
5.本工程中采用穿巷架桥机在施工应注意哪些问题。
6.本工程筑岛施工应注意哪些具体问题