在实际施工现场,尤其现今均采用现浇方式施工,无论是工业还是民用建筑的楼梯施工对现场的施工人员要求技术较高。本篇文章是针对现场木工怎样准确快速的配置楼梯模板的一个指导。
欢迎木工师傅们多提意见,大家要是有更好的做楼梯的方法,欢迎告诉我们,用图文的方法呈现出来。
一、施工准备
1.机具准备:电锯、平刨、压刨、台钻、电钻、锤子、斧子、锯、靠尺、盒尺、线坠、小线、塞尺、墨斗、扳手等。
2.材料准备:50×100,100×100木方, 1200×2400×15mm厚的多层胶合板,50mm,70mm,100mm的圆钉,φ14的止水螺栓,φ14的普通对拉螺栓,脱模剂,海绵条、密封条、架子管等。
3.垂直运输用塔吊
4.作业条件:施工缝处、休息平台甩筋处砼凿毛,材料、机具及人员已准备就绪。

二、施工方法:
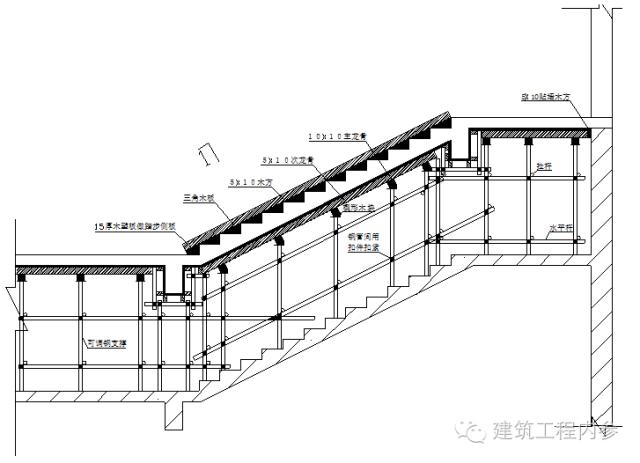
1、工艺流程:抄平弹线——立钢支撑——安装主龙骨——安装阴角托梁—— 安装次龙骨——校正标高——铺多层板
2、模板设计:楼梯踏步的板底模板采用多层板模板,次龙骨采用50×10mm方木,主龙骨采用100×100mm方木;踏步板底支撑采用ф48×3.5㎜脚手钢管,支撑顶部配可调顶托;楼梯踏步模板采用现场加工定型的木模板。

质量标准
1、保证项目:模板及其支架必须具有足够的强度、刚度和稳定性;其支承部分应有足够的支承面积。
2、基本项目:模板接缝不应漏浆。模板与混凝土接触表面清理干净并涂隔离剂,严禁隔离剂沾污钢筋与混凝土接槎处。
3、允许偏差项目:

三、 成品保护:
1、 运输安装模板时要轻起轻放,不准磕碰,防止模板变形。
2、 拆模时不得用大锤砸或撬棍硬撬,以免损伤砼表面和棱角。
3、 拆下的模板发现变形或损坏及时修理,并分规格。
四、 其它应注意的问题
1、 在吊运模板时,要注意模板表面不得磕碰划痕。
2、 木工机械一机一闸,有漏电保护装置,并装有防护装置装好地线,操作人员经过培训后,专人操作。
3、 木工棚内要有消防器材,并经常检查更换。作业区内禁止吸烟要挂禁烟牌。
4、 留下的木削、刨花、碎木要当日清理运到指定地点。
5、 再吊运时施工人员禁止在吊装物的垂直作业面下工作。
6、 施工人员禁止在槽边堆放各种材料。
2018年建筑兄弟外出打工找建筑活儿,记工记账、学技能,就来【吉 工 家】 APP!1200万工友都在用!手机免费记工不丢失,对账拿钱有依据!招工找活儿全实名制更靠谱,海量建筑工作任你挑选!
全国1200万建筑工友都在使用【吉 工 家】 APP,戳下方图片或上网搜搜“吉工家”就能找到,赶紧行动起来吧!