01 项目的建筑设计理念及特色
设计根据基地特征,借鉴了国际医疗设计理念,体现高效便捷的医疗流线、绿色生态的医疗环境。医院设计采用了体现基于南北轴线上展开的具有中国传统建筑格局的总体规划。整体总图体现了中国传统建筑文化中院落围合的空间概念。
- 1、一切以病人为中心:所有的医疗资源围绕着就诊的患者展开。
- 2、立体交通流线:利用主入口前河道桥梁把建筑入口分成上下立体交通,一层为急诊和影像中心入口,二层为如机场般的车道(含公共BUS)直达门诊大厅。
- 3、板式病房变为"回"字形病房:有利于病房单元的病房数量的灵活借用。
- 4、会呼吸的医院:大量的公共灰空间使医院更加明亮、通透;敞开的技术层、通透的病房楼转角。
- 5、医患流线分开:垂直+水平的绝对的医患流线分开,使医院流线更加具有明晰、便捷。
02 项目的基本信息
|
建筑用途(性质) |
一般工业与民用 |
建筑规模 |
800床医院 |
|
总用地面积 |
159081 m2 |
其 中 |
代*地征**面积 1.1038 ha |
|
建设用地面积 14.8043 ha |
|||
|
总建筑面积 |
119057 m2 |
其 中 |
地上 97547 m2 |
|
地下 21510m2 |
|||
|
建筑基底面积 |
12125 m2 |
容 积 率 |
1.1 |
|
绿 地 面 积 |
55678 m2 |
绿 化 率 |
35 % |
|
建筑高度 |
91.2 m |
建筑分类(高层建筑) |
一类 |
|
层 数 |
地上 19 层 |
耐火等级 |
一级 |
|
地下 1 层 |
主楼/裙房电梯数 |
主楼: 12 台 裙房: 5 台 |
|
|
主要层高 |
地上 91.2 m |
||
|
地下 4.8 m |
|||
|
机动车停放数量 |
总计 1413 辆 |
地 上 |
754辆 |
|
地 下 |
639辆 |
||
|
自行车停车数量 |
总计: 4540 辆 |
地 上 |
4540辆 |
|
地 下 |
0辆 |
||
|
周围道路宽度及性质: 西侧财富大道46米,城市次干道。南侧19#公路30米,城市支路。北侧路桥大道50米。城市主干道。东侧为农田。 |
|||
|
单位规模建筑面积指标 |
119057m2 |
使用面积系数 |
71 % |
|
|
单位建筑面积耗热量指标 |
48 W/m2 |
单位建筑面积耗冷量指标 |
25 W/m2 |
|
|
单位建筑面积变压器装机容量 |
70 VA/m2 |
日 供 水 量 |
2670 m 3/日 |
|
|
概 算 |
竣 工 结 算 |
|||
|
总造价 |
人民币 42897 万元外 币 / 万美元 |
总造价 |
人民币 42983 万元外 币 / 万美元 |
|
|
土建与安装工程的比 例 |
土建 75 %安装 25 % |
土建与安装工程的比 例 |
土建 74 %安装 26 % |
|
|
单位建筑面积造价 |
3603.06 元/m2 |
单位建筑面积造价 |
3610.29 元/m2 |
|
|
单位规模造价 |
536212 元/m2 |
单位规模造价 |
537287 元/m2 |
|
|
结算与概算出入的主要原因 |
施工周期长,人工成本有所增加 |
|||
|
经济专业主要特点: 台州恩泽医疗中心位于浙江省台州路桥大道和财富大道交叉口的东南角,医院*地征**面积15.9 万平方米,规划总建筑面积20.4 万平方米,一期建筑面积16.6 万平方米。概算定额套用 [浙江省建筑工程概算定额](2003版)、[浙江省安装工程概算定额](2003版)、[浙江省建设工程其他费用定额](2003版)、综合费率系数分别按一、三类建筑取费标准计取,材料信息价按[台州市建设工程造价信息]2007年第10期计取。 |
||||
03 设计总说明
1 总体布局
台州恩泽医疗中心位于浙江省台州路桥大道和财富大道交叉口的东南角,医院*地征**面积15.9 万平方米,规划总建筑面积20.4万平方米,一期建筑面积16.6 万平方米。设计根据基地特征,借鉴了国际医疗设计理念,体现高效便捷的医疗流线、绿色生态的医疗环境。恩泽医疗中心的设计采用了体现基于南北轴线上展开的具有中国传统建筑格局的总体规划。整体总图体现了中国传统建筑文化中院落围合的空间概念。
2 设计理念
1 一切以病人为中心:所有的医疗资源围绕着就诊的患者展开,功能布局采用塔楼集中式方式,将门诊、急诊、医技、与住院四大医疗功能区域形成相对集中的部门布局,通过垂直交通,形成门诊核心区和医技核心区,缩短了病房和门诊、医技之间的水平移动距离。
2、立体交通流线:利用主入口前河道桥梁把建筑入口分成上下立体交通,一层为急诊和影像中心入口,二层为如机场般的车道(含公共BUS)直达门诊大厅。
3、北入口南大厅:台州冬天气候寒冷,为弥补北入口的缺点,设计引导人流入口后进入阳光明媚的南向中央大厅。患者从二层主入口穿过序厅,便可到达通高的中央大厅,中央大厅与南侧中央花园之间是设计通透的玻璃隔断,使中央大厅和户外绿色景观融为一体。主医疗街沿着中央大厅层层设置。并通过中央大厅的扶梯层层连接,在中央大厅休息候诊的病人可方便的到达各处门诊。
4、板式病房变为"回"字形病房:有利于病房单元的病房数量的灵活借用。回字形的病房塔楼呈45 度展开,迎合了周围的各个角度,巧妙地回避了病房之间的视线隐私,利用东北两侧临水,东南两侧自然景观较好,注重病房的朝向,近可能地满足更多的病房向南向展开。同时迎合了台州主要风向,与当地全年主导风向西北西南风相互呼应,尽可能利用自然要素,达到节能环保的社会效益。
5、会呼吸的医院:大量的公共灰空间使医院更加明亮、通透;敞开的技术层、通透的病房楼转角。
6、医患流线分开:垂直+ 水平的绝对的医患流线分开,使医院流线更加具有明晰、便捷。
3 绿化环境设计
恩泽医疗景观设计的核心一是“静水庭院”。平静的景观水面,带给患者宁静的体验,很好的缓解病患的紧张情绪。二是“阳光庭院”。点缀其中的小庭院,为病房,办公,诊室等空间带来了丰富的采光。“阳光庭院”的景观绿化极为简洁,充分突出了“阳光明媚”的主题
4 立面处理
建筑的立面借鉴中国传统建筑元素,并通过对现代建筑精髓语汇的深刻理解和提炼的基础上,吸收传统建筑构成元素,进行重组,创造一种全新的魅力,表现出一种典雅精美、富有人情味的建筑风格。病房楼主体部分注意体现面与面之间的呼应,形成面面俱到的立面效果。
5 结构设计
医疗大楼是集门急诊、病房为一体的大型公共建筑。由于建筑防水及使用功能等方面的要求,地下室中不设置永久沉降缝或伸缩缝,在±0.000 以上设伸缩缝一道,将建筑物平面划分成二个形状简单,传力简洁的结构平面。工程分为门诊大楼、病房大楼二部分。
病房大楼地下1 层,地上19 层,屋顶高度93.20 米。主体结构采用现浇钢筋混凝土框架-剪力墙结构。主要柱网为7.60mx7.60m,主要梁截面为350x650、250x500,主要柱截面为1000x1000、800x800。
门诊大楼地下1 层,地上6 层,屋顶高度30.20 米。主体结构采用现浇钢筋砼框架结构。主要柱网为8.40mx8.40m、8.40mx16.80m,主要梁截面为350x700、250x500,16.80m 跨柱网梁采用500X1200 预应力砼大梁,主要柱截面为700x700、600x600、900x900。门诊北面大厅通高一层处立柱为钢柱,是玻璃幕墙主支撑骨架。其上屋面为钢结构屋面体系。
根据本工程地质勘察报告,场地上部没有好的基础持力层,本工程各单体基础采用桩基础,医疗大楼(病房楼、门诊楼)桩采用大直径钻孔灌注桩,桩端持力层为13 层圆砾层,承压桩采用桩底后注浆工艺提高单桩承载力。桩径Φ800、Φ1000,单桩承载力特征值取值:Φ800 的4300KN,Φ1000 的5600KN。抗拔桩根据拔力大小确定桩长,桩长约46 米。基础设计等级为乙级。
医疗大楼地下室长189 米,宽110 米。由于建筑防水及使用功能等方面的要求,地下室中不允许设置永久沉降缝或伸缩缝,因此结构设计中参考以往无缝设计的经验采取以下措施。
- (1)设置后浇带(膨胀加强带) 根据《高层建筑混凝土结构技术规程》(JGJ3-2002)第12.1.10 条,原则上沿地下室二个方向每隔30~40 米留一道贯通顶板、楼板、底板和侧墙,宽800 的施工后浇带,后浇带用膨胀混凝土,混凝土强度等级提高一级。
- (2)掺加外加剂及抗拉阻裂纤维 地下室底板、顶板、侧壁采用微膨胀混凝土,其中后浇带内掺12% UEA-H 混凝土微膨胀剂, 后浇带外掺8% UEA-H 混凝土微膨胀剂。地下室顶板混凝土内掺抗拉阻裂纤维。
- (3)加强通长配筋 底板、顶板、侧壁钢筋均按通长配筋,抵消混凝土收缩应力。
- (4)结合建筑形式采取有利构造措施 配合建筑形式的要求,一层楼板与地下室顶板错层1.2 米,地下室顶板覆土约1.0 米,这些都有助于减少温度应力。
- (5)地下室基础下做150mm 厚C15 素混凝土垫层和250 厚块石垫层。
- (6)地下室防水等级为二级,采用防水砼结构自防水,砼抗渗等级S8,结构迎水面增加一道柔性防水措施。
6 电气设计
电源与负荷等级: 电源采用2 路高压10KV 专线电源供电,并列运行, 可保证正常运行和事故运行,另设1250KVA 柴油发电机1 台,以满足消防及重要负荷的需要。变压器的低压侧设置了调谐电抗电容补偿柜,减少谐波危害,节能并延长了设备寿命。急诊抢救室、手术室等场所中涉及患者生命安全的设备和照明用电为一级负荷*特中**别重要负荷;急诊抢救室、手术室等场所中的除一级负荷*特中**别重要负荷的其他用电设备;计算机网络系统用电;配电室照明用电;所有消防设备均为一级负荷;中心供应室、空气净化机组;
客梯,排污泵、生活水泵、采暖锅炉及换热站等用电均为二级负荷。不属于一、二级的电力负荷为三级负荷。一、二级负荷为低压双电源供电,并在末端自切。一级负荷中应急疏散照明采用镍镉电池作备用电源,急诊抢救室、手术室等要求中断供电时间小于或等于0.5S 的一级负荷*特中**别重要的负荷应由UPS 不间断电源供电,为在线式。门厅等公共空间设置智能照明控制系统,通过调光或开关量控制满足不同功能的灯光场景控制要求,营造舒适的照明环境,有利节能,采用楼宇设备自控管理系统对空调设备、水泵、各类风机及其他用电设备进行能量自动控制;电梯选用节能电梯,并对电梯进行群控。
7 给排水设计说明
台州恩泽医疗中心位于浙江省台州路桥大道和财富大道交叉口的东南角,医院*地征**面积15.9 万平方米,规划总建筑面积20.4万平给水系统:由地块西侧和南侧道路引入二根DN200 给水管,在基地内形成环状管网。公卫楼、能源中心/ 宿舍楼、医疗大楼独立设恒压变频给水泵组;生活泵房设在主楼地下室水泵房内。
热水系统:集中热水供应范围为医疗大楼病房卫生热水、公卫楼病房卫生热水、能源中心/ 宿舍楼卫生热水。本工程热水采用地源热泵热水系统制备,热媒通过地源热泵机组升温后,经过板式热交换器将热量传递给生活热水,生活热水均存储在承压热水储罐中。系统在热媒侧串联了常压热水锅炉作为临时备用。门、急诊手术室配置容积式电热水器,以保证24h 用水安全。
排水系统:室内排水采用合流制。室外为雨污分流制。医疗污水集中排至医院污水处理站处理达标后排入市政管网。
空调冷却水系统:本工程分别设置了三套冷却塔循环水系统:采暖用双工况地源热泵机组闭式冷却水循环系统、螺杆式地源热泵机组(全热回收)闭式冷却冷却水循环系统及离心式制冷机组冷却水循环系统。循环水系统采用干管制。冷却塔设置能源中心屋面。冷却塔循环泵及冷冻机组设于能源中心一层。
消火栓系统:基地内所有建筑消防统一考虑,医疗大楼地下设消防水池、加压泵,医疗大楼塔楼屋顶设屋顶水箱。消火栓布置间距≯ 30m。系统分两个区,6 层及以下为低区,7 层以上为高区。超压部分消火栓采用减压稳压消火栓。其他单体消火栓系统给水均通过医疗大楼消火栓系统减压后提供。
自喷系统:在地下车库、诊疗室、病房、走道等场所设置自动喷水系统,危险等级地下车库为中危险Ⅱ级,其余为中危险Ⅰ级。
大空间智能型主动喷水灭火系统:本工程医疗大楼裙房中庭等建筑高度> 12m 区域,采用大空间智能型主动喷水灭火系统。
8 暖通设计
本工程大空间采用全空气低速系统集中空调方式. 分别设柜式或吊装空气处理机. 本工程诊室, 病房, 办公室及其它小房间采用风机盘管加新风机组为空调末端形式,新风经过滤, 热交换后送入室内。冬季特需病房新风机设加湿系统。本工程中心手术部的手术室,中心供应厅,洁净外廊分别设置独立加湿再热装置的全空气净化空调系统,空调设备置于技术夹层。消控中心,电梯机房等另设分体空调。
本工程夏季总冷负荷为14538KW(1250 万Kcal/h), 冬季总热负荷为9886KW(850 万Kcal/h)。本工程一期夏季总冷负荷为10467KW(900 万Kcal/h), 冬季总热负荷为6978KW(600 万Kcal/h)。选用制冷量为4535KW(390 万Kcal/h)水冷离心式冷水机组2 台和制冷量为1395KW(120 万Kcal/h)水冷螺杆式冷水机组1 台作冷源;冬季采暖采用燃气真空热水机组3 台,每台供热量3489KW,采暖用2326KW,卫生热水用1163KW。蒸汽由锅炉房提供,锅炉房总蒸发量为3T/h,设蒸发量为1.5t/h 燃气锅炉2 台,一, 二, 三期共用,锅炉房蒸汽全年供应食堂厨房, 洗衣房, 理疗, 消毒等需蒸汽。冷冻水或热水由空调循环水泵送至各空调末端装置, 并不断循环。本工程二期夏季总冷负荷为2326KW(200 万Kcal/h), 冬季总热负荷为1744KW(150 万Kcal/h);在动力中心增设制冷量为23269KW(200 万Kcal/h)水冷离心式冷水机组1 台作冷源;并且在动力中心增设供热量3489KW 的燃气真空热水机组1 台,二、三期合用采暖用2908KW,卫生热水用581KW。本工程三期夏季总冷负荷为1744KW(150 万Kcal/h), 冬季总热负荷为1163KW(100 万Kcal/h);在动力中心增设制冷量为1744KW(150 万Kcal/h)水冷离心式冷水机组1 台作冷源。
04 项目整体和局部的实景图片

西南透视

东北透视

西南立面

西南透视

东北透视

主入口透视

南向透视

急诊入口

门诊入口

公共卫生楼

入口大厅

放射科候诊

中央大厅

门厅

中央大厅

医疗街

二次候诊

一次候诊

病房转角

小庭院

入口立体交通

屋顶

入口水景
05 项目设计图

总平面图

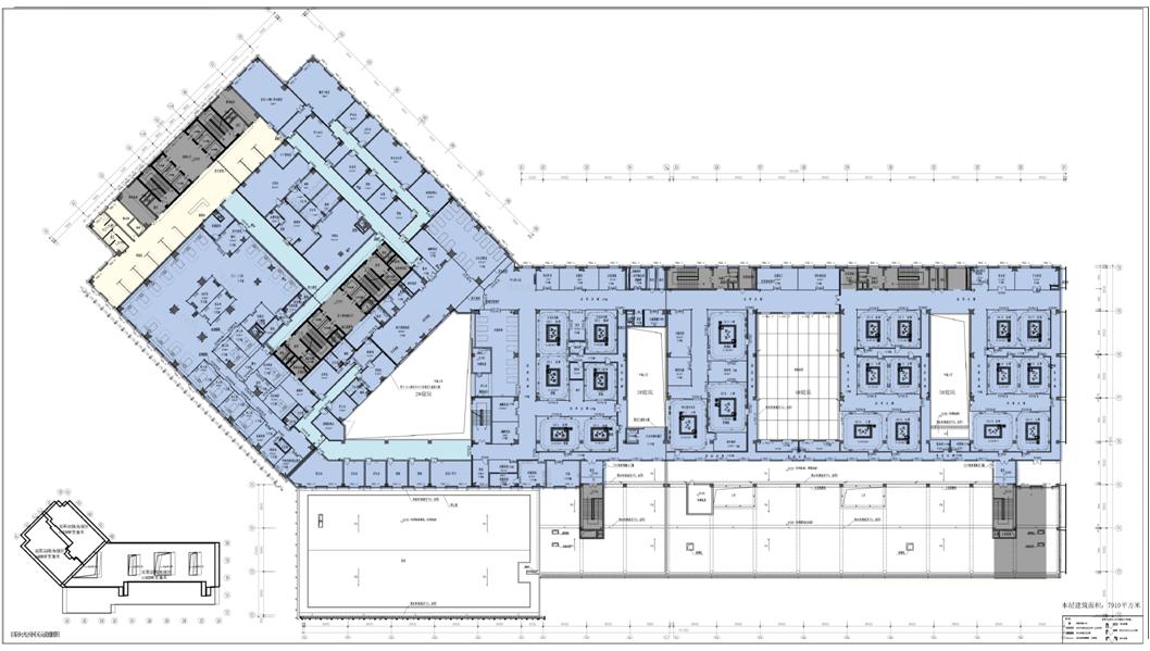
一层平面图

二层平面图

三层平面图

四层平面图

五层平面图

标准层平面

立面

剖面

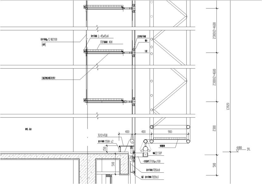
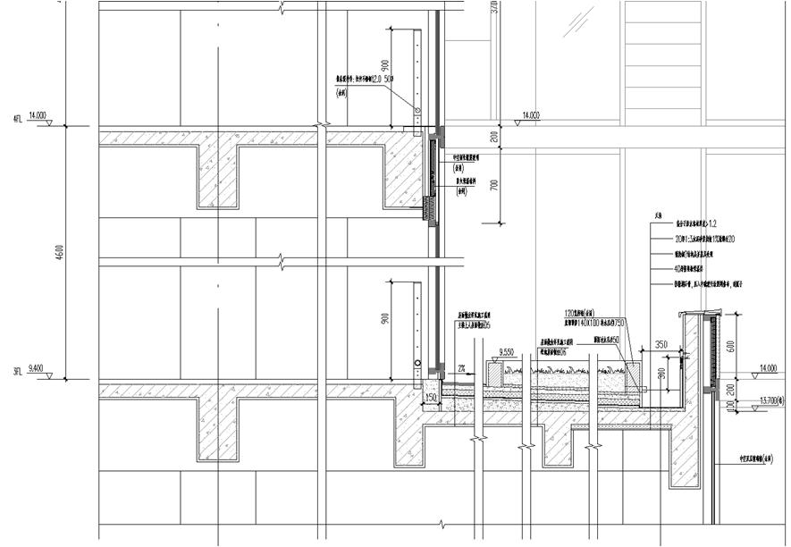
节点

节点
06 设计团队
设计单位:浙江省建筑设计研究院设计总负责人:陈志青建筑:姚之瑜、张瑾、阮良通(前职员)、骆高俊、朱余博结构:林可瑶、陈海啸、许强给水排水:马慧俊、张建良、李峰、杨婷电气:王燕鸣、杨顺华空调通风:辛高峰、沈惠根(前职员)室内装修:刘文选、邹元章、何晓丽【中国美院】室外景观:向涛、陈晓河、林丹峰【中国美院】室外工程:沈璐莹、魏金辉医疗工艺顾问:董永青【睿勤永尚】合作设计:高桥正泰、利田纯一、叶晓健、龙田草间雄(前职员)、西川耕二、井田宽 【日本设计】
资料来源:全国医院人文建筑奖申报评选资料
整理编辑:王晨