
浪漫,复古,优雅柔长,奢华,激情,沁人心脾。
一处位于北京西山脚下的家庭第一居所,奢华与浪漫的联结是居住者的气质体现。本案为半山别墅,由于建在半山处,别墅没有地下空间,地上共计四层,一层主要为公共区域,客厅,厨餐区,二三层为生活居住区,四层为书房休闲区。



























相关图纸
对比原始结构,本别墅做了较大结构上的调整,贯穿整个别墅的中心庭院在二三层做了封闭,保留了一二层挑空,但做了比例尺度调整,原有的楼梯结构、电梯井道全部拆除,形成楼梯环抱电梯,电梯为观光梯,增加楼上楼下通透性和趣味性。

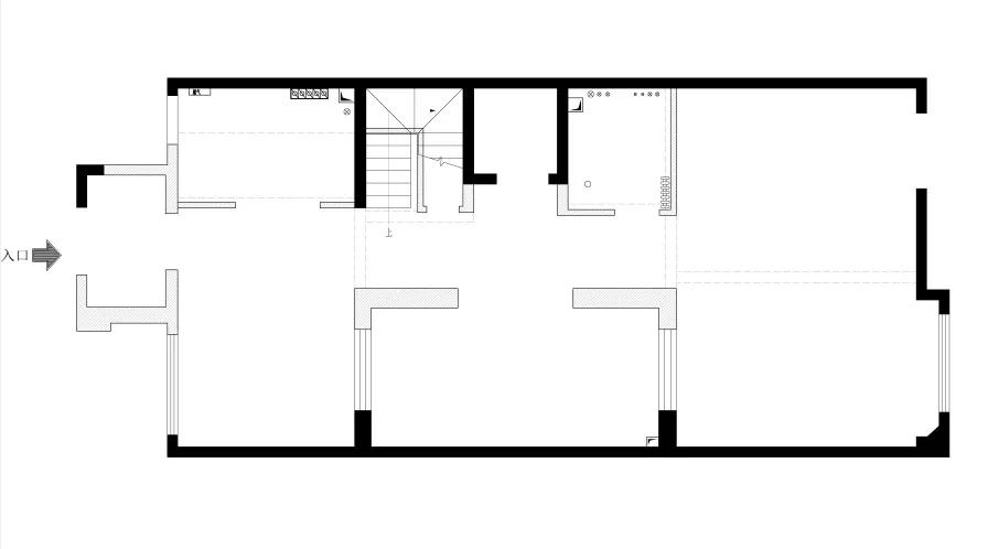
△一层原始平面图

△一层平面图
一层功能上增加了开敞式衣帽区,厨房位置做了改动,比例尺做了调整。

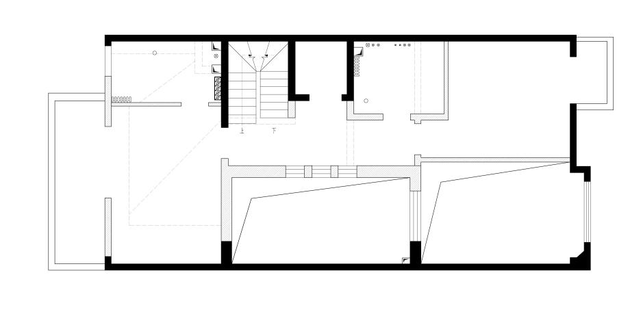
△二层原始平面图

△二层平面图
二层为家人居住层,一个儿童房,一个老人房,一个儿童活动区。

△三层原始平面图

△三层平面图
三层为主人层,独立套间,超大的衣帽间和卫生间。四层为休闲书房区,顶面做了玻璃顶,最大限度保留自然光线。

△四层原始平面图

△四层平面图
四层为休闲书房区,顶面做了玻璃顶,最大限度保留自然光线。
项目信息
项目名称 | 奢华 邂逅
地 点 | 中国 北京
项目面积 | 500㎡
设计单位 | 东易日盛
服务方式 | 设计、施工、主材代购、软装设计及落地
主案设计 | 雷铭
设计团队 | 刘腾 张逸凡 黄立 周志斌
设计时间 | 2019.01
完工时间 | 2020.04
项目摄影 | 李文涛
设计师

东易日盛高级主任级设计师 雷铭
设计师雷铭,私宅设计师,从业12年,致力于打造有居住者自身气质的高品质生活空间,12年的高端私人住宅设计经验让他在思考,设计师更像一个心理咨询师,要捕捉业主的喜怒哀乐,充分挖掘业主的潜在需求,一个好的设计师要有敏感的专业洞察力和理性的逻辑思维方式,控制空间的情绪变化。一个好的设计不是做装饰,是在做人文,做情感,做故事。