▪考拉小匠▪
本期的屋主是一对勤劳「996」的年轻85后夫妻
伴随着女儿的长大
不得不开始考虑学区房这件事
在奔波辗转于数不清的「老破小」之后
夫妻俩相中了一间30㎡的小屋
小归小却足够优秀
房子位于上海超具浪漫文艺气息的马路之一
老房子独有的岁月质感
隔离了世俗的喧嚣和庸扰
还有一个免费附赠的20㎡的小院子
世外桃源的“假象”
又多了一层安逸美好

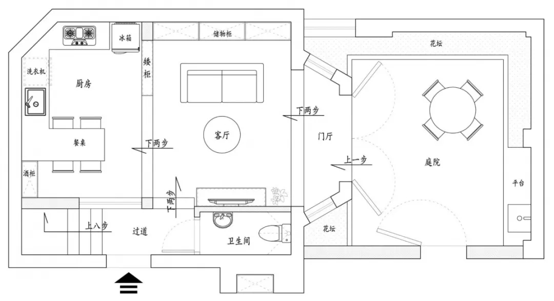
房屋改造前其实是一栋老式洋房别墅楼的一楼客厅
层高约3.3m,没有厨房和卫生间
房屋信息
坐标:上海徐汇
户型:一室一厅
面积:32㎡
费用:28万
原始户型图

改造需求
作为长期居住的住宅
客厅、厨房、餐厅、卫生间、卧室一个都不能少
想要花园和落地窗
房子虽小储藏面积一定要充足

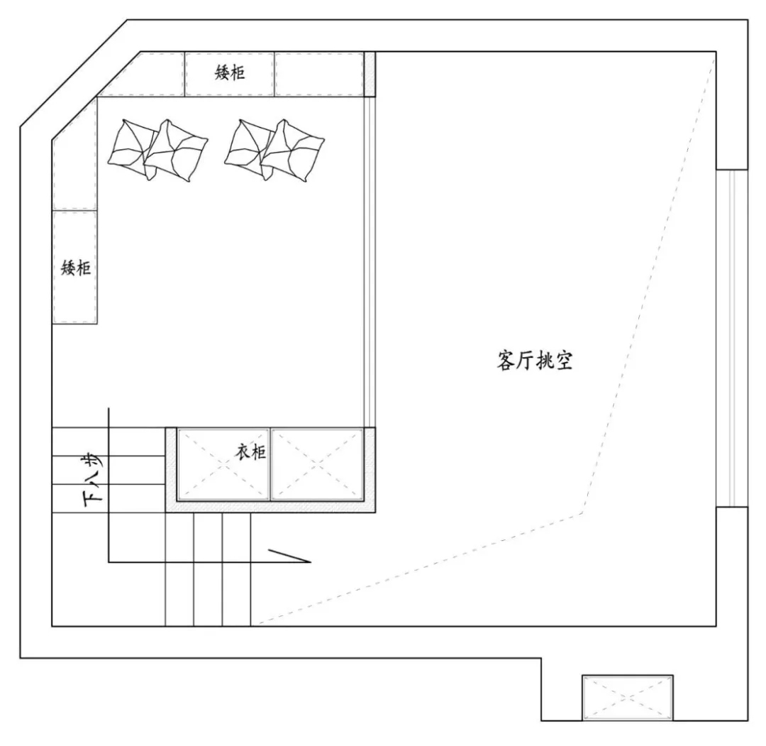
在设计团队经过现场勘察后
发现了一个将近60公分的通风架空层
拆除后层高变成了3.9米
利用了这个老天赏饭吃的层高优势
在2.1米的地方搭建了钢结构的二楼楼板
形成了上层卧室下层厨房餐厅的格局
在进门右侧的地方新增了卫生间
打通了阳台增加室内的面积

二层平面布置图
院落

改造前的院落


小院子的地面全部用的防腐实木
不怕阴雨天
光脚就可以在院子里玩耍
院门和墙面上方加高的栅栏也是定制的防腐实木


L型夹角由花坛改为防腐木长凳
可以在院子里招待客人
开狂欢的party
葡萄架下地面铺上暖黄色的小石子
划分区域又装饰了院落

最爱最有意义的就是这个葡萄架下的秋千
有没有一秒向往的生活的feel


院子小景


客厅

没有特定想要的风格
只希望一切都是融洽惬意的
因为是为女儿准备的学区房
希望房子里有童真不幼稚的元素

野兽派的复古沙发
宜家的几何图形靠枕
Ferm Living的拼接地毯

沙发背景墙是定制的一面高柜
满足了屋主收藏和收纳书籍的需求
因为特殊的层高
做了三层的设计
玻璃半透、层板敞开式、门板全封闭
让单调的书柜有了层次感
装饰性也很强

设计师提议在书架上安装滑轨梯
这样让楼梯使用起来时更加安全
还有一种仪式感

沙发左侧结合书架做了一个方格子矮柜
装一些客厅的“杂七杂八”
还完美隐藏了厨房的小混乱

竹制摇马同样来自老上海时期
藤面电视柜购自致家家居

设计师打通了原先的梯形阳台
将阳台的空间挪到了室内

阳台抬高的设计小小划分了空间

两侧落地窗和大落地玻璃对开门充分引入自然光
采光绝对的一级棒

可坐、可躺的台阶榻榻米
给这个小房子又多了一种可能性

玻璃面藤编圆几是老上海时期的物件
和这栋老洋房很搭

屋主舅舅的根雕小品
真像一只小狐狸


铁艺小鹿造型花架依旧是老物件一枚
一捧钻石翡翠长势喜人

从餐厅看向院子
餐厨

上卧下厨的格局一目了然
L型的橱柜充实了厨房的使用和收纳

因为户型自身的结构
下沉式的餐厨区
不仅成功了与客厅做了分区
视觉上还很有设计感
这60公分的高度不是一般房子能拥有的

餐厨区的地面是这两年又回春了的水磨石
彩色的花纹复古又时髦

餐厅左侧的墙面
中间做了一个木纹边框的“假窗户”
增加了空间与空间之间的互动

餐桌就在靠窗的位置
不仅座椅不同
还有长条凳的加入
自身复古的外表下又多了几分形式感
他们每一件都不简单

餐桌为老榆木实木定制
Art deco风格的拱形镂空靠背皮座面餐椅
也是设计师在老货仓库实地验货后入的
特别有CP感的伸缩吊灯海淘自德国中古灯具店
藤面餐椅来自某宝韩国代购
长凳是网红品牌二黑木作

伸缩吊灯

SMEG咖啡机和面包机
给生活增加仪式感
提升生活品质


鲜花总能给生活带来芬芳的生气

老榆木特有的纹理

桌面底下的造型有点中式
座椅是藤编加木质的组合


格纹轧花玻璃底下的小酒愿望

吊灯的拉手是实木的小球
L型的上下两层橱柜
做了高低的设计

只有2.1米的厨房么有安装抽油烟机
选择了电陶炉
比电磁炉火力足还没有燃气的油烟

电陶炉烤箱灶:倍科
洗碗机、洗衣机:西门子
冰箱:韩国大宇

八九十年代宜家出品的笑脸小台灯
是意大利淘来的老物件
楼梯走廊


走向二层卧室的楼梯
选了纹理粗矿的橡木
搭配用来遮挡难看强电箱的民族风挂毯
毫无违和感

三种木纹
存在即合理

壁灯来自Kartell
底下装钥匙的三层抽屉盒
是来自海淘的颜料盒
卧室

直接睡木地板上
因为层高有限
四周做了半圈抽屉式的矮柜
满足收纳,顶部还可放装饰品

加深了衣柜的深度
可以放下榻榻米床垫

扶手栏杆也使用了橡木
为了不让粗犷的纹理破坏柱体造型的秀气感
刷了白色封闭漆
卫生间

卫生间是名副其实的麻雀虽小五脏俱全

白砖嵌黑色双腰线
黑白马赛克地砖
年代感十足

搪瓷台盆、花洒、马桶全部来自Molly-飞机头

两层的壁龛满足基本的卫生间收纳
背景选择了地面的马赛克
关注“考拉小匠网”公众号,了解更多装修攻略
一个公正透明的装修服务平台