我是云栖建筑小编,每日分享乡村建房精美案例,点击上方“关注”,每日获取最新精美案例呦~

项目名称丨北京通州刘家中式别墅终稿
项目位置丨北京通州
建筑尺寸丨16.67*22.50m
建筑面积丨242.68㎡
建筑风格丨中式
结构形式丨砖混结构
——
生活于现在繁忙的都市之中,谧境难寻,车水马龙,而中式小院,独一无二的“天人合一”思想,是专属国人的精神和文化,也是一种境界与智慧。
建筑效果图

东南侧人视图
该项目位于北京通州,终稿为一层中式别墅。场地的南侧是胡同,东侧、北侧为村里主路,西侧为邻居。
外墙质朴、淡雅的白墙瓦黛,主体白色真石漆,屋顶采用黑瓦,结合进深尺度的不同形成不同高度的双坡屋顶组合,丰富建筑层次。


庭院局部人视图
要说这世间最雅致的院子,一定非中式庭院莫属。
在院落打造上,透明的落地玻璃被用作室内与室外院子的隔断,院中青竹与白色砾石点缀的风景明晰可见,*坐静**,听经,品茶,心境通畅平和。


庭院局部人视图
起居室、茶室外围绕庭院的连廊成为室内外过渡和交融的灰空间,可设置室外*团蒲**、座椅等,使得庭院与室内空间的相互交融,有效的提升业主一家的生活品质。

东北侧人视图
鸟瞰效果图

东南侧鸟瞰图

西北侧鸟瞰图
建筑整体白墙黛檐,错落有致,万千气象徐徐舒展。建筑风格契合汉文化的建筑文脉,采用中式建筑风格和日式元素,并加以简化和改进。
把建筑、植物、佛禅文化、人文有机地融为了一个整体,创造依托与自然,但不失人文特色的天人合一,同时呈现一派清幽雅静的意境。

东北侧鸟瞰图

西南侧鸟瞰图
西北侧平屋顶做了半包围的阳光房,并且伴随L型的露台,可以欣赏到变换的景色,步移景异。
院子是文人心性的内观,更是东方审美的外化。青砖黛瓦、木门铜锁、树影婆娑,是记忆里的中式小院。
平面详图

一层平面图
西南侧开放式餐厨与茶室、客厅空间过渡自然,方便屋主在料理时与朋友闲聊、交谈,视觉上也显得更为开阔。
南侧一角则作为会客的茶室,有禅意中式的休闲感。
总共设计了四间卧室,西北角两间卧室还带一处小庭院,使室内更加通透自然。

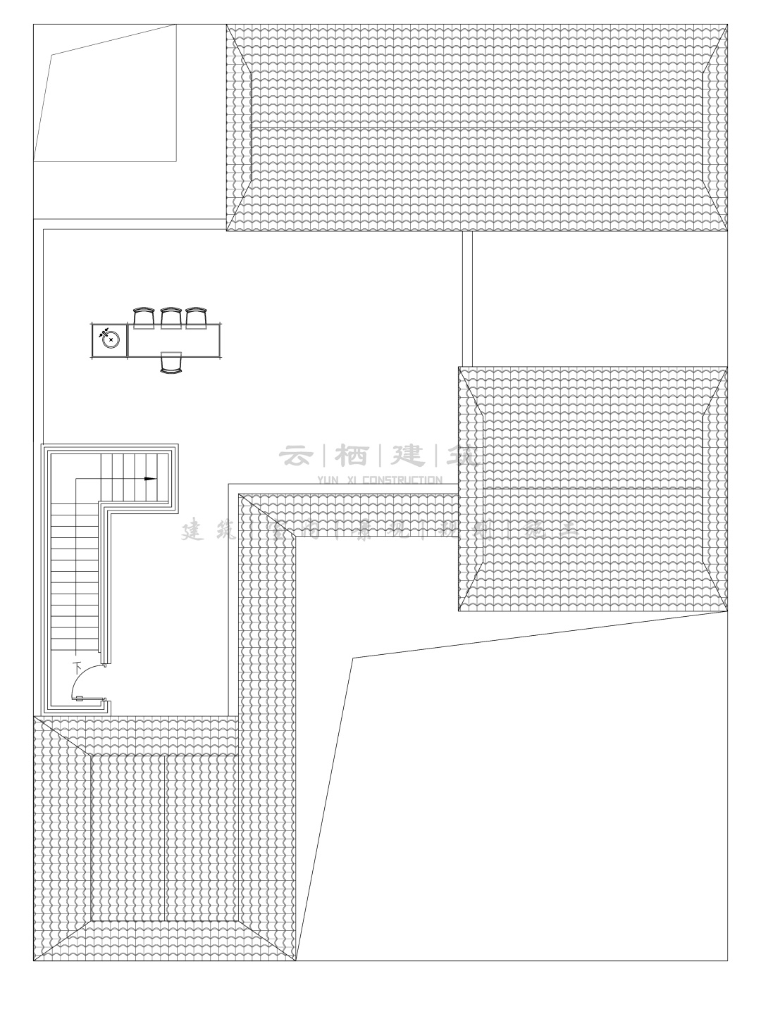
露台平面图
屋顶为一处休闲露台,在远离城市喧嚣的平台之上,可以与家人交换心情,也可俯瞰街道胡同的烟火与落寞。

这样与世独立、世外桃源的中式小别墅,也很不错。这两款你更喜欢哪一个呢?
(初稿可点击近期文章的链接查看)
北京通州丨242㎡一层日式风别墅,将生活过成诗
愿我们每个人心有所属,奋斗有标
盖房子是大事,一生只一次
我们建的不仅是房子,更是生活
云栖建筑
设计改变生活、让一切从美好出发
建筑丨室内丨景观丨规划