
海南文昌赵家(916)
- 建筑地址:海南省文昌市
- 建筑风格:高端订制,现代
- 建筑尺寸:13X10
- 结构形式:砖混结构
- 建筑面积:294㎡
- 土建造价:41万
委托项目申请
项目概况
项目位于海南,周边建筑基本为农村常见的1~2层房屋。项目业主是位追求简洁生活的人,现代风格的别墅与业主性格极为相配,同时也与四周景色相衬。项目东侧为道路,其他三侧为绿地。

【鸟瞰效果图△】
户型设计

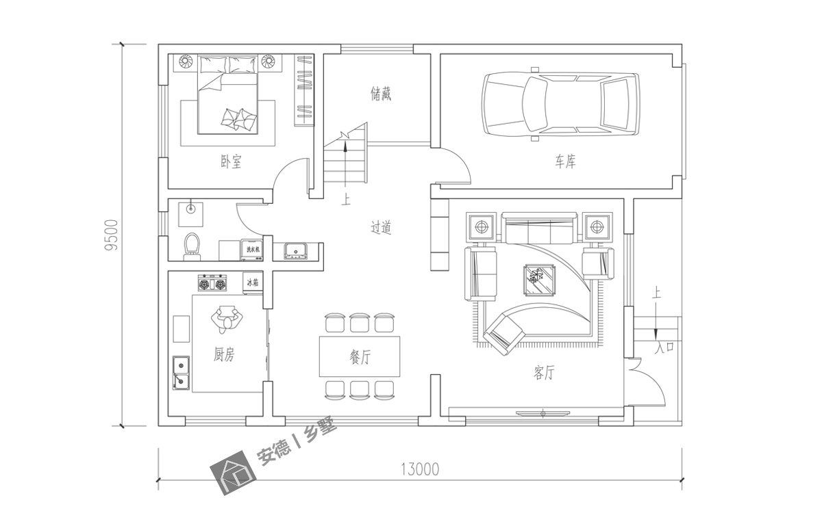
【一层户型图△】
本项目东侧入户,东侧放置车库,入门为客厅,厨房餐厅相连,一个卧室为老人房,距离公卫很近,楼梯下储藏。

【二层户型图△】
二层设置四个卧室,其中主卧配有衣帽间和卫生间,次卧有卫生间,起居室面积适中,并且在东南西分别有各自空间的阳台。

【三层户型图△】
三层有一个超大的杂物间,并且有一个超大的阳台,会让人视野特别好,结合周边树木,是一个休闲的好去处。
效果设计
建筑整体为现代风格,立面采用白色真石漆、砖材、清水混凝土等打造素雅造型,局部墙体加高在平屋顶中营造出层次感,体块间的留白扩展开房屋领域。

【东北鸟瞰图△】

【西北侧鸟瞰图△】

【南立面△】

【北立面△】

【西立面△】

【东立面△】