

▲ 项目面积107平,造价46万,项目坐标:广州,重新规划设计后的新家焕发生机,结合三代同堂的居住需求,将公共空间完全打开,榨干每一寸,实现空间利用最大化

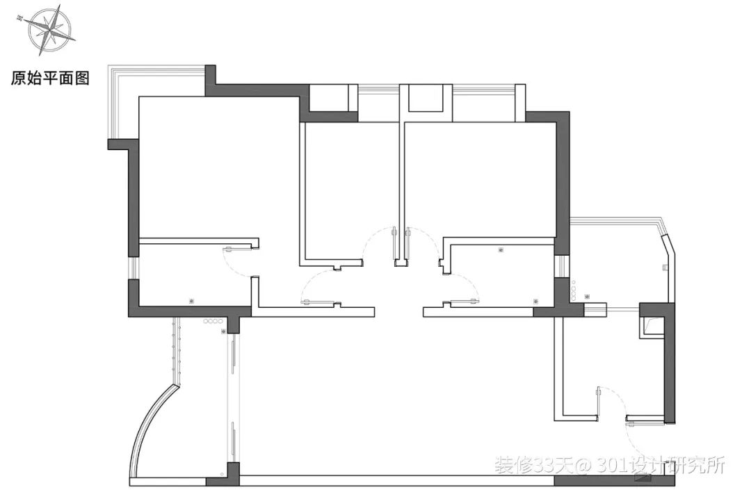
▲ 原始结构图

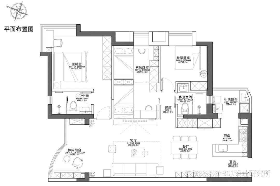
▲ 平面布置图

▲ 拆除进门右手边的厨房隔墙,为玄关增加采光,靠墙设置换鞋凳与挂衣钩,满足基本的入户需求

▲ 玄关柜中部留空可随手放钥匙等小件,黑玻柜门内嵌灯带主要用于藏酒

▲ 买菜回来可以顺手放到厨房里

▲ 开放式厨房L型布局,设置半高隔墙能遮挡备餐时的杂乱,往里走是生活阳台

▲ 餐厅,现代餐桌椅搭配简约吊灯,右侧还做了一组餐边柜

▲ 餐厅小景

▲ 客厅纳入阳台,为两个孩子腾出更多活动区,无主灯顶面设计灯带、筒灯和磁吸灯,为空间提供多层次照明

▲ 沙发背景加入格栅木饰面与线性灯让空间表情更丰富,阳台一侧摆放成品柜,台面和墙面用来展示照片

▲ 茶几特写

▲ 电视墙与儿童房之间加入玻璃砖隔断,透光的同时还保证了私密性,左侧门片后是主卧

▲ 阳台望向整个公领域空间

▲ 利用原本过道,扩大小房间面积,打造出了拥有各自独立区域的双儿童房

▲ 定制榻榻米节省空间,边上摆放书桌椅

▲ 儿童房二,沿墙做衣柜与书桌柜一体

▲ 书桌小景

▲ 主卧,背景装饰画呼应了空间色调,细节提升装饰效果,用边几取代床头柜,小巧又实用

▲ 利用窗边拐角位置新增一个梳妆区

▲ 简洁干净的浅色系卫生间
文字编辑 | 东东
设计:301设计研究所(广州)
关注公众号:装修33天,可获得设计师更多信息
版权声明:装修33天出品,未经许可不得转载。