今天是第 009 期#家装故事#
装修得好是故事,装修不好就是事故

▲
屋主:月月
户型:3室2厅
建筑面积:102㎡
坐标:湖北-武汉
装修费用:25w,含中央空调暖气(5w)及家具家电
包工方式:半包,乳胶漆和水电材料5.5w
监理:装小蜜
一 风格篇
月月的家,位于汉江边上,过条马路就是江湾体育公园。网红古田桥横亘江上,淡淡的普鲁士蓝,和历历晴川、悠悠白云交融,是大武汉最独特的底色。

▲
古田桥
当初把家安在这儿,正是因为大阳台能尽收360度江景。

▲
夕阳下的汉江
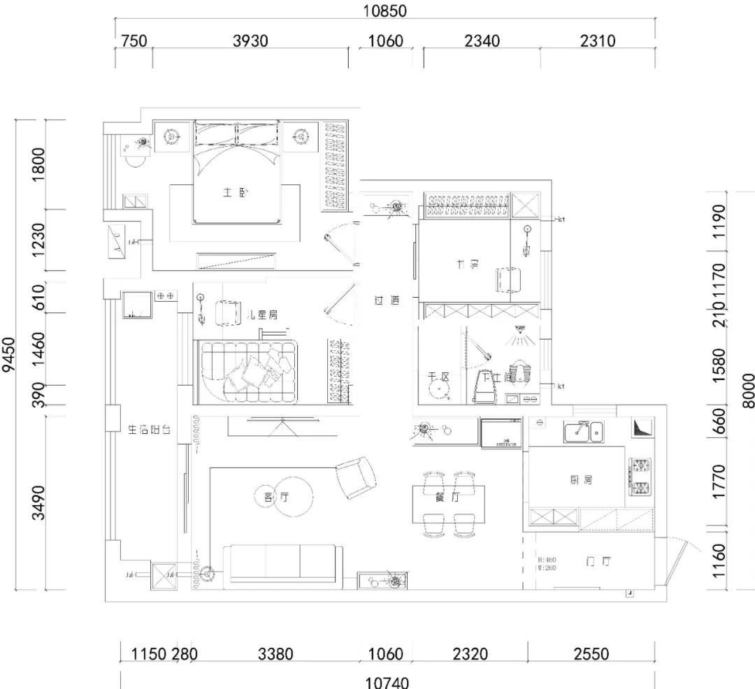
原始户型图:

▲
户型方正,采光好
户型布置图:

月月喜欢简单风格,选择了北欧风,全家色调以白色+灰色+木色为主,部分墙面跳北欧风色系的蓝和绿。
1 玄关

玄关地面铺六角小花砖,龟背竹图案是北欧风标配,还在抖音上小火了一把。玄关和客厅交界处地板和砖无缝拼接。
墙面颜色为浅灰,进门左边墙上是挂区,木制洞洞板和挂钩、搁板组合;右手墙内嵌入顶天立地柜,配金色把手,中空展柜安装灯带照明,既美观又实用。

玄关墙上多用金色装饰物和金属挂钩,金属色是北欧风推荐的跳色选择,能让家更显高级感。
2 餐厅

全房无石膏线,客餐厅四周吊平,房间内叠级吊顶。
因为客厅的电视背景墙刷成浅绿色,餐桌椅也配两把同色系,既跳脱,又统一。
3 客厅

-
电视背景墙是清新的薄荷绿,非常养眼。北欧风造型的灯和茶几,都是白色加金属色。软装上则运用了灰色的沙发,粉色的躺椅,绿植,颜色搭配十分和谐。

4 阳台

阳台用大大的落地窗,保留360度收景。
做为一个梦想着阳台花园的人,阳台吊顶是必须的,防腐木吊顶和INS网红米家邦先生晾衣架顺势登场,颜值很高,后期使用也方便,四杆可以直接晒床单被子。

阳台的墙面还采用了地砖上墙,用的也是网红款瓷砖,月月非常喜欢。

接下来开启一大波美图模式:
5 厨房

6 主卧



7 次卧

8 书房

9 卫生间

二 装修篇
作为前全包公司的前员工,在这个行业浸淫多年,月月也有自己的经验分享。
1 月月家装修时间线
2019年
4月17 砌墙
4月22、23 中央空调、暖气进场
4月24 中央空调、暖气完工
4月26 封装阳台
4月28 水电交底
5月18 水电验收
5月25 找平、包管墙地固
6月3 木工进场
6月18 瓦工进场
6月20 木工验收
6月26 油漆进场
7月13 油漆完工
7月18 美缝完工
7月24 洗衣机安装
7月24 阳台门套安装
7月27 阳台吊顶
7.29 晾衣架安装
8月1 门安装
8月2 刷面漆
8月4 地板安装
8月9 灯具插座安装
8月26 柜子安装
9月10 暖气片安装、硬装上岸
9月16 洗碗机安装
9月22 家具进场
9月22 洗衣机安装
10月8 窗帘安装
10月31 安装
双11采购、搬家
11月13 冰箱安装
12月 全部软装
2020年
1月3 毕业
-
2 全包、半包、清包
月月之前在装修公司做过5年企划,呆过几家全包公司,其中有两个已经倒闭。她做企划时,对整个武汉装修行业进行过市场分析和调查:
- 全包公司:一站式服务,拎包入住,对外宣传都是所有全含,但事实上并非如此。全包公司收费标准有三种,套餐、按平方计算、按工程量计算,但以上计算方式均不含拆墙、个性化设计、找平等等,这些均属于增项部分。套餐如12万全包,里面用的主材可能是一二线品牌的基础款,如果基础款看不上,就得另外加钱。要么主材全用最差的,或者装修公司特供款。还有部分全包公司为了竞争,故意漏项少项,这也是常有的。以她的切身接触,全包公司基本大节小节都做活动,有时送的家具家电都是已经断货的款。并且,营销型公司的设计师基本都没什么经验,实习两三个月就可以上岗,实际上就是销售。所谓套餐,就是先把你套进来,再吃了你。
- 半包公司:半包含水电、油漆、木工、瓦工、泥工工费以及所用的全部辅料,不含主材、门、窗、地板、地砖、封阳台、卫浴、衣柜、橱柜、开关等。关于主材部分,建议团购,自己单独买只会花冤枉钱,所有涉及到颜值及品质的东西建议自己采买。目前半包公司占武汉市场份额的一半,半包报价大概在450-600元/平左右。
- 清包:清包就是所有材料全部自己购买,到螺丝钉都要自己买。这种适合对装修比较了解、而且有时间的,基本上天天都需要去工地上盯着。
- 设计工作室:武汉的设计工作室,大部分都是有很多年工作经验的设计师自己单独出来开的工作室,以设计为主,收费在80-200元/平不等。一般工作室也做半包,就是设计+半包,或者全案设计,主材由工作室代购。月月是平面设计专业,所以比较能理解做设计的,客户要求比较高,一张图反复修改无数次,对于收费设计持支持态度。不过她家装修预算有限,只能接受100元/平的价格,选择了设计工作室设计+半包。
3 装修必备装小蜜,避坑首选!
月月和装小蜜结识,源于武汉最大的本地生活交流与服务平台得意网。
买房后,月月就一直泡在上面,看到好多意粉都在推荐装小蜜第三方监理,开工前就豪不犹豫地选择了装小蜜把关。虽说她在装修公司做过几年企划,但工艺和材料方面也只是略懂,为了避坑,选择装小蜜,2000多块钱换来工地质量,很值!
月月购买的是装小蜜11次上门服务,开工前有专门帮业主审合同的监理,会告诉你预算中产生的漏项和重复计算项,以及哪些项目单价过高。
第一次和装小蜜监理申工见面,是体验装小蜜当时的一元验房服务,开启了武汉首家先验房后交物业费的先例。她在装小蜜平台预约了监理申工来验房,申工提前半小时到小区,专业又认真地把每个房间全部敲一遍,然后一一画上记号,等等,验收了一个多小时,最后指出,房子整体质量不错,只是有大面积墙面空鼓。当晚,申工就出具了验房报告,让她把验房问题清单交给物业整改。


▲
装小蜜监理现场验收
之后,每次施工交底,申工都会跟项目经理和工人详细交待施工技术标准,验收时也不放过每一个细节。装修过程中有什么疑问,申工基本上是有问必答。


▲
水电施工现场


▲
监理检查日志
月月说,选择装小蜜是她装修中最正确的选择。她很感谢装小蜜提供了这么好的第三方监理平台,站在消费者的角度替消费者解决问题,也很感谢得意粉为她提供的这些信息。
4 空调、暖气
中央空调:大金B系列一拖四,费用3.3万,统一售后安装;
暖气:菲斯曼24KW纯进口,明装暖气片5+1组,因层高较低只能选择暖气片;

▲
中央空调安装

▲
大金报价清单
月月家是中间户,书房正对连廊,外面没有设计空调外机隔板,因为这个事情还去维权了两次,但并没有办法解决。
为了避免多年以后外机坠落的风险,她和老公一致决定装中央空调,中央空调出风口部分全部是用的兔宝宝木芯板加固。
5 封阳台
费用,520元/平108断桥,广东型材,开窗大概500元/扇,总共不到7000块钱,性价比还可以。
6 主材
(1)全屋定制
月月家选择的全屋定制是兔宝宝武汉红安工厂店,多层实木和生态板大概545元/平,柜门兔宝宝模压295元/平左右,全房26平柜子,都用的橡胶木的柜门+5米橱柜,共计3.3万搞定。
顺便来看月月科普市面上比较常见的几种板材:
- 生态板:也叫免漆板、三聚氰胺板,多用于柜体,指接板+饰面板组成。一般木工打柜子用的较多,定制用的较少,因为大面积使用,时间长了会导致柜体变形。
- 多层实木:由三层或多层单板或薄板的木板胶贴热压制而成,夹板一般分为3厘板、5厘板、9厘板、12厘板、15厘板和18厘板六种规格,特点是变型小、强度大。
- 模压(密度板):其实就是锯沫板,是以木质碎屑施加合成树脂,在加热加压条件下压制成的板材。由于结构均匀、材质细密、性能稳定、耐冲击,密度板性价比很高,但由于是胶粘合成板材,注意下甲醛含量。密度板按照其游离甲醛含量多少可分为E0级、E1级、E2级,E0级甲醛释放量为≤0.5mg/L。在选择密度板时,应尽量购买甲醛释放量低的商品。密度板的最大缺点就是不防潮,见水就发胀,握钉力也较差。
- 爱格板:爱格板其实就是进口的密度板,简称刨花板,但环保等级要比国内的好很多。爱格板的取材选自生长在欧洲大陆寒带的针叶树种,克服了天然木材的缺点,具有不易变形和稳定的物理性能。爱格板可以达到实木的效果,但成本要比国内的密度板贵很多,目前武汉市场上授权代理的并不多,所以选择时一定要问有没有代理协议。
- 橡胶木:这里的橡胶木和橡木,本质上有很大区别。橡胶木多产于东南亚、云南、海南一带,也是乳胶的原料来源。橡胶木纹理、结构细致,装饰效果与水曲柳、榉木、橡木相似,适合不喜欢密度板,但是又想要实木的人群,性价比较高。市场上有很多宣称是橡木的家具,很有可能是橡胶木,判断的标准很简单,红橡木纹理粗旷,橡胶木几乎看不见纹理。
- 红橡木:又称栎木或柞木 ,我国北方经常说的柞木家具材质就是中国橡木。橡木是温带植物,主要产区是俄罗斯、北美。红橡木的颜色、纹理、特征及性质会随产地变化,其木质硬度大、密度高、稳定性强,最常用于地板、大型家具板材,所以红橡没别的毛病,就一个字贵!
(2)门窗
市面上大部分门还是实木复合门,选择的时候不仅要看颜值,还要看填充物,有很多黑心商家用的是蜂窝纸填充。月月还特地研究了一下静音门的原理,就是中间加了桥洞板。
月月定了两套木门+卫生间极窄门+书房极窄推拉门+所有门套窗套,门窗类共计花费2.23万。

▲
书房门

▲
室内门
木门量完尺寸去店里交钱时,老板说门洞太矮了,只有2.05m,除开门套净尺寸只有1.9m,做出来不好看。后来和设计师商量,把原始门洞的过梁拆了,做到2.3m高。最后落地价格1.4万左右,实木复合门1699元,门套单包100一米、双包150一米。
入户门开发商配的太差了,于是换了奢曼门,猫眼是海康威视萤石,鹿客Cassic指纹电子锁支持米家APP远程和开关锁记录。

▲
入户门
阳台门为了实用和好看,换成了三联动的门吊滑。

▲
阳台门
(3)墙漆
墙面是居家日常和用户交互最频繁的硬装工程,也是装修中的重中之重。
墙面甲醛是装修里最严重的地方,也是最容易让大家忽视的地方。
腻子的主要作用是找平墙面,对技术要求十分严格,窗户口、门口、家具墙面必须垂直,其他地方误差不能超过0.5。很多腻子师傅为了好挂腻子,都会往腻子粉里掺801胶水,801胶水所含的甲醛释放期长达3-10年。
墙面工程总共分为几个部分,粉刷石膏墙面找平-刮腻子两遍-打磨一遍-底期一遍-面漆两遍。为了刮平墙面一般都会上两遍石膏两遍腻子粉,石膏直接用粉刷石膏,这个是最环保的,但是施工难度大,工钱是普通腻子工的两倍左右,腻子粉价格顺序为优力邦>蚁巢>立邦>美巢。面漆一般建议门和柜子装完后再刷第二遍,深色漆补的话容易有色差。
月月家腻子粉用的是美巢800JJ,腻子粉、石膏粉共花费3000块钱。PPG大师彩色漆,4套多一点儿,花费4800元。
(4)地板
地板月月家选择了瑞士卢森地板,因为她之前在装修公司上班多年,知道卢森地板,所以自家装修豪不犹豫的选择了它家。
月月选择的理由是:
- 颜色好看,选择性多,适合北欧风格;
- 团购价格符合预算范围;
月月最初考虑过实木多层,但多层板最薄的都有1.5m厚,无奈层高太低放弃了。对比了实木地板、实木多层以及复合地板,最终选择的是复合地板,扛造、耐磨、易打理。
当时选了几个颜色,一直在D4956和D3126中间纠结,最后交给老公决定,选了D3126,铺出来效果还不错!

▲
D3126色号
全房地板总计60平左右,进门玄关处用了六角砖拼接,卢森的师傅安装技术相当不错,无缝对接,全房工字形贴法加三个房间通铺,按房门算价格,一个房门100块,地板和砖硬碰是100一米,为了减少压条的使用,客厅和阳台交接处都没用门槛石直接淘宝上买了根金属压条,效果不错。
踢脚线选择的是6公分,白色实木踢脚线。

▲
踢脚线

另附月月家开关插座规划表,仅供参考:

