故障现象
外地客户寄修一台iPhone6,说是无铃声,打开铃声机器反应慢卡顿,其他功能正常。
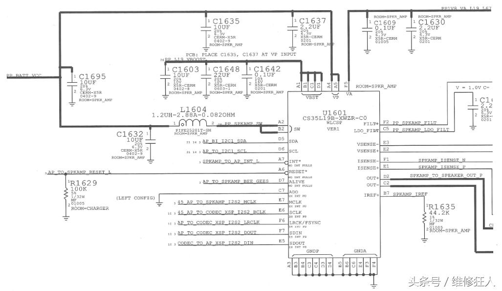
万通手机维修培训学校-维修过程
按开机键开机进入系统,更换铃声测试,确实无声音且卡顿,插入耳机测试故障一样。
关机拆出主板目测发现音频放大器有焊接过的痕迹,且有一角有点破损的痕迹,如图

打开电路图找到音频放大器U1601页面,找出音频放大器U1600的供电、复位等工作
条件脚位,如图所示。单板通电测量音频放大器U1601的供电、复位正常。

工作条件正常,接着查音频放大芯片的总线,把音额放大芯片拆下后测音频放大芯片的
I2S2总线对地二极体值,发现音频放大芯片F6的AP_TO_CODEC_XSP_I2S2LRCLK信号
对地二极体值偏低。F6脚位如图所示。

查电路图发现AP_TO_CODEC_XSP_I2S2_LRCLK信号线同时连接到音频芯片U0900和主CPU U0201,如图所示。
目测发现音频芯片U0900旁边有焊油,也有焊过的痕迹,如图所示。
直接拆掉音频芯片U0900后,再次测量AP_TO_CODEC_XSP_I2S2_LRCLK信号线的对地二极体值时已恢复正常四百多。更换新的音频芯片,把主板装到总成上,开机进入系统测试铃声功能正常。


