这对60后夫妻的新家,直接拔高了我的审美!
年轻人总爱“吐槽”父母那一辈人的审美,花开富贵的背景墙、大红大绿的花布罩、猪肝红色的木地板等等,有着挥之不去的『土味感』。
但吐槽归吐槽,这些又真的能代表60年代人们的审美吗? 答案是不能,看完本期这对60后夫妻的家,你一定会有所改观!
话不多说,赶快来参观下屋主的新家吧!

▲装修实拍图
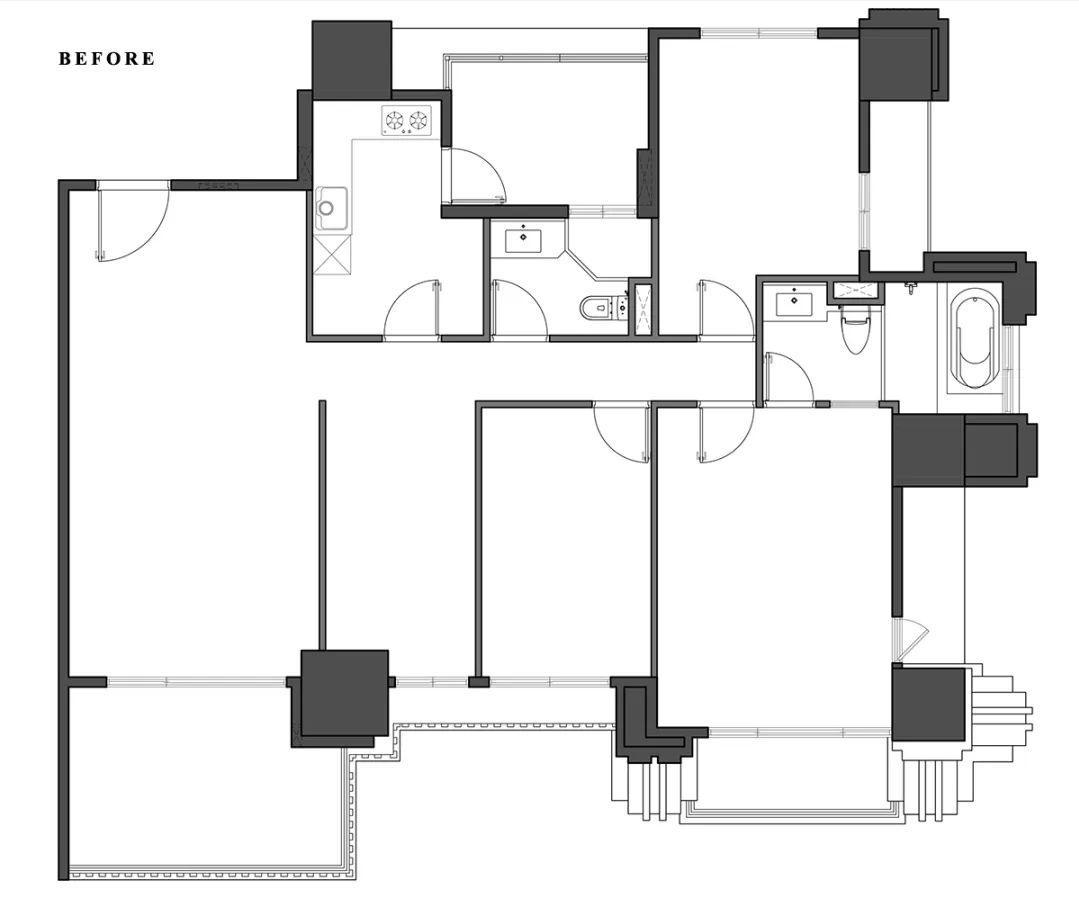
//户型分析//
- ①整屋套内面积约125㎡,原户型是四居室的,格局较为方正。
- ②房子的楼层不错,坐北朝南,采光和通风性都非常好。
- ③缺陷是厨房和南向两间次卧的面积都比较小,使用起来略显局促。

▲户型平面图
//设计亮点//
- ①整屋的设计风格是现代轻奢风,配色以黑白为主,简约又不失高级感。
- ②把客厅隔壁的卧室,改造为开放式书房,可以自由切换私密/开放两种模式。
- ③重组厨房布局,一半做开放式设计、与餐厅相连,一半做封闭式设计、避免油烟飘进客餐厅。

▲装修平面图
玄关
入户玄关定制了顶天立地的储物柜,用栅栏面板做隐藏式柜门,弱化了柜体的存在感,看着更像是一面背景墙。
柜子的中间留出一部分空间,做抽屉、开放式柜格和换鞋凳,换鞋凳在不用的情况下可以“藏”进柜子里。

▲玄关实拍图
客厅
客厅原本空间不算大,装修后旁边的书房做了半开放式的设计,厨房也融入了一半空间到餐厅内,所以显得客厅开阔通透。
屋主很时尚地选择了无主灯设计,照明依托筒灯、射灯和灯带,层次感更强。

▲客厅实拍图
电视柜占据了一整面墙的空间,黑色柜体搭配白色柜门,用岩板打底、内嵌隐藏式灯带,高级感不言而喻。
“有藏有露”的柜体,让电视柜兼顾了储物、书柜和展示的功能;中间留出电视机的位置,视觉感简约 大气。

▲客厅实拍图
客厅和书房之间除了推拉门以外,还增设了一道天然石材隔断,自然的纹理之中带着一份细腻感,彰显了屋主的高格调审美。

▲客厅实拍图
客厅、书房、餐厅和厨房,四个空间形成了良好的互动性,加强了家庭成员之间的联系,夫妻俩既能做自己的事情,又能时刻兼顾到彼此。

▲客厅实拍图
书房
书房的柜体设计,和玄关柜有“异曲同工之妙”,两侧是栅栏门高柜,中间做悬浮式书桌和书架,造型简约又高级。

▲书房实拍图
靠窗的位置定制了一张1米宽的榻榻米床,可躺可坐,屋主偶尔看书累了,可以躺在床上小憩一会儿;家里若是来亲戚留宿,也能当客房来使用。

▲书房实拍图
餐厨
厨房空间分成了两部分,一部分做开放式设计,与餐厅相连,规划了吧台、烤箱、蒸箱、冰箱和储物柜;另一部分是封闭式设计,入口安装玻璃门,内部安排了洗菜区和烹饪区,可以避免油烟飘入客餐厅。

▲餐厨实拍图
主卧
主卧是屋主夫妻的房间,做了大套间的设计,把隔壁的次卧纳入其中,增加衣帽间的功能,简直就是人间理想啊!
这个卧室面积很宽敞,朝南有一面大落地窗,采光和视野俱佳,很适合老年人居住。

▲主卧实拍图
背景墙的设计也是花了心思的,中间用石膏板做造型,左侧增加岩板和灯带,内容丰富又呼应主题,看着就很高级。

▲主卧实拍图
窗前安装了一层百叶帘和一层遮光布艺帘,这种组合不常见,但却既实用又美观,屋主可以根据需求来调节进光量;晚上直接拉上布艺帘、不透光,保证更优质的睡眠质量。

▲主卧实拍图
床尾空间规划了衣柜和抽屉,中间是衣帽间的入口,用灰色玻璃推拉门做隔断。

▲主卧实拍图
衣帽间左侧的衣柜门,采用了镜面材质,能起到放大视觉空间感的作用。

▲衣帽间实拍图
左侧采用了开放式衣柜,可收纳屋主常穿的衣服,拿取一目了然。

▲衣帽间实拍图
尽头处还设置了梳妆台,方便女主梳妆打扮,即使到了迟暮之年,依然要保持姣好的容貌,这源于女主对生活的热爱。

▲衣帽间实拍图
【本期总结】
不得不说,本期这对60后夫妻的家,真的是既高级又实用,每一寸空间都显得很有质感,值得借鉴!如果你也喜欢本期内容,欢迎点赞收藏!
想了解更多精彩内容,快来关注甜茶的极简生活