
面积:98平方
风格:清新北欧
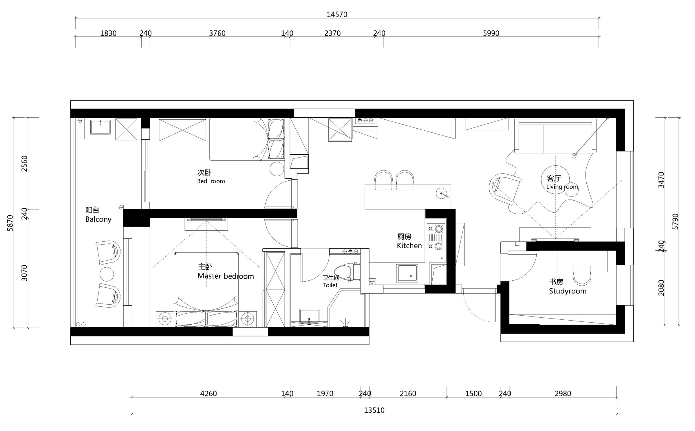
户型分析

超高层建筑房屋购置率低。房子的建筑面积是97.29,只有71面墙被拆除。大多数墙都是承重墙。此外,住宅区不允许有阳台,这导致了非常仔细的空间布局。
副卫星区域又小又暗。小马桶占据空间并遮挡光线,马桶的预约管道非常靠近门。
针对目前住宅类型存在的问题,设计者提供了三套解决方案。
开放方案

放弃次卫,把空间合并到公共区域。厨房改为开放式,餐桌成为开放区的中心,中岛和工作台。
居中方案
在不敲墙的前提下,次卫被改造成一个衣帽间。
传统方案

充分利用原来的设计,不要做太多的改变。
尽管以餐桌为中心的开放计划,处女座的主人还是选择了最保守的方案,以便完全避免厨房里的烟雾和溢出。
玄关

玄关又短又窄,不适合大型鞋柜。
北欧风格的鞋柜和地毯尺寸小,颜色浅,缓解了小空间的压抑。


宜家石窟板配有不同的配件,以满足各种接待需要。

《纪念碑谷》同款盆栽
客厅

夹边套的客厅朝北,照明也不特别好,所以起居室的设计重点在于亮度。
轨道灯取代了主灯,具有大浮窗和轻型家具,轻盈温暖。

这台电视机墙上有一个架子,以满足吃饭时看电视的小愿望。
圆形地板具有年轻的色调,木质纹理和北欧工业风格。
墙壁上涂着淡绿色的乳胶漆,非常清新,不是娘炮。

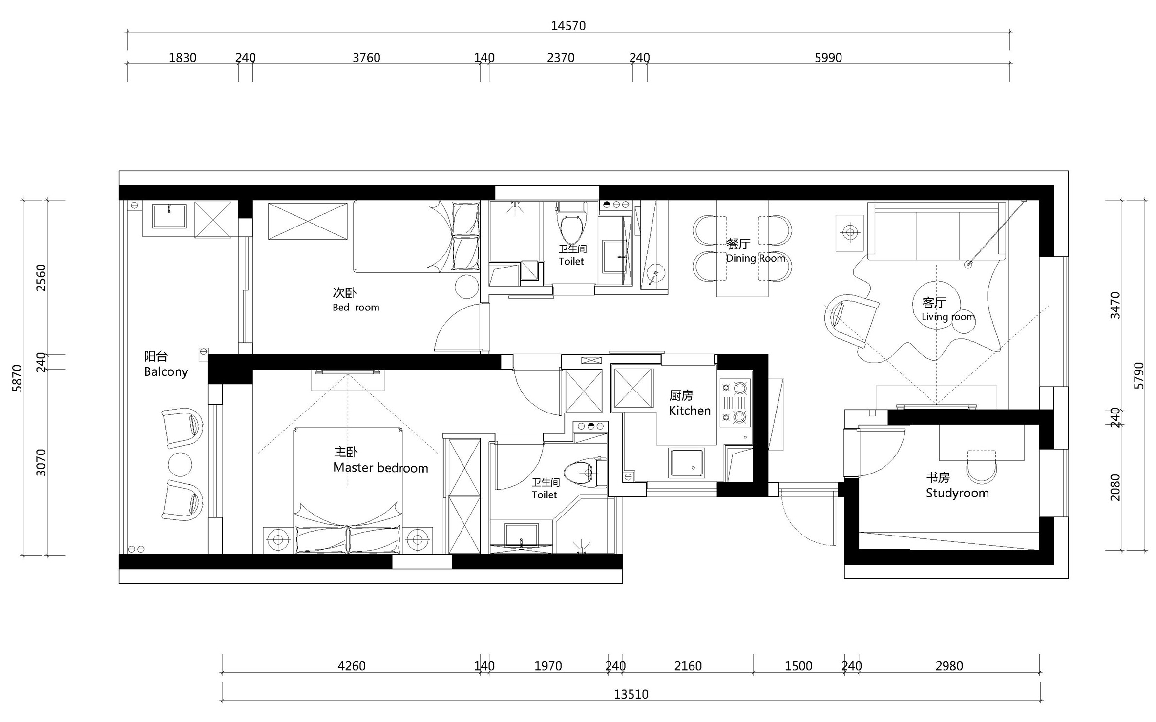
餐厅
简单清爽的原木色餐厅家具以及地板。

一方面,增加了具有水吧功能的侧柜。安装咖啡机、净水器和自动火锅。幸福指数上升。
从镜子里你可以看到厨房的黑框玻璃谷仓门。
在架子上,主人收集的杯子整齐,下面设计一个隐藏的槽灯,以确保光线。
主卧
主床头柜、床头靠背、浮窗一体化设计,采用MUJI无靠床,整体风格清新简洁。浅灰色的背景墙和水泥灯增加了一点寒意。
餐边柜很适合分拣。衣架是PIY红点奖得主。
这幅装饰画是挪威的一个风景区。传说情侣们站在悬崖之间的石头上。如果不是真爱,石头就会和人们一起掉下悬崖。
衣柜采用黑色金属活动门的长彩虹玻璃设计。此外,还安装了充电感应柜灯。打开门并点亮它非常方便。
主卫
主卫兵使用灰色和黑色的水泥砖,使风格更加平静和整洁。
大理石地板在中间升起,周围有排水设计,使发射更有效率。干湿分离,操作方便。
主卫兵放上MUJI放松精油和ESOP产品,空气中弥漫着香草的芬芳。
次卧

次卧太小了,床只能靠墙放。
二次卧铺使用频率不高,其设计和布置主要比较简单。
次卫
客房面积小,卫兵面积小,淋浴间有三扇活动门。壁龛和镜柜非常实用。
客卫中放了MUJI的fresh精油。
书房
这些桌子和椅子来自木材智能工作室。哑光木质量很高。
开放式礼品书房非常小,为了满足接待和陈列的需要,增加了一个书架。

厨房

四平方米厨房抽水龙头、大型单缸、自动吸烟机、洗碗机、冰箱等设备,受到妈妈的欢迎。
橱柜的颜色搭配符合全家的塔式风格。灰水泥砖用于墙砖。它们又稳定又脏。
阳台
阳台的主要功能是观赏风景和空气,因为它是室外阳台,业主自己铺设防腐木地板和鹅卵石,用日本石灯装饰,还是相当惬意。
