车身控制器通常控制车门、灯光、车钥匙、诊断、雨刷和方向盘加热之类的功能,通常都比较简单。不过车钥匙变得越来越复杂,加入了蓝牙和UWB,通常车身控制器不添加这些复杂的射频无线部分,只有最基础的车钥匙部分添加,UWB和LIN通过网关形式接入车身控制器。最新的车身控制器加入运算量略大的SoC,加入以太网通道,主要是应对OTA。再有就是如特斯拉,按照区域增加集成度,车顶、HVAC和座椅之类的也加入车身控制器,传统车厂将这些都是分散开的。

图片来源:福特
上图是某美系车厂最新的车身控制器电路图,大部分车身控制器电路图都大同小异,中间就是最核心的MCU,以意法半导体的SPC56和SPC58系列最常见。

大众MQB37W系列车身控制器框架。图片来源:大众
大陆汽车和博世都有供应大众车身控制器。

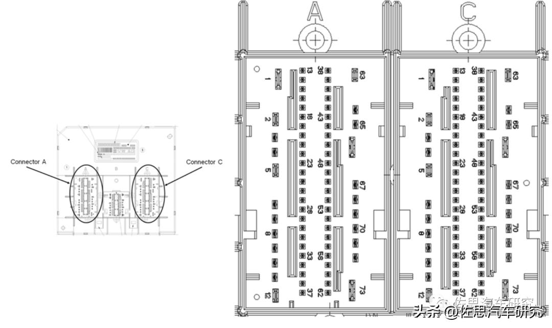
大众MQB37W车身控制器表面接线槽图。图片来源:大众

大众MQB37W传统车钥匙对应电路框架。图片来源:大众

图片来源:大众
大众MQB37W系列车身控制器线路板正面,主MCU是意法半导体的SPC58。

大众MQB37W系列车身控制器线路板背面。图片来源:大众

特斯拉车身控制器框架图。图片来源:特斯拉
特斯拉有三个车身控制器,主控制器位于右边。

特斯拉前主车身控制器正面。图片来源:特斯拉

特斯拉前车身控制器背面。图片来源:特斯拉

图片来源:特斯拉
特斯拉三个车身控制器,拆开后的线路板如上图。其中最为人熟知的是最右边的车身控制器,特斯拉称之为VCFRONT(Front Body Controller),特斯拉是按区域来分车身控制器,传统车厂是按功能,特斯拉做法的好处是线束比较短比较简单,线束成本降低不少,整车装配速度提高不少,缺点是控制器要好几个。特斯拉另一个特色是不用保险丝。特斯拉的分区域车身控制器算不上先进,与传统车厂的车身控制器差异不大,只不过集成度略高。所有的核心芯片都是意法半导体的SPC56系列MCU,比大众的SPC58系列还要略低一点。

图片来源:特斯拉
车身控制器正面,关键的芯片包括意法半导体的SPC56EC74L8,这是一款32比特MCU,e200z4d内核32-bit Power架构,120 MHz下算力200 MIPs,3 MByte on-chip Flash with ECC,256 KByte on-chip SRAM with ECC,6个CAN接口,10个LIN接口,8个DSPI。特斯拉用的是老产品了,大众用的SPC58是新产品,通过了ASIL-B认证,内核也更先进,为e200z420n3,算力更高,运行频率180MHz,片上闪存也高达4224KB,支持接口也更多,包括18个LIN,8个CAN(包括CAN-FD),还有双通道FlexRay。
LV8907,安森美的无刷电机控制器,是控制空调风扇电机的,3个安森美的20A肖特基二极管,型号MBR2045EMFS,安森美的MOSFET,型号NVMFS5C426N,国内安世半导体(Nexperia)的PMEG045V050EPD双侧开关,英飞凌的BTS5020-2EKA单侧开关,英飞凌的BTS5008-1EKB和NXP的PA9539RPW (2),low power I/O port。

图片来源:特斯拉
宝马车身控制器BDC03外观,很容易看出,这是伟世通供应的,上一代车身控制器是李尔的EEDS部门供应的。

图片来源:宝马
上图是BDC03拆开后的电路板正面,最大的芯片是瑞萨的MCU,右边是MCU的供电芯片,中等面积的芯片似乎是一个以太网交换器,应该是一个Broadcom订做的芯片,其右下方可能是物理层芯片。与特斯拉Model 3比,宝马的车身控制器也要先进不少,宝马的诊断和OTA应该更强大。
声明:本文仅代表作者个人观点。
更多佐思报告
报告订购及合作咨询请私信小编。
佐思2023年研究报告撰写计划
智能网联汽车产业链全景图(2022年10月版)
|
自主品牌主机厂自动驾驶 |
汽车视觉(国内) |
高精度地图 |
|
合资品牌主机厂自动驾驶 |
汽车视觉(国外) |
高精度定位 |
|
ADAS与自动驾驶Tier1-国内 |
环视市场研究(本土篇) |
汽车网关 |
|
ADAS与自动驾驶Tier1-国外 |
环视市场研究(合资篇) |
数据闭环研究 |
|
自动驾驶与座舱域控制器 |
红外夜视 |
汽车信息安全硬件 |
|
多域计算和区域控制器 |
汽车仿真(上) |
汽车信息安全软件 |
|
乘用车底盘域控 |
汽车仿真(下) |
OEM信息安全 |
|
域控制器排名分析 |
激光雷达-国内篇 |
无线通讯模组 |
|
E/E架构 |
激光雷达-国外篇 |
汽车5G融合 |
|
L4自动驾驶 |
毫米波雷达 |
800V高压平台 |
|
L2自动驾驶 |
车用超声波雷达 |
燃料电池 |
|
乘用车摄像头季报 |
Radar拆解 |
一体化电池 |
|
ADAS数据年报 |
激光和毫米波雷达排名 |
一体化压铸 |
|
合资品牌车联网 |
专用车自动驾驶 |
汽车OS研究 |
|
自主品牌车联网 |
矿山自动驾驶 |
线控底盘 |
|
自动驾驶重卡 |
无人接驳车 |
滑板底盘 |
|
商用车ADAS |
无人配送车 |
电控悬架 |
|
商用车智能座舱 |
无人零售车研究 |
转向系统 |
|
商用车车联网 |
农机自动驾驶 |
线控制动研究 |
|
汽车智能座舱 |
港口自动驾驶 |
充电基础设施 |
|
智能座舱Tier1 |
模块化报告 |
汽车电机控制器 |
|
座舱多屏与联屏 |
V2X和车路协同 |
混合动力报告 |
|
智能座舱设计 |
路侧智能感知 |
汽车PCB研究 |
|
仪表和中控显示 |
路侧边缘计算 |
IGBT及SiC研究 |
|
智能后视镜 |
汽车eCall系统 |
EV热管理系统 |
|
行车记录仪 |
汽车EDR研究 |
汽车功率电子 |
|
汽车数字钥匙 |
智能汽车个性化 |
电驱动与动力域研究 |
|
汽车UWB研究 |
汽车多模态交互 |
汽车线束 |
|
HUD行业研究 |
车载语音 |
汽车音响研究 |
|
人机交互 |
TSP厂商及产品 |
汽车座椅 |
|
车载DMS |
自动驾驶法规 |
汽车照明 |
|
OTA研究 |
自动驾驶标准和认证 |
汽车镁合金压铸 |
|
汽车云服务研究 |
智能网联测试基地 |
电装新四化 |
|
AUTOSAR研究 |
PBV及汽车机器人 |
造车新势力-蔚来 |
|
软件定义汽车 |
飞行汽车 |
造车新势力-小鹏 |
|
汽车功能安全 |
行泊一体研究 |
造车新势力-理想 |
|
乘用车T-Box |
智慧停车研究 |
Waymo智能网联布局 |
|
商用车T-Box |
汽车分时租赁 |
座舱SOC |
|
T-Box排名分析 |
共享出行及自动驾驶 |
汽车VCU研究 |
|
软件供应商 |
自动驾驶芯片 |
汽车MCU研究 |
|
智能表面 |
商用车智能底盘 |
传感器芯片 |
「佐思研究月报」
ADAS/智能汽车月报 | 汽车座舱电子月报 | 汽车视觉和汽车雷达月报 | 电池、电机、电控月报 | 车载信息系统月报 | 乘用车ACC数据月报 | 前视数据月报 | HUD月报 | AEB月报 | APA数据月报 | LKS数据月报 | 前雷达数据月报