

具浪漫色彩又带着一丝悲悯的巴别塔,IN VIN VERITAS秘境威士忌吧同样带着浪漫与隐秘色彩,“藏”在都市里。
几何结构简单描绘古城空中花园的形态,堆叠的结构错落有致,透过每一道旋开的门或窗,窥视隐秘的风景,这里没有陌生人,所有的心门都是敞开的。V字形的吧台延伸几乎整个大厅,那是月夜下的座谈,围着温暖的篝火。

卢富喜
2022十间坊实战赛全国亚军
获奖项目:IN VINO VERITAS 秘境
颁奖评委:何宗宪、孙建亚、张广坚
全国总决赛现场
设计师是来自广西南宁叁仓设计的卢富喜,“给空间以生命,给设计以灵魂”是他的设计理念。他的决赛项目是《秘境》。
甲方提出的设计需求是主题性强,小资情调,社交属性,以及浓厚的氛围感。结合运营方提出的,设计师思考:酒精是巴别塔之后最终的仁慈,那巴别塔是怎样的?
设计师经过资料收集,筛选了楔形文字,蓝*图色**腾装饰画,以及《汉谟拉比法典》,还有巴别塔这个概念图。设计师希望空间是神秘、浪漫、艺术、神性,充满建筑感的。




面积不大,144m²,甲方预算有限,硬装65万,软装10万。设计师希望在原建筑结构中保留原有的雨棚结构,给甲方减少一些造价。拆除一些造型梁,让室内外的空间更有互动性、通透性。
室内层高条件好,因此想保留原有的阁楼,增加阁楼的可利用面积,让整个空间更具互动感,强化空间中心的挑空局域,让上下楼层的视觉感受更好。设计师围绕中心的吧台区去做空间的视觉感,曲径通幽,让整个空间充满趣味性和独特性。
客人下班来到这里,被建筑外立面的神秘色彩吸引,右边石梯质感的大门便是秘境的入口。


推开大门,来到大门的中间,中间那一抹蓝色将目光吸引,舞台左右两边雕刻的《汉谟拉比法典》文字,仿佛投射出神秘的气息。蓝色区域做抬高处理,使客人能够很好的与调酒师互动。舞台正前方的卡座是客人最喜欢预定的位置,在这个位置留下了许多美好的瞬间。
客人来到吧台,找个位置坐下,点一杯秘境特调秘境森林,环顾四周,心想下一次要带几个朋友来这里聚会。摇曳的烛光,质朴的空间情调,静谧的环境,空气中充满着酒精的味道。整个空间的灯光层次感营造出秘境的神秘感,让客人有了更深的窥探欲。








在设计师的眼里,这里有一场浪漫的邂逅——
你转身想要去往卫生间,这时有个人在人群中注视着你。你在转角处遇到了久违的她,这个女生就是刚才看你的人,你们在这里寒喧了几句,她说我想上二楼走走,整个楼梯廊道的光影室内外互动空间视觉感,让你跟她在这拍了几张照片,留下了美好的回忆。






到了阁楼可以俯视大厅的氛围,不同的空间层次让人有更深的感受。
包厢层高不高但很有情调,在舞台边依着栏杆,倾听音乐,一杯威士忌,安静的音乐,静谧的氛围,你们在这里相爱了。浪漫的玫瑰,古巴比伦的硬朗,这是你精心准备的婚礼。
设计师认为一个空间应该是有故事的,有文化的,有情感的,这些构成了秘境,给空间以生命,给设计以灵魂。

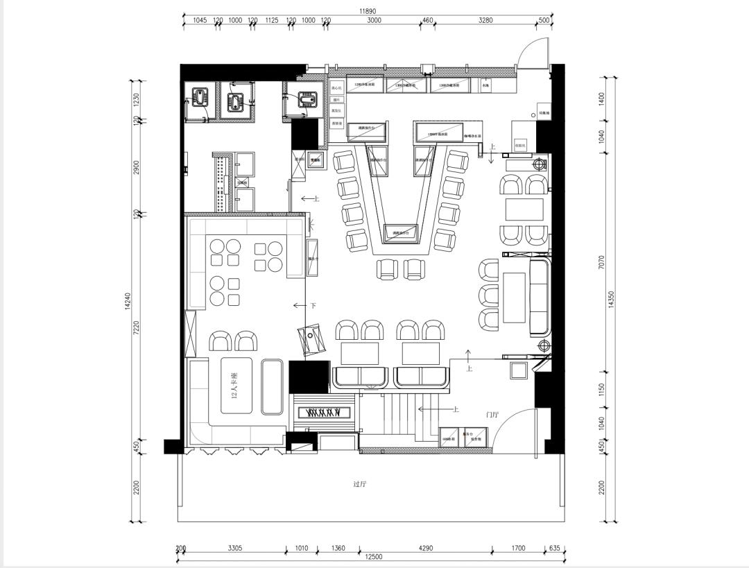
一层平面设计图

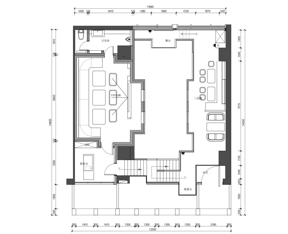
二层平面设计图
决赛项目:IN VINO VERITAS 秘境
项目地址:广西·南宁
项目类型:商业空间
设计机构:叁仓设计
主案设计:卢富喜
参与设计:黄斌宾、庞涵、陈秋菊、黄瑶、黄雅芯
建筑面积:240㎡
项目造价:85w
完工时间:2022.04
指导评委:张广坚、岳晓瑞、姚晓冰
选用品牌:邓恩涂料、博得瓷砖、福瑞斯通超薄石材
/总决赛3分钟实战记录视频/
十间坊
/评委点评/

何宗宪
PAL设计事务所设计董事
你从灯光到整个造型,特别是运用了比较神秘的装饰性,我觉得这很细心。每一个角落都考虑的非常好,我觉得这是一个非常成功的商业项目。但我希望你可以把情怀往后,再有商业项目的时候,控制一下外面的装饰,不要让它过多。刚才的展示非常聪明,让我们有互动的情景,这个方向可以把它发挥的更淋漓尽致。

张广坚
STYLUS STUDIO设计总监/创办人
很浪漫,很诗意。虽然我不太清楚两河流域文化跟威士忌文化有什么关系,但是我感受到那种神秘浪漫。我蛮喜欢你用家的角度思考商业设计,我觉得从思路上去考虑,远比作为设计师我要做什么或我想做什么进去更好,而且这条路是对的。

姚晓冰
YDS Interior Design创始人
我们在接这种案子的时候,甲方一定会找一大堆网红元素,告诉我们什么叫生意好的场。但是在你的思路中,开始先把你的主题说出来,所有的方式用自己的设计手法,从大厅到门脸到KTV,到卫生间,都是统一的元素,做出了当下的网红另外一种的考虑上,你不光考虑装饰面的问题,还考虑不同的人在这个地方打卡会发生的现象,这是作为这种公共场所很难遇见的一种方式,这个细心度直接会给网红店带来后面商业影响,我觉得特别棒。
/有关设计师/

卢富喜
南宁叁仓设计设计总监
由卢富喜先生发起并联合黄斌宾先生、庞涵先生于2017年共同创立的samcham叁仓设计是一支跨界的设计团队,专注商业办公空间全案设计。秉承「给空间以生命,给设计以灵魂」的设计理念,通过国际化空间设计、产品设计研发、艺术装置、软装设计,为全国客户创造独树一帜的形象,发掘其核心价值。不断实践国际化视角和本土经验的完整结合。致力于设计的产业优化,以打造有价值有创意的专业设计为出品标准。平台上的每一位设计师,因共同的理念而汇集在了一起,形成了戮力齐心的设计团队。
策划|Anne、撰文|Laiyla
校审|Michelle
视觉设计|Catherine
图片版权|南宁叁仓设计
出品|十间坊官方组委会
原创内容,欢迎任何形式的转载,注明来源。