项目名称:英国湖滨别墅
位置:英国
设计公司:Mecanoo Architecten

项目指导性设计原则是塑造一个透明性与可持续性相结合的住宅,让别墅与周围景观之间建立一种强烈的联系。景观与室内、建筑与自然环境之间的和谐,尤其是观景线、材料、颜色、照明这些方面都是设计的重要内容。建筑师由内而外进行设计。别墅既对周围景观一览无余,也是充满亲密感的庇护所。所有的这些方面共同塑造了住宅永恒的时间感。别墅位于一片长满树木与植物的绿洲中,这些绿色植物将房子遮蔽起来。沿着水边生长的水生植物与通向花园其它部分的石材踏步交替出现。在水边,别墅可以俯瞰湖面。不同楼层的露台让别墅与陆地、水面相结合,将住宅以欢迎的姿态锚固于自然之中。起居室、厨房和其他房间内的玻璃转角窗,使人感觉仿佛居住在水面上。在住宅与附近地块之间,一座长满了高高树木的山丘,确保了别墅的私密性。别墅通过弯曲的桥与主干道相连,一排完整保留下来的树木确保了私密性,也避免别墅受到道路上车辆等光线的干扰。室内元素如壁炉和储物柜,将房子划分为不同的区域,营造出与巨大的透明体量相比更加私密的区域。在房子的中央,一个通高的空间连接了所有楼层,并由此创造出一系列对角与垂直视线。楼梯把所有的房间都缝合在一起。中庭将充足的光线引入地下室并将室内与屋顶露台联系在一起。在屋顶露台上,人们可以毫无遮挡的欣赏仿佛静静漂浮在广阔湖面上的景色。

英国湖滨别墅外部实景图

英国湖滨别墅外部实景图

英国湖滨别墅外部实景图

英国湖滨别墅外部实景图

英国湖滨别墅外部局部实景图

英国湖滨别墅内部实景图

英国湖滨别墅内部实景图

英国湖滨别墅内部实景图

英国湖滨别墅内部实景图

英国湖滨别墅内部实景图

英国湖滨别墅内部实景图

英国湖滨别墅内部实景图

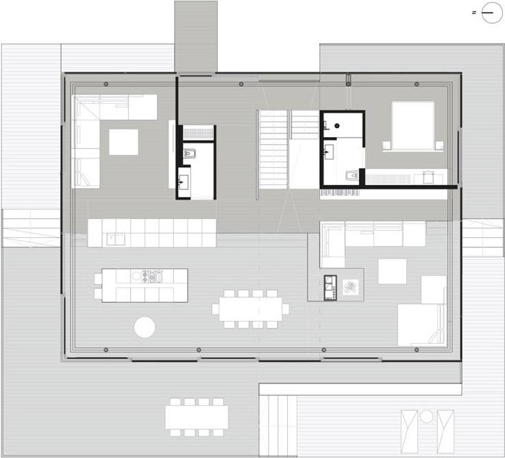
英国湖滨别墅平面图

英国湖滨别墅剖面图