现在很多老板都选择建中式庭院,不仅可以用于住房,做办公楼也是很不错的选择,白墙灰瓦的背后承载着几千年的文化底蕴,讲究的风水,精致的细节,有这样的公司,确实显得品味不凡。
下面这款是 江西省萍乡市胡总私人定制 的三层中式办公楼,端庄稳重的气质,将公司本身的文化内涵凸显出来,可以让客户从这种气氛中对企业建立更多的信任。

品牌:建房说
1、别墅图纸编号:JF20777
2、主体毛坯参考造价: 170-200万
3、占地面积: 731.95平方米
4、建筑面积: 1548平方米
5、开间45.24米,进深20.24米
6、异形柱框架结构,建筑高13.56米
全景展示图





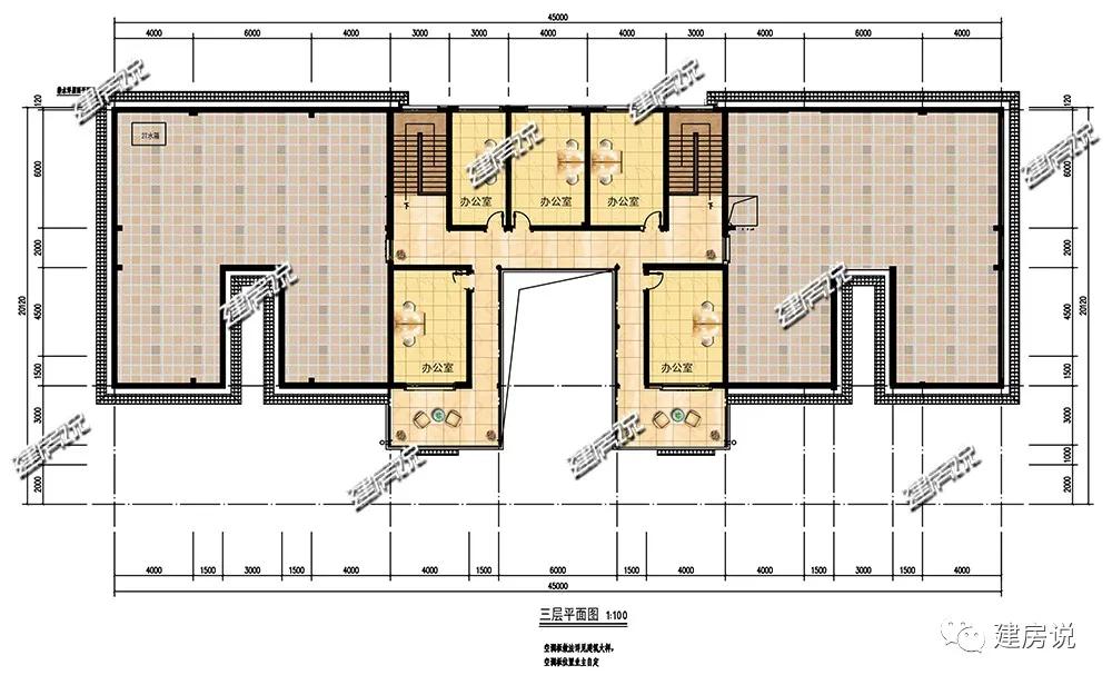
平面布局图



设计功能
一层:2个接待室、11个办公室、文化展厅、活动室、茶水间、茶室、2个设备间、2个洗手间
二层:8个办公室、会议室、3个卧室、衣帽间、设备间、4个洗手间、厨房、餐厅
三层:5个办公室、露台