
她是半道改行的独立室内设计师
用十个月为自己和五岁的娃打造一个全新的家
一整屋的新西兰松木定制家具
在110㎡的空间组成一个质朴宜居的中国风小家
感受过狮子座主妇的智慧与霸道后才知道
原来大刀阔斧的改,也能让家有不一样的味道

认识她

抹小拉
坐标山东烟台, 半道改行的独立室内设计师,但做一个心情愉快的主妇才是人生的终极追求。
房屋信息

← 左右滑动 查看二层平面图 →
户型:三室(顶加阁)
面积:一层75㎡+阁楼35㎡(套内)
花费:硬装18万+软装7万
装修灵感:我的家以中国传统文化、日式侘寂美学和清新干净的北欧风为灵感源头,而在费用不充裕的情况下,尽最大可能做到用环保的装修材料,隐蔽的水电暖工程,环保舒适的实木制作及改善水质和室内空气的设备,都是装修费用中不可省的投入。
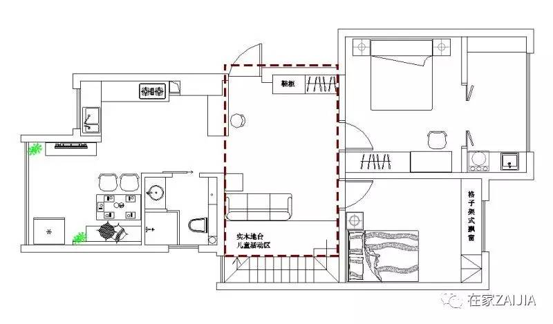
入户&客厅

红色虚线部分为入户及客厅区域平面图
◆ 牺牲了原先的客厅位置做了主卧,新格局可以说是根本没有客厅可言,整个厅包括楼梯下的儿童活动空间大概有20㎡。

门帘 ◆ 网淘•布茗堂
轨道灯 ◆ 网淘•奕婉
收纳柜 ◆ 定制•新西兰松木 拉丝风化纹+擦黑胡桃木色+刷水性漆
◆ 入户的左手边是电视墙,日常进屋换下不洗的衣物均藏于柜内,鞋子全部是洗净入柜。入户门边放置木凳,方便换鞋。

黑色壁灯 ◆ 网淘•南灯记
黑胡桃木边几 ◆ 网淘•凡屋
沙发 ◆ 网淘•嘉美莉 坐垫会起球,慎买
◆ 为了方便先生在家有个放松的区域,配了三人位沙发和电视机。茶几对于好动的小朋友来说是个障碍物,所以果断放弃,选择了小巧的黑胡桃木边几。

◆ 楼梯下方的位置做了实木地台,目前将家里的钢琴安置在此,平时小朋友也会在这儿玩耍。

草编收纳筐 ◆ 网淘•kens
◆ 地台上放置的草编收纳筐,刚好用来藏家里的路由器和网线。
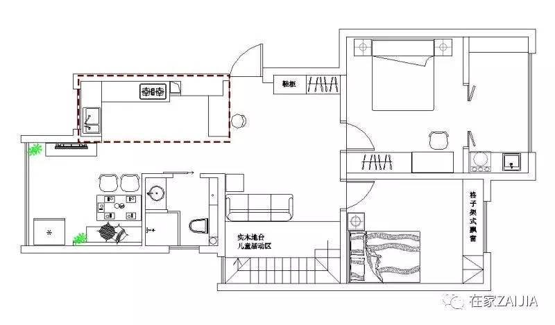
开放式厨房

红色虚线部分为厨房区域平面图
◆ 厨房只有5㎡左右,最好的做法就是做成开放式空间。

地砖 ◆ 网淘•楼兰
◆ 厨房位于入户区右侧,为区分两个区域的功能性,特意定制了吧台式的收纳柜,也让家里的小家电有处可放。第二排烤箱和微波炉后面预留了电源,可连接插排供电饭煲使用。

◆ 收纳柜的板子可以随时抽出,蒸饭的时候也不用担心蒸汽的问题。

◆ 墙面上定制的半开放式吊柜,除了用来放置家里花花绿绿的调味瓶外,还有一个重要的功能:藏电表箱!

吸油烟机 ◆ 西门子 安装在离台面75cm的位置
橱柜木料 ◆ 网淘•自然造物者
◆ 橱柜与家里其他原木定制家具一样,新西兰松木做拉丝风化纹,擦黑胡桃木色,最后刷水性漆。

◆ 为了家里的娃,家里随时随地都需要保持一尘不染的状态。大强哥每天都会爬上灶台,拿大剪刀拆零食的包装,偶尔也会坐在石英石台面上吃完再下来。

厨房墙面砖 ◆ 网淘•佛山恒远瓷砖
◆ 瓷砖上面固定了定制的20mm木质隔板,隔板是中空的,可先固定与瓷砖连接的背板,再固定其方面。主要用来日常用的碗碟,顿顿用,没有必要非要放进橱柜内收纳。

墙面挂杆 ◆ 宜家
◆ 实木隔板下安装了两个灯,因隔板为中空的,所以可直接穿线安装。

水槽、龙头 ◆ 摩恩
白色保温壶 ◆ 爱慕莎
百叶窗 ◆ 本地定制•实木贴皮
◆ 窗边的洗手池是家庭主妇的每日据点,所以台面的舒适度很重要。我家的高低台面高度分别为78cm和88cm,需根据常使用厨房的人的身高来定,我的身高162cm,这样的高度很合适,高低台面的落差一般控制在10cm左右。
餐厅

红色虚线部分为餐厅区域平面图
◆ 餐厅与开放式厨房连接,面积约有10㎡左右。

吊灯 ◆ 网淘•设计师的灯
榆木餐桌 ◆ 网淘•古榆铮舍
◆ 选择餐厅家具时在日式和中式风格之间摇摆很久,最终为了储藏空间最大化,选择了比较原生态的中式老榆木家具,水曲柳实木餐椅是用了十几年的旧家具。

◆ 路过野地时采了一大把一年蓬,回家插进花瓶,放在餐厅里,清香四溢。

冰箱 ◆ 西门子
◆ 将连接餐厅的露台包成了玻璃房,增强了室内的采光。将家里的冰箱放置在这里,离厨房和餐厅都很近。

老榆木边柜 ◆ 网淘•吉祥居老门板家具
◆ 阳光房露台上方加了定制的手动幕布,四周有窗帘,完全不用担心私密性的问题。边柜旁放了颗仿真龙血树,不用照顾也能满足家里想要大型绿植的诉求。

◆ 边柜上方的时装装饰画,是十几年前自己临摹的,一直保留至今,放在边柜上做装饰,没想到效果也不错。
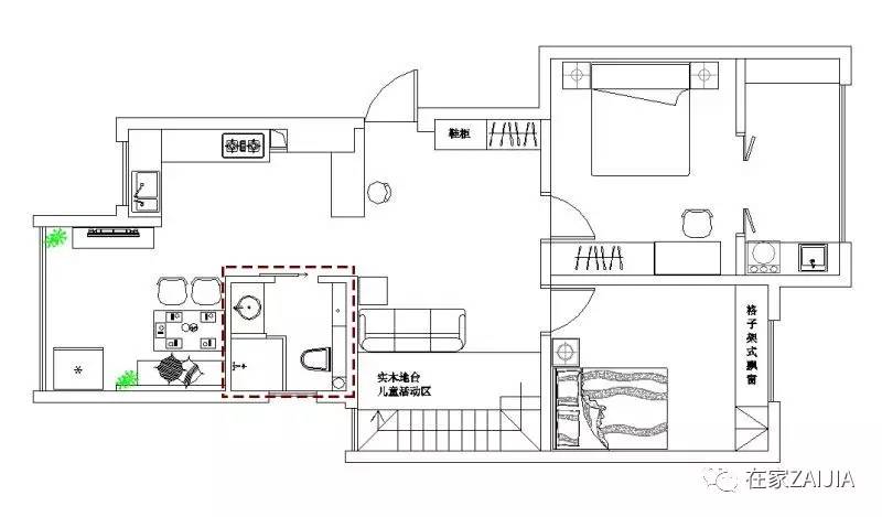
卫生间

红色虚线部分为一层卫生间区域平面图
◆ 一层的卫生间距离厨房只有一步之遥,卫生间装了谷仓门,面积约为4㎡左右。

壁挂马桶 ◆ 恒洁
◆ 一层的马桶装的是入墙马桶,需要将水管和下水管道改到相应的位置,这些在改水电前就需要考虑好。

◆ 马桶旁的白色小门里,藏着地暖分水器、自来水总阀及前置过滤器,塞得满满当当,基本没有收纳的功能。在淋浴区做了挡水沿,能起到干湿分离的功效。

马赛克砖 ◆ 网淘•楼兰
◆ 淋浴区与洗手池之间,用水泥小砖砌了一个隔断,隔断墙的厚度有10cm左右,贴300*300mm马赛克。

洗手盆 ◆ 恒洁
◆ 卫生间的这一面只贴了半墙瓷砖,没贴瓷砖的部分做了防水腻子和防水乳胶漆的处理。

◆ 柜子下面设置了底板,是个可抽式的塌台,家里的小朋友拉出来就可以自己够到洗手池洗手,而用不到收进去的时候,还可以用来收纳一家三口的洗脸盆。
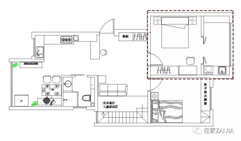
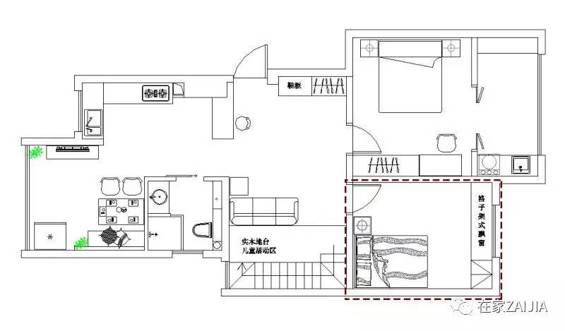
主卧&生活阳台

红色虚线部分为一层主卧区域平面图
◆ 现在的主卧室与生活阳台是由原本户型的大客厅改造的,主卧的面积有12㎡左右,并隔出6㎡做生活阳台。

盒子双人床 ◆ 定制•新西兰松木
◆ 主卧的双人床是自己设计让木工师傅现场制作的,我们称它为盒子床,床垫是嵌进床体内的,大概10cm左右,下面是地暖,没有收纳储物的功能。整个床体四平八稳,牢固度很强,可以日夜承受熊孩子上下蹦达。

◆ 我们一直都是睡着没有床头的床,所以这次新家也延续了以往的习惯。床头的隔板下面,做了十几厘米厚的假墙做床头用,隔板就放置在上方。

◆ 床头柜和小吊灯均来自淘宝,我是一个只求朴素简单的人,所以这种清汤寡水的小家具和灯饰甚得我心。

柜门拉手 ◆ 网淘•定风堂用U型针即可固定
◆ 主卧的内嵌式衣柜,同样是新西兰松木,定制的未刷漆款,保证收纳空间的同时,也能让主卧不再显得局促和压抑。

◆ 衣柜门花了半个月时间为木板做拉丝风化纹,之后做木蜡油擦色,最后刷水性漆。木蜡油推荐欧诗木或碧欧。

书桌 ◆ 网淘•维莎原木
◆ 卧室区域一开始只想做满一排衣柜,后面放弃了,打算空出一半做电视柜,最后成品是书桌加书架加衣柜,现在书桌椅的位置已经拱手让给了家里的小朋友。

藤编收纳筐 ◆ 网淘•kens
◆ 连接主卧的生活阳台,开发商预留了下水,我就将阳台改成了洗衣房和晾衣的地方。

◆ 根据身高和洗衣机高度定制的台面,洗手台离地面的高度为80cm,洗衣机内净高为90cm。

◆ 阳台的另外一侧为休闲区,墙面装了护墙板,用实木板材做的厚隔板,两端在砖墙开槽固定,平时坐在这里晒晒太阳也不错。

◆ 水曲柳隔板离地面45cm左右,按照座椅的一般高度安装。

◆ 阳台的两颗琴叶榕,买回来没换盆也顽强的活了三个月。
儿童房

红色虚线部分为一层儿童房区域平面图
◆ 儿童房的面积约为13㎡。

壁挂新风 ◆ 布朗新风 不带热交换,可打孔安装
◆ 儿童房的墙壁上装了小巧的壁挂式新风,能保证一整夜都能呼吸到清新的空气。

兔耳、羊角小木凳 ◆ 网淘•上形
◆ 靠窗的位置做了有收纳功能的实木飘窗,小朋友的玩具书籍很方便就收纳到飘窗下方的整理箱内。
◆ 坚强哥开始自己睡后的第一张床,小朋友的梦想是可以住在小木屋里,所以特意定制了这个充满童趣的小木床。

边几 ◆ 网淘•治木工坊
◆ 儿童房做了一半护墙,上面刷了灰色墙漆,算是家里唯一的一面彩色墙。
阁楼书房
红色虚线部分为二层书房区域平面图
◆ 阁楼使用面积约有40㎡,小小的空间包含衣帽间、书房、办公区以及最重要的儿童活动区,而且客人来访还要实现客房功能。
◆ 二层书房定制了一大面书架墙,同样是新西兰松木板材现场定制的,榫卯连接的结构非常牢固,装上书之后两个人推都纹丝不动。书架每格的长、高及进深尺寸为70*28*20cm,用来放32开的书籍刚好,而且收纳功能非常强大。
吊灯 ◆ 网淘•南灯记
单人座椅 ◆ 网淘•清木堂
懒人沙发 ◆ 网淘•mamoo’s
◆ 主妇的专用座位,在这里可以读书、听音乐甚至发呆,完全属于自己的空间。
◆ 办公区的椅子,同样是使用了十多年的老藤椅,用了这么久依然美观舒适,从旧家跟着我们搬进新家。
◆ 书房全貌。阁楼的房顶做了白色石膏板吊顶,并在吊顶南北各做了两道木梁,木梁中间可以吊投影仪。
红色虚线部分为二层儿童活动区域平面图
◆ 儿童活动区域做了地台,平时家里的小朋友可以在这里玩耍或读书。
◆ 儿童活动区域的玩具收纳空间很重要,预留足够多空间供小朋友尽情玩耍的同时,也要尽可能利用有限的空间收纳。墙面做了必看用来收纳CD光盘,几个大号的收纳筐用来收纳小乐高和小汽车。
◆ 阁楼的另一个书架,放置在儿童活动区域。柜子高90cm左右,每层的高度在30-35cm之间,同样是榫卯连接的结构,用来放16开的大书本刚好。
CD唱片机 ◆ MUJI
◆ 书架上的唱片机,是朋友送来的乔迁礼物,颜值很高,但音质并不理想。
阁楼卫生间
红色虚线部分为二层卫浴间区域平面图
◆ 与楼下卫生间面积差不多,4㎡左右。
◆ 阁楼卫生间的最高层高有三米,非常适合做水泥工业风,所以墙面没有像一层一样贴马赛克瓷砖,而是让泥瓦工师傅用325标号水泥加汉高水泥固化剂抹的水泥墙面,刷了一层厚厚的醇酸清漆,防水耐脏效果很好。
◆ 不想水泥风浴室看起来太寡淡,可以试试放几棵绿植。
洗手盆 ◆ 网淘•法恩莎
◆ 另一个角度的卫浴间。做了钢筋混凝土结构的台面,后贴的马赛克小白瓷砖,造价并不算低,但好在效果还不错。
阁楼衣帽间
红色虚线部分为衣帽间区域平面图
◆ 衣帽间在二楼,阁楼衣帽间可用面积大概5㎡左右。换季比较麻烦,需要楼上楼下搬动衣物。
◆ 因为是坡顶阁楼,高墙部分全部做成壁挂式货架,空间拓展性较强。在低矮处做实木柜子做为衣帽间和更低矮的斜坡角落之间的隔断,把可用叠放的衣物都收纳柜内。
她的家没有精致的海淘家具
大刀阔斧的改造风格及精挑细选的家当
也能让家温暖宜居,有不一样的味道
打造家的方法有很多,如果你也有不同的想法
不妨留言给宅sir勇敢晒出你的美家
也许下一个上头条的就是你的家!
福利来了
宅sir将选出2位留言精彩的盆友,
赠送 Joseph Jopseph 免粘系列不锈钢夹子
快快积极留言参与哦!
若想了解购买,可点击文末下方的阅读原文
更多可以买得到的好物,
点击微信号内的商店链接,马上找到。

关注“在家”公众号
这里有专家,也有生活达人
等着与你聊生活谈美学
或许你还喜欢
策划、执行/里里 图/屋主提供 文/屋主、里里
版权声明
在家原创内容,欢迎个人分享至朋友圈。
如需平台转载或商务合作,请联系
微信号:TrendsZaijia006
案例图片未经同意,请勿擅自使用,侵权必究!
↓↓点击阅读原文,即可进去微店!