1
判断一个城市区位的未来发展前景,除了政策之本、产业导入,最直观的表现就是看哪个板块附近的超高层建筑最高或最多。
这类既象征城市门面,又代表城市文化核心的建筑(群),一定程度上从地块出让的那一刻起,就自带万有引力,吸引着城市里的高净值人群和相对更高的商业文明。
如果没有超高层,也可以从楼盘的配套入手。特别是商业综合体,它就像一个人的亲朋好友,体量越大,自持比例越高,越完善,附加值也就越高。
在温州,当一个住宅项目自带约330米摩天大楼+约70万方“巨无霸”商业综合体+一线江景资源+老城成熟配套+CBD时,会引起怎样的轰动效应?
这就是时代·滨江上品的魅力所在!

△ 项目效果示意图
△ 项目效果示意图
2
一方是源起温州的老牌开发商——时代集团,它塑造了时代海景、时代滨江、时代中心等见证温州城市发展历程且颇具脍炙人口的江景大宅。
一方是在温州先后开发了“万象天地”系列的中高端住宅项目,又以“全业态综合体”的形式打造了“温州万象城”的华润置地。
关于万象城的带动作用,可以参考深圳湾万象城。

△深圳万象城夜景
这座总体量达到120余万方、包含华润大厦“春笋”、华润深圳湾体育中心“春茧”等九大业态的超级湾区地标综合体,不仅标示着中国商业的全新高度,还让更多人看到城市与梦想结合焕发出的更多可能。
如今,从深圳湾到温州滨江CBD,华润置地全新湾系产品系,类似的造湾传奇正在温州书写美好——华润置地准备在老港区二期项目带来更高端更先进的商业模式,打造浙南最高端的“万象系”。
或许,也只有如此强强联合,才能在能级上匹配板块内仅有的一线江景大盘。
约70万方的万象系综合体,是温州迄今为止体量ZUI大的城市综合体地标:包括一线瞰江大宅、一栋约330米的超高层写字楼、约12万方万象城商业综合体、奢尚产权式酒店、缤纷万象商业街、高端江景酒店等多种业态。
这就相当于在温州CBD中芯区再造一个中心!
不仅如此,源于对作品的尊重,也作为华润置地在温州划时代的作品,华润置地携手全球设计天团,将建筑美学转化为生活美学,在温州创建一座跨越时间、汇聚全球智慧的艺术品。
这群来头不小的国际大师级团队是这样组成的——
约330米超高层地标:美国GP建筑设计有限公司
滨江CBD万象城项目:香港Lead 8
产权式酒店:上海日清建筑设计有限公司
住宅建筑设计:Gad 浙江绿城建筑设计有限公司
住宅景观设计:上海朗道景观规划设计有限公司
约330米超高层建筑让瓯江南岸的城市天际线更为饱满立体,时代·滨江上品的业主在家门口就能到超高层写字楼上班或创业,从容且不失格调。
万象系综合体则是弥补了片区内一只缺乏大型高端商业综合体的短板,特别是类似珠宝行、名表、高端皮具、精品超市、高端餐饮、影院等温州老百姓高频次消费的场所,一应俱全。
加上温州市民中心、温州人家园的行政资源,银行总部大楼、金融中心等城市高段位的第三产业与世界500强总部经济的辐射,使得这块寸金寸土的爵版宝地,成为温州面对世界的城市之窗。

△ 老港区保底方案示意图
事实上,回顾2019年时代·滨江上品首开即罄,三开三捷,哪怕是千万级的华宅也被一抢而空,狂揽超70亿元,充分说明温州人对老港区的情有独钟和价值肯定。
去化之神速,成为年度现象级的代表事件。
就连个别业内人士也感叹:时代·滨江上品将温州的华宅推向了一个新高度——有江景资源,已经不能完全匹配世界温州人的身份认同。
从这个角度,早先入手且买到的购房者,现在估计在暗暗欢喜。要知道,江景大盘时代中心的二手房均价已超约6万元/平(数据来源安居客)。
不过,对于一部分尚未抢到的购房者而言,仍有机会——时代·滨江上品四期新品(11号地块)即将面世。

△ 项目地块示意图
3
时代·滨江上品四期新品的项目位于11号地块,占地面积约31亩,建筑面积约11.6万㎡,由4幢高层和1幢超高层组成。

△ 外立面示意图
敲黑板的重点来了!!!
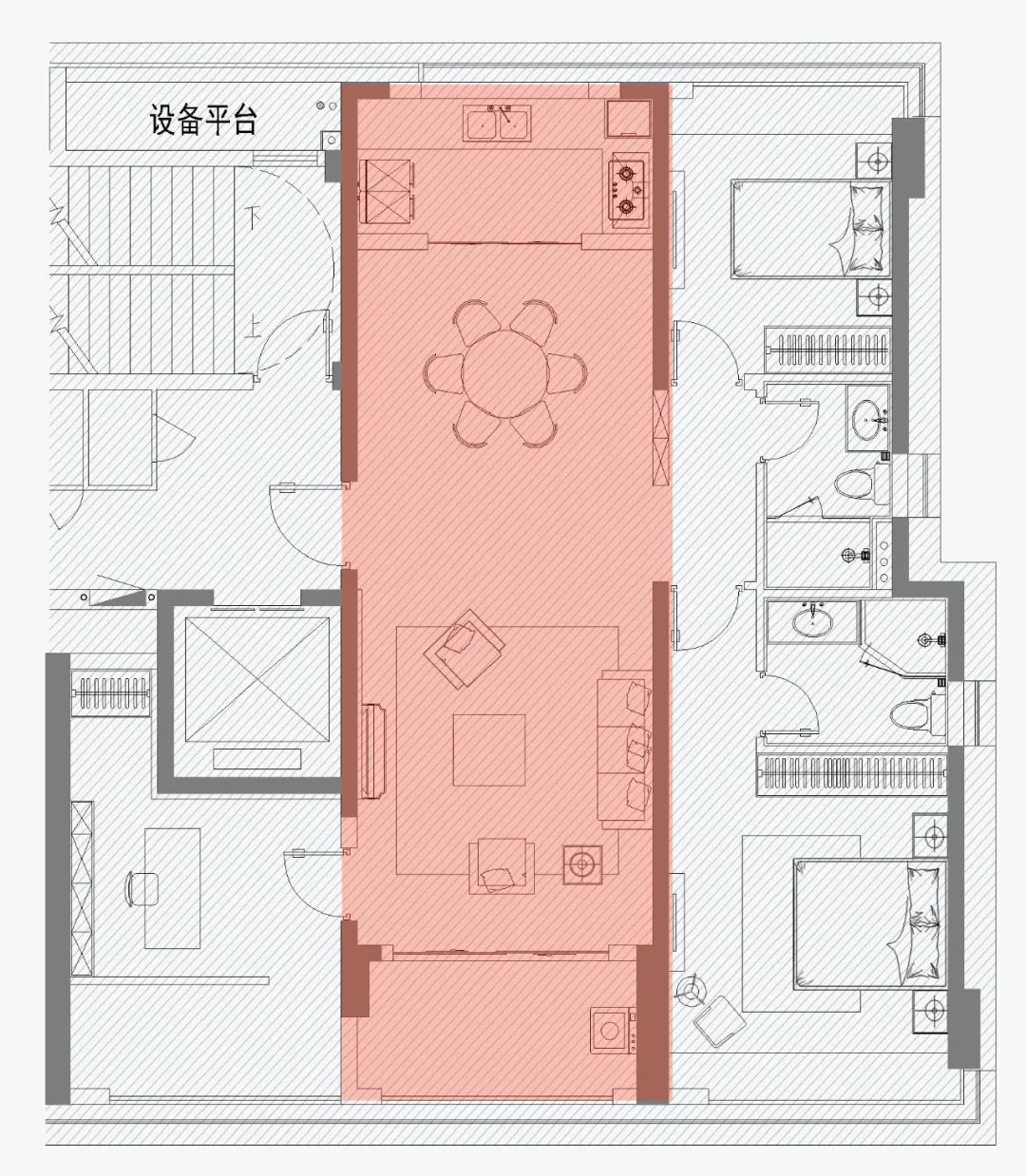
新品主打户型有建筑面积约130-180㎡四种,共计564套,满足不同改善需求的温州人。
这里简单介绍建筑面积约130㎡户型——

△ 建筑面积约130㎡户型示意图
这是时代·滨江上品系列里最小的户型!
它让不少因为户型过大总价太高的中产阶层看到了希望。
户型设计方面也是充分优化,南北非常通透,过道浪费少,室内使用率高。
尤其是客餐厅一体化,南北贯穿起将U型厨房和落地窗阳台,十分气派。
住在这样的房子里,加上周边教育资源、杨府山公园+上陡门浦公园+滨江景观带、家门口的商业综合体、江景等资源,人生奋斗的意义似乎就有了身与心的归宿。
4
就购房逻辑的地段论而言,选择老港区也是首当参考之地。
一方面,温州瓯江南岸的江景资源是城市稀缺资源。地块买一块少一块是公认的事实。
另一方面,参考时代·滨江上品一期的江景房源均价,约4.2万元/平的未来增值空间,还是值得期待的。因为周边具备一线江景资源的二手房(如曼哈顿、时代中鹿城广场),均价达到约5.0-6.2万元/平,哪怕是不看江的楼栋,不少中高区部分房源二手价格达到4.8万元/平左右,买到就是赚到。

△ 老港区保底方案示意图
以上逻辑同样适用于本次推出的新品——
尽管价格还未公布,基本可以参考一期地块南区非江景房源的价格(约3.5万+),目前算是区域内的价格洼地。
有人会说,这个价格可以入驻温州很多其他高端楼盘了。
确实如此。
但,一座城市真正严格意义上的CBD只会有一个。
如果超高层建筑和约70万方的商业综合体都吸引不了你,那么一定要谨记这么一条买房逻辑——银行(分行)总部大楼盖在哪,跟着他们在边上买房就对了。
因为没有一个银行会把自己的总部资产建在一个未来不具备增值潜力的地段。
时代携手华润万象城的那场发布会当天,几乎等于宣告了这里才是CBD核芯区将来人流量更密集的财富之地。
因此,时代·滨江上品四期新品尽管在区位上不瞰江,但大概率又将被市场“哄抢”。
5
据案场相关负责人介绍,2019年项目卖的差不多的时候,仍然有数以百计的意向客户电话或到现场咨询。
对于一个新楼盘来说,其中只要330米超高层建筑、约70万方商业综合体、一线江景资源、老城区成熟配套、滨江CBD占据1-2项,皆可构成“红盘”要素。

△ 老港区保底方案示意图
时代·滨江上品全揽,占尽了一座城市里“人无我有人有我优”的资源。
就本次四期的新品,它依旧是“塔尖”的项目,仍然会吸引着“归根”的世界温州人。
历史,往往也就是这么记录!
对于滚滚瓯江而言,时代·滨江上品借着老港区的荣耀和CBD的未来,开启了真正意义上“改善不求其次”的新时代,仿佛看不到任何“后浪”。
关于新品更多的详情,各位可以前往展厅。
展厅地址:温州市鹿城区瓯江路与府东路交汇处(上陡门浦公园东侧)
项目地址:温州市鹿城区江滨路与杨府山路交汇处

免责声明:
1、本项目推广名为时代·滨江上品,备案名为揽江园(温州市老港区二期03-01-11地块),开发商为温州市悦港置业有限公司,代理公司为温州启程房地产营销策划有限公司,广告公司为杭州在望营销策划有限公司;
2、本宣传资料为要约邀请,不作为要约或承诺;
3、出卖人可能会不定期对宣传材料进行修改;
4、买卖双方的权利义务以双方签订的《商品房买卖合同》及附件等协议为准;
5、本文配图部分为时代·滨江上品项目规划效果示意,与实景存在一定差异。效果图中项目周边其他建筑仅为示意,具体以实际为准;
6、本宣资料所发布的内容为2020年5月前的信息,本宣传资料有效期为1个月,敬请留意最新资料。
更多原创深度爆文,请关注微信公众号“楼市温州”,获取更多精彩内容!
微信公众号:楼市温州(id:loushiwenzhou),戳文末扩展链接跳转原文哦!
↓ ↓